Version: 8.25.1Navigation überspringen
10 €
Immowelt logo

Laden zur Miete
10 €
/m²

Geschäftsfläche inkl. Lagerfläche zu vermieten!

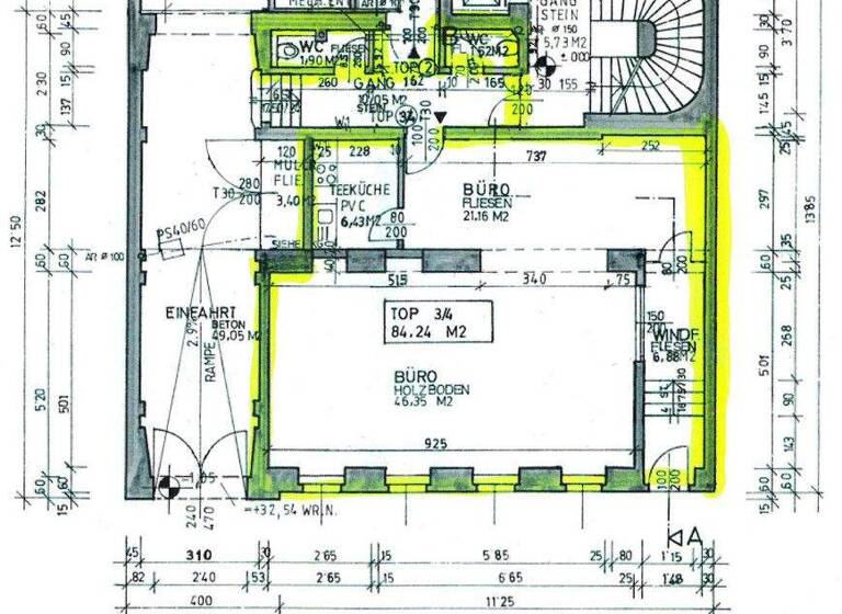
Das zur Vermietung stehende Geschäftslokal in der Wolfganggasse 35 im 12. Wiener Gemeindebezirk überzeugt durch eine vielseitige Raumstruktur und attraktive Nutzungsmöglichkeiten. Auf einer Geschäftsfläche von rund 84 m² stehen ein heller Verkaufs- bzw. Arbeitsbereich, eine Küche sowie zwei getrennte WC-Einheiten zur Verfügung. Direkt angrenzend befindet sich ein Lager mit ca. 135 m², das durch seine großzügigen Raumhöhen besonders flexibel nutzbar ist. Ergänzt wird das Angebot durch einen ca. 72 m² großen Kellerbereich, der neben weiteren Lagerflächen auch einen Mitarbeiterbereich mit WC und Dusche bietet. Damit eignet sich das Objekt ideal für Unternehmen, die sowohl repräsentative Kundenflächen als auch funktionale Nebenräume benötigen. Dank der sehr guten Anbindung an den öffentlichen Verkehr (U6, mehrere Straßenbahn- und Buslinien sowie der nahegelegene Bahnhof Meidling) ist der Standort optimal erreichbar. Das Geschäftslokal ist ab sofort verfügbar und bietet eine hervorragende Gelegenheit für unterschiedlichste Nutzungskonzepte.

Aufteilung der Geschäftsfläche:
- ca. 85 m² Geschäftsfläche
- ca. 135 m² Lagerfläche
- ca. 72 m² Kellerfläche
- Gesamt ca. 292 m² Geschäftsfläche

Merkmale

  • Bezug: nach Vereinbarung

Grundrisse

Grundrisse
1 / 3

Realisiere Dein Projekt

Bausubstanz und Energie

Heizwärmebedarf (HWB)

G

Gesamtenergieeffizienz (fGEE)

D
  • Baujahr1998
Immowelt logo

Mietkosten

Gesamtmiete
4.642,01 €
Nettokaltmiete
10 €/m²
2.915,10 €
Betriebskosten
953,24 €
Provision für Mieter
3 Bruttomonatsmieten zzgl. 20% USt.
Kaution
3-6 BMM
Weitere Preisinformationen
Nettokaltmiete: 2.915,10 EUR

Lage

address-icon
Wien, Meidling (1120)
Der Anbieter hat die genaue Adresse nicht freigegeben
Die Geschäftsfläche befindet sich in der Wolfganggasse 35 im 12. Wiener Gemeindebezirk Meidling, einer aufstrebenden und stark nachgefragten Wohn- und Geschäftsgegend. Das unmittelbare Umfeld ist geprägt von einer Mischung aus Wohnhäusern, Nahversorgern sowie Dienstleistungs- und Gewerbebetrieben. Durch die Nähe zu neu entwickelten Stadtquartieren gewinnt der Standort zusätzlich an Attraktivität und Frequenz.

Öffentliche Verkehrsanbindung
- U-Bahn: Die Station U6 Niederhofstraße sowie die künftige U2-Verlängerung (Station "Bacherplatz" in Gehweite) sorgen für eine schnelle Verbindung in die Innenstadt und andere Bezirke.
- Straßenbahn: Die Linien 62 und 1 sind fußläufig erreichbar und bieten eine direkte Anbindung Richtung Karlsplatz und in den Süden Wiens.
- Bus: Mehrere Buslinien (z. B. 7A, 9A, 10A, 63A) binden den Standort optimal an das lokale Netz an.
- Bahnhof Meidling: In wenigen Minuten erreicht man den Bahnhof Wien Meidling, einen der wichtigsten Verkehrsknotenpunkte der Stadt mit Anbindung an den Regional- und Fernverkehr.

Weitere Informationen

Sonstiges Wir weisen darauf hin, dass zwischen dem Vermittler und dem Auftraggeber ein wirtschaftliches Naheverhältnis besteht. Der Vermittler ist als Doppelmakler tätig. Stichworte Nutzfläche: 291,51 m², Bundesland: Wien

Weitere Services

Lust auf eine Besichtigung?
Eine Frage zur Immobilie?
Nachricht hinzufügen
Mit der Nutzung der oben angegebenen Telefonnummer oder durch Klicken auf „Kontaktieren“ akzeptierst Du die Allgemeinen Nutzungsbedingungen, denen Du jederzeit widersprechen kannst. Weitere Informationen zum Datenschutz

Über den Anbieter

Prinz-Eugen-Strasse 8-10, 1040 WIEN
partner badge
Partnerschaft
Frau Franziska Patay, MScDein Kontakt
Online-ID: 254HBKSDLMFB
Referenznummer: R2501298
EHL Gewerbeimmobilien GmbH
EHL Gewerbeimmobilien GmbH
Nachricht hinzufügen
Mit der Nutzung der oben angegebenen Telefonnummer oder durch Klicken auf „Kontaktieren“ akzeptierst Du die Allgemeinen Nutzungsbedingungen, denen Du jederzeit widersprechen kannst. Weitere Informationen zum Datenschutz
Wie zufrieden bist du mit dieser Seite (nicht mit der Immobilie selbst)?