Version: 8.24.0Navigation ĂĽberspringen
500.000 €
2 Zimmer  â€˘  97 m²  â€˘  3. Geschoss
Immowelt logo

Wohnung zum Kauf
500000 €
5.155 €/m²
2 Zimmer  â€˘  97 m²  â€˘  3. Geschoss

Wohnung 97m2 zum Kauf - Split-Dalmatia, Okrug

We are selling a comfortable two-bedroom apartment with a roof terrace in an excellent location only 4 km from the UNESCO city of Trogir in the southern part of Okrug Gornji.
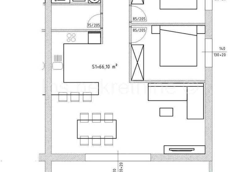
The apartment located on the third floor consists of two bedrooms, a bathroom, a storage room, a living room, a kitchen with a dining room, a balcony of 84.20 m2 and a roof terrace of 88.90 m2.
The price of the apartment includes a garage space.

The building has a pool for all tenants to use.

High quality construction.
EC: A+

Underfloor heating.

Three-layer glass.

Large sliding walls.

High-quality ceramics and sanitary ware.
Electric blinds.
Possibility of payment by construction stages.

The residential building is located in a quiet and safe location, approx. 80 m from the sea, which makes this property an excellent opportunity for a year-round stay as well as a tourist rental.


S11


Moving in is expected in 6/2024.




Ownership neat 1/1.

Merkmale

  • 3. Geschoss

Grundrisse

Grundrisse
1 / 1

Realisiere Dein Projekt

Bausubstanz und Energie

Der Anbieter hat keine Informationen zu Energieverbrauch oder Zustand der Immobilie bereit gestellt.
Immowelt logo

Preisdetails

Kaufpreis
500000 €
5.154,64 €/m²
Provision für Käufer
Bitte beachte, das Angebot kann bei Vertragsabschluss die Zahlung einer Provision beinhalten. Weitere Informationen erhältst Du vom Anbieter.

Lage

address-icon
Okrug
Der Anbieter hat die genaue Adresse nicht freigegeben

Weitere Informationen

Stichworte 1 Etagen

Weitere Services

Lust auf eine Besichtigung?
Eine Frage zur Immobilie?
Nachricht hinzufĂĽgen
Mit der Nutzung der oben angegebenen Telefonnummer oder durch Klicken auf „Kontaktieren“ akzeptierst Du die Allgemeinen Nutzungsbedingungen, denen Du jederzeit widersprechen kannst. Weitere Informationen zum Datenschutz

Ăśber den Anbieter

Crozilla.com
Crozilla.comMaklerbĂĽro
Nova cesta 60, 10000 ZAGREB
IBS nekretnineDein Kontakt
Online-ID: 2nzdv5n
Referenznummer: 18604336_3
Crozilla.com
Crozilla.com
Nachricht hinzufĂĽgen
Mit der Nutzung der oben angegebenen Telefonnummer oder durch Klicken auf „Kontaktieren“ akzeptierst Du die Allgemeinen Nutzungsbedingungen, denen Du jederzeit widersprechen kannst. Weitere Informationen zum Datenschutz
Wie zufrieden bist du mit dieser Seite (nicht mit der Immobilie selbst)?