Ein eigenes Zuhause zu bauen ist eine große Entscheidung, aber diesen Weg gehst du nicht allein. Unsere Aufgabe? Wir bringen alles für dich zusammen und machen deine Entscheidung so einfach und sicher wie möglich. Unser Team begleitet dich bei allen Schritten: Haus, Grundstück und Finanzierung. Dank des professionellen Zusammenspiels aus erfahrenen Hausverkäufern, zuverlässigen Finanzpartnern und regionalen Grundstücksexperten findest du genau das, was du für deine Home Journey brauchst. Wir sorgen für die besten Konditionen, sind immer an deiner Seite und unterstützen dich in all deinen Anliegen. Dein Fokus liegt auf deiner Zukunft - wir kümmern uns um den Rest.
Merkmale
1.399 m² Grundstück
Gäste-WC
Dieses tolle Haus bieten wir Dir in der Ausbaustufe "Fast Vollendet Plus" an. Das bedeutet: Der Großteil der Arbeiten ist bereits abgeschlossen - und das in höchster Manufakturqualität. Du kannst Dich auf ein nahezu fertiges Zuhause freuen, bei dem Komfort, Qualität und Individualität im Mittelpunkt stehen.
Im Angebot enthalten sind:
eine solide Bodenplatte, eine individuelle Grundrissplanung, abgestimmt auf Deine Wünsche, modernste Wärmepumpentechnik für effizientes Heizen, schlüsselfertige Bäder, die sofort nutzbar sind, Rollläden für zusätzlichen Wohnkomfort, über 200 Putzfarben zur Auswahl, damit Dein Haus auch äußerlich Deine Handschrift trägt, eine kurze Bauzeit dank unserer zuverlässigen Home-Speed-Home Terminschiene, und eine persönliche Baubetreuung, die Dich von Anfang bis Ende begleitet.
Mit dieser Ausbaustufe möchten wir Dir den Weg ins Eigenheim so angenehm wie möglich machen - transparent, zuverlässig und individuell auf Deine Bedürfnisse abgestimmt.
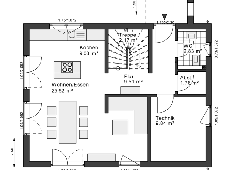
Grundrisse
Grundrisse
1 / 2
Realisiere Dein Projekt
Bausubstanz und Energie
Möchtest du Details zum Energieverbrauch?
Zustand der ImmobilieNeubau, Projektiert
HeizungsartFußbodenheizung
Preisdetails
Kaufpreis
689560 €689.560 €
5.472,70 €/m²
Provision für Käufer
provisionsfrei
Geschätzte Gesamtkosten
737.829 €1
Kaufpreis
689.560 €
Kaufnebenkosten
48.269 €
2
Notarkosten (1,5%)
10.343 €
Grunderwerbsteuer (5%)
34.478 €
Grundbucheintrag (0,5%)
3.448 €
1Der angezeigte Wert ist eine automatisch berechnete Schätzung von immowelt.
2Bei den Angaben handelt es sich um ortsübliche Werte. Individuelle Kosten können abweichen.
Lage
Wincheringen (54457)
Der Anbieter hat die genaue Adresse nicht freigegeben
Wohnen in Wincheringen - direkt an der Grenze zu Luxemburg Traumgrundstück in sonniger und ruhiger Lage
In Wincheringen erwartet Dich ein traumhaft gelegenes Grundstück - ruhig, sonnig und mit Weitblick. Die perfekte Basis, um Deinen Wunsch vom eigenen Zuhause Wirklichkeit werden zu lassen. Ob für Paare oder junge Familien: Hier kombinierst Du naturnahes Wohnen mit modernem Lebensstil.
Die Lage direkt an der Grenze zu Luxemburg macht das Grundstück besonders attraktiv - ideal für alle, die im Großherzogtum arbeiten, aber entspannt im Grünen leben möchten.
Nutze die Chance, dieses exklusive Grundstück gemeinsam mit einem stilvollen White & Black Haus zu realisieren - und schaffe Dir einen Ort, der Freiraum, Lebensqualität und eine Top-Anbindung vereint.
Weitere Informationen
Sonstiges
Unser Angebot umfasst das Haus inklusive des dazugehörigen Grundstücks. Die Grundstücke wählen wir mit größter Sorgfalt exklusiv für unsere Kunden aus. Diese Aufgabe erfordert viel Zeit und Mühe - deshalb geben wir Grundstücksdaten ausschließlich persönlich im Rahmen eines Beratungsgesprächs weiter. Unser Ziel ist es, Dir diesen Service als zukünftiger White & Black-Bauherr zu bieten - und nicht als klassischer Makler.
Bitte beachte: Jeder Mensch hat ganz eigene Vorstellungen von seinem Traumhaus. Unser Hausangebot ist daher ein Planungskonzept, das wir auf Deine Wünsche abstimmen können. Aufgrund örtlicher Bauvorschriften können jedoch Anpassungen erforderlich sein. Die Baunebenkosten sind im angegebenen Preis nicht enthalten.
Stichworte
Anzahl der Schlafzimmer: 3, Anzahl der Badezimmer: 1, Anzahl der separaten WCs: 1