

Villa zum Kauf2400000 €5.854 €/m²14 Zimmer • 410 m² • 1.405 m² Grundstück
2400000 €
5.854 €/m²
14 Zimmer • 410 m² • 1.405 m² Grundstück
Villa Sophie Bad Reichenhall zu verkaufen
Merkmale
- Bezug: nach Rücksprache
- vermietet
- 3 Geschosse
- 1.405 m² Grundstück
- Einbauküche
- 10 Stellplätze: Garage, Außen-Stellplatz
- Gäste-WC
- Garten, Gartenmitbenutzung
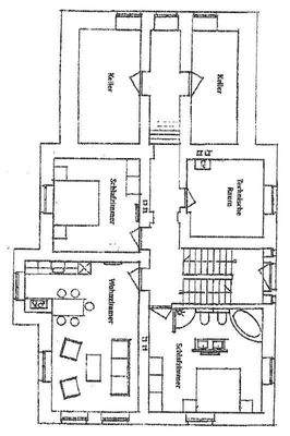
Grundrisse
Grundrisse
1 / 6
Realisiere Dein Projekt
Bausubstanz und Energie
Energieausweis
C
- Baujahr1974
- Zustand der ImmobilieMassivhaus
- HeizungsartZentralheizung
- EnergieträgerGas
Preisdetails
Kaufpreis
2400000 €
5.853,66 €/m²
Provision für Käufer
3,57
Geschätzte Gesamtkosten
2.617.680 €1
Kaufpreis
2.400.000 €
Kaufnebenkosten
217.680 €
2Notarkosten (1,5%)
36.000 €
Grunderwerbsteuer (3,5%)
84.000 €
Provision für Käufer (3,57%)
85.680 €
Grundbucheintrag (0,5%)
12.000 €
1Der angezeigte Wert ist eine automatisch berechnete Schätzung von immowelt.
2Bei den Angaben handelt es sich um ortsübliche Werte. Individuelle Kosten können abweichen.
Lage

Anton-Winkler-Straße 5, Bad Reichenhall (83435)
Weitere Informationen
Weitere Services
Lust auf eine Besichtigung?
Eine Frage zur Immobilie?
Über den Anbieter
FeWo & Immo ZenoMaklerbüro
Bahnhofplatz 14a, 83435 Bad Reichenhall
10 Jahre Partnerschaft + Diamond Partner

Herr Dipl.-Kfm. Peter KalbDein Kontakt
Online-ID: 2jtqz5t
Referenznummer: VS - AW5


FeWo & Immo Zeno
Bewertung: 5 von 5 Sternen
Wie zufrieden bist du mit dieser Seite (nicht mit der Immobilie selbst)?

