




Einfamilienhaus zum Kauf • provisionsfrei738350 €6.900 €/m²4 Zimmer • 107 m² • 319 m² Grundstück
738350 €
6.900 €/m²
4 Zimmer • 107 m² • 319 m² Grundstück
+++Provisionsfrei+++ Neubau eines Ferienhauses auf der schönen Halbinsel Darß in Strandnähe von Zingst
Merkmale
- 1 Geschoss
- 319 m² Grundstück
- offene Küche
- Kein Keller
- 2 Stellplätze: Außen-Stellplatz
- Gäste-WC
- Balkon
- Gartenanteil, Garten
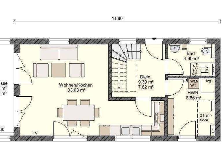
Grundrisse
Grundrisse
1 / 2
Realisiere Dein Projekt
Bausubstanz und Energie
Energieausweis
- HeizungsartZentralheizung: Fußbodenheizung
- EnergieträgerElektro, Luft-/Wasser-Wärmepumpe
Preisdetails
Kaufpreis
738350 €
6.900,47 €/m²
Preis pro Stellplatz
11250 €
Provision für Käufer
provisionsfrei
Geschätzte Gesamtkosten
797.418 €1
Kaufpreis
738.350 €
Kaufnebenkosten
59.068 €
2Notarkosten (1,5%)
11.075 €
Grunderwerbsteuer (6%)
44.301 €
Grundbucheintrag (0,5%)
3.692 €
1Der angezeigte Wert ist eine automatisch berechnete Schätzung von immowelt.
2Bei den Angaben handelt es sich um ortsübliche Werte. Individuelle Kosten können abweichen.
Lage

Zingst (18374)
Der Anbieter hat die genaue Adresse nicht freigegeben
Weitere Informationen
Weitere Services
Lust auf eine Besichtigung?
Eine Frage zur Immobilie?
Über den Anbieter
Online-ID: 2namu5e
Referenznummer: EFHKW14 ZINGST
Wie zufrieden bist du mit dieser Seite (nicht mit der Immobilie selbst)?





