Traumhafte 2,5 Zimmer Wohnung mit Terrasse und separater Wohnküche
Die Bilder des Exposés stammen noch von der letzten Vermietung (2023) der Wohnung.
Die Wohnung ist aktuell noch bewohnt und der Mietvertrag ist bis zum 30.06.2028 befristet.
Highlights
* Hofruhelage
* Parkettboden
* Optimale Raumaufteilung
* Ideale Infrastruktur, in U-Bahnnähe
* Kamin
Objektbeschreibung
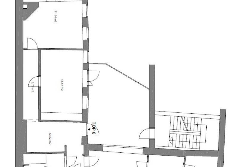
Die ca. 121 m² große Wohnung befindet sich im 1.Stock (ohne Lift) eines Altbaus auf der Neulerchenfelder Straße nahe der Josefstädter Straße im 16. Wiener Gemeindebezirk. Die Wohnung verfügt über einen großen Vorraum mit Einbaukästen und einer Gardarobe, eine separate Gäste-Toilette direkt am Eingang und ein Badezimmer mit Badewanne, Dusche, Doppelwaschbecken und einer weiteren Toilette. Im linken Abschnitt der Wohnung befindet sich ein Schlafzimmer, ein großer Schrankraum mit einem begehbarem Kleiderschrank und einem Wirtschaftsraum mit Waschmaschinen-Anschluss, Spüle, zwei Herdplatten und Einbaukästen die für zusätzlichen Stauraum sorgen. Im rechten Teil der Wohnung befindet sich eine große Wohnküche mit moderner Ausstattung (Kochinsel, Herd, Ofen, Kühlschrank, Geschrirrspüler), welche neben dem Vorrraum ebenfalls Zugang zur Terrasse bietet. Hinter der Küche befindet sich das große Wohnzimmer, in dem sich ein Kamin befindet. Geheizt wird mit einer Gasetagenheizung. Die gesamte Wohnung ist in den ruhigen und begrünten Innenhof ausgerichtet.
Umgebung
Die nahe gelegene Josefstädter Straße sowie die Neulerchenfelder Straße bieten zahlreiche Geschäfte und Restaurants. Auch der Nahe gelegene Brunnenmarkt und der sich in Gehdistanz befindende Yppenmarkt laden sowohl zum gemütlichen Spaziergang als auch zum Verweilen in der Sonne ein.
Verkehrsanbindung & Infrastruktur
In der Umgebung der Liegenschaft befindet sich die U-Bahn Station Josefstädter Straße (U6), von der aus ebenfalls die Trambahnen 2, 5 und 33 abfahren und wodurch die Wohnung über eine hervorragende Anbindung verfügt. Vor der Haustüre auf der Neulerchenfelder Straße fährt die Trambahn 2.
Infrastruktur / Entfernungen
Gesundheit
Arzt <500m
Apotheke <500m
Klinik <1.000m
Krankenhaus <1.000m
Kinder & Schulen
Schule <500m
Kindergarten <500m
Universität <1.000m
Höhere Schule <1.000m
Nahversorgung
Supermarkt <500m
Bäckerei <500m
Einkaufszentrum <1.000m
Sonstige
Geldautomat <500m
Bank <500m
Post <500m
Polizei <500m
Verkehr
Bus <500m
U-Bahn <500m
Straßenbahn <500m
Bahnhof <500m
Autobahnanschluss <4.000m
Angaben Entfernung Luftlinie / Quelle: OpenStreetMap