Version: 8.24.1Navigation überspringen
Diana Aigner Immobilien e.U.
13 €

Büro zur Miete
13 €
/m²

Exklusive Bürofläche in erstklassiger Zentrumslage zu vermieten!

Die gegenständliche Bürofläche befindet sich im Souterrain einer wunderschönen und sehr repräsentativen Kaivilla. Die Räumlichkeiten sind hell und gut belichtet. Über ein stilvolles Holzportal betritt man die Villa mit ihrem beeindruckenden Stiegenhaus. Sollte ein barrierefreier Zugang erforderlich sein, erfolgt dieser über die Tiefgarage mittels Personenaufzug.

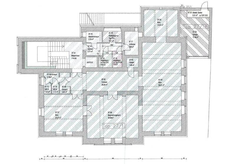
Eine elegante Flügeltür öffnet den Zugang zu den Räumlichkeiten, die über eine Gesamtfläche von ca. 172 m² verfügen. Die Fläche gliedert sich wie folgt:

*
Eingangsbereich mit Platz für eine Garderobe

*
Großer Vorraum

*
Zwei Büroräume mit ca. 15 m² und 23 m²

*
Besprechungsraum - optional als Büro nutzbar

*
Großraumbüro mit ca. 56 m²

*
Zwei getrennte WCs

*
Abstellraum

Die Räume zeichnen sich teils durch eine schöne Gewölbestruktur aus. Gediegene Holz- und Glastüren lassen viel Licht in die Räume; eine bestehende, ansprechende Schienenbeleuchtung ist ebenfalls vorhanden.

Optional können bis zu 9 Stellplätze mitgemietet werden. Der Mietzins beträgt netto EUR 120,- pro Garagenstellplatz.

Diese Büroräumlichkeiten bieten nicht nur eine großzügige und repräsentative Arbeitsumgebung, sondern auch eine erstklassige Erreichbarkeit sowie einen traumhaften Ausblick auf die Umgebung.

Infrastruktur / Entfernungen

Gesundheit
Arzt <500m
Apotheke <500m
Klinik <500m
Krankenhaus <1.000m

Kinder & Schulen
Schule <500m
Kindergarten <500m
Universität <500m
Höhere Schule <500m

Nahversorgung
Supermarkt <500m
Bäckerei <500m
Einkaufszentrum <1.000m

Sonstige
Bank <500m
Geldautomat <500m
Post <500m
Polizei <1.000m

Verkehr
Bus <500m
Bahnhof <1.000m
Autobahnanschluss <3.000m
Flughafen <3.000m

Angaben Entfernung Luftlinie / Quelle: OpenStreetMap

Merkmale

  • Personenaufzug

Grundrisse

Grundrisse
1 / 1

Realisiere Dein Projekt

Bausubstanz und Energie

Möchtest du Details zum Energieverbrauch?info_energy_calculation-icon
  • Zustand der ImmobilieAltbau (bis 1945)
MediumRectangleTop

Mietkosten

Nettokaltmiete
13 €/m²
2.227,16 €
Betriebskosten
546,51 €
Provision für Mieter
3 Bruttomonatsmieten zzgl. 20% USt.
Kaution
3 Bruttomonatsmieten
Weitere Preisinformationen
Nettokaltmiete: 2.227,16 EUR

Lage

address-icon
Salzburg (5020)
Die Liegenschaft befindet sich in absoluter Bestlage direkt an der Schwarzstraße 27, 5020 Salzburg, im Herzen der Salzburger Altstadt. Nur wenige Gehminuten vom weltberühmten Mirabellgarten, dem Landestheater und der Getreidegasse entfernt, profitieren Sie hier von einer hervorragenden Infrastruktur, optimaler Verkehrsanbindung und hoher Fußgängerfrequenz. Die zentrale Lage macht das Objekt besonders attraktiv für Büro-, Kanzlei- oder Praxisnutzung.

Weitere Informationen

Stichworte Nutzfläche: 171,32 m², Anzahl der separaten WCs: 2, Bundesland: Salzburg

Weitere Services

Lust auf eine Besichtigung?
Eine Frage zur Immobilie?
Nachricht hinzufügen
Mit der Nutzung der oben angegebenen Telefonnummer oder durch Klicken auf „Kontaktieren“ akzeptierst Du die Allgemeinen Nutzungsbedingungen, denen Du jederzeit widersprechen kannst. Weitere Informationen zum Datenschutz

Über den Anbieter

Neutorstraße 19, 5020 SALZBURG
partner badge
Partnerschaft
Herr Leonhard Schmidbauer-FrühwirthDein Kontakt
Keine Telefonnummer hinterlegt
Keine Telefonnummer hinterlegt
Online-ID: 25ATANE2I9Z9
Referenznummer: OBGC20250618114348784bd317adf9d
Diana Aigner Immobilien e.U.
Diana Aigner Immobilien e.U.
Bewertung: 4,2 von 5 Sternen
Nachricht hinzufügen
Mit der Nutzung der oben angegebenen Telefonnummer oder durch Klicken auf „Kontaktieren“ akzeptierst Du die Allgemeinen Nutzungsbedingungen, denen Du jederzeit widersprechen kannst. Weitere Informationen zum Datenschutz
MediumRectangleTop
MediumRectangleBottom
MediumRectangleTop
Wie zufrieden bist du mit dieser Seite (nicht mit der Immobilie selbst)?