Version: 8.24.1Navigation überspringen
387.000 €
3 Zimmer  •  85 m²  •  1. Geschoss
Immowelt logo

Wohnung zum Kauf
387000 €
4.553 €/m²
3 Zimmer  •  85 m²  •  1. Geschoss

Wohnung 85m2 zum Kauf - Zadar, Nin

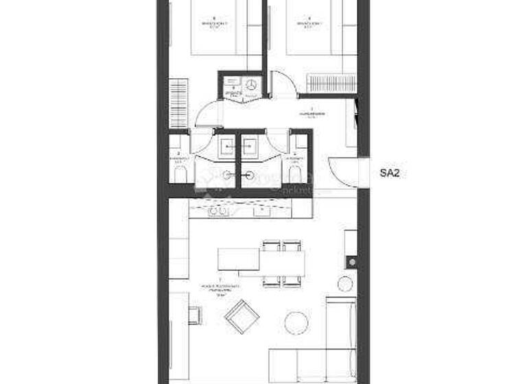
In Zaton, nur 170 Meter vom Meer entfernt, erhebt sich ein neu erbautes Wohnhaus, das klare architektonische Linien mit dem ruhigen Charme der dalmatinischen Küste verbindet. Unter den acht durchdacht gestalteten Residenzen befindet sich auch diese Wohnung SA2 mit einer Netto-Wohnfläche von 85,65 m.

Der Grundriss ist so gestaltet, dass er Leichtigkeit und Helligkeit in den Alltag bringt. Das großzügige Wohnzimmer mit Küche und Essbereich (33,80 m) bildet das Herz des Zuhauses und öffnet sich nahtlos zur Loggia und zum Balkon Innen- und Außenräume gehen hier ineinander über. Zwei Schlafzimmer (9,70 m und 10,70 m) bieten Ruhe und Privatsphäre, während zwei moderne Badezimmer Funktionalität und Komfort sichern. Ein kleiner Abstellraum innerhalb der Wohnung sowie ein zusätzliches Kellerabteil (7,99 m) runden das praktische Gesamtbild ab.

Zur Wohnung gehören außerdem zwei private Parkplätze (je 12,50 m), eine Loggia (5,17 m) und ein Balkon (10,16 m) perfekt für den Kaffee am Morgen oder ein Glas Wein am Abend.

Die gesamte Bruttofläche beträgt 116,02 m. Das Gebäude ist bereits fertiggestellt, derzeit laufen die letzten Bauarbeiten Ihr neues Zuhause am Meer können Sie also schon bald genießen.

Für alle, die es unkompliziert mögen, gibt es die Möglichkeit eines vollständig ausgestatteten Interieurs.

Der Bauträger behält sich das Recht vor, Pläne, Materialien und Spezifikationen ohne vorherige Ankündigung zu ändern. Alle Maße und Materialien sind ungefähre Angaben und können Änderungen unterliegen.

Für weitere Informationen und zur Vereinbarung einer Besichtigung stehe ich Ihnen gerne zur Verfügung.
Aurelija Kaniski
+385 99 547 2989
aurelija.kaniski@dogma-nekretnine.com

ID CODE: DA100065644

Aurelija Kaniski
Agent s licencom
Mob: 099/547-2989
Tel: 042/562-017
E-mail: aurelija.kaniski@dogma-nekretnine.com
www.dogma-nekretnine.com

Merkmale

  • 1. Geschoss

Grundrisse

Grundrisse
1 / 3

Realisiere Dein Projekt

Bausubstanz und Energie

Der Anbieter hat keine Informationen zu Energieverbrauch oder Zustand der Immobilie bereit gestellt.
Immowelt logo

Preisdetails

Kaufpreis
387000 €
4.552,94 €/m²
Provision für Käufer
Bitte beachte, das Angebot kann bei Vertragsabschluss die Zahlung einer Provision beinhalten. Weitere Informationen erhältst Du vom Anbieter.

Lage

address-icon
Nin
Der Anbieter hat die genaue Adresse nicht freigegeben

Weitere Informationen

Stichworte Anzahl der Schlafzimmer: 3, Anzahl der Badezimmer: 2, 1 Etagen

Weitere Services

Lust auf eine Besichtigung?
Eine Frage zur Immobilie?
Nachricht hinzufügen
Mit der Nutzung der oben angegebenen Telefonnummer oder durch Klicken auf „Kontaktieren“ akzeptierst Du die Allgemeinen Nutzungsbedingungen, denen Du jederzeit widersprechen kannst. Weitere Informationen zum Datenschutz

Über den Anbieter

Crozilla.com
Crozilla.comMaklerbüro
Nova cesta 60, 10000 ZAGREB
Dogma nekretnineDein Kontakt
Online-ID: 2ntbk5h
Referenznummer: 18658846_1
Crozilla.com
Crozilla.com
Nachricht hinzufügen
Mit der Nutzung der oben angegebenen Telefonnummer oder durch Klicken auf „Kontaktieren“ akzeptierst Du die Allgemeinen Nutzungsbedingungen, denen Du jederzeit widersprechen kannst. Weitere Informationen zum Datenschutz
Wie zufrieden bist du mit dieser Seite (nicht mit der Immobilie selbst)?