Version: 8.24.0Navigation ĂĽberspringen
315.000 €
5 Zimmer  â€˘  95 m²

Maisonette zum Kauf • provisionsfrei
315000 €
3.316 €/m²
5 Zimmer  â€˘  95 m²

Kernsanierte Wohnung in Ludwigshafen - Kapitalanlage mit Fördervorteil & positivem Cashflow

n der Schanzstraße 66 in Ludwigshafen entsteht ein hochwertig kernsaniertes Hinterhaus mit ca. 95 m² Wohnfläche auf zwei Etagen - modern, energieeffizient und mit maximaler Flexibilität für Kapitalanleger und Eigennutzer.

Das Gebäude wird vollständig auf Rohbaustand zurückgeführt und anschließend in Neubauqualität wieder aufgebaut - inklusive neuer Leitungen, Dämmung, Fenster, Böden und technischer Ausstattung. Durch die Umsetzung im KfW-70-Standard profitieren Käufer von einem Tilgungszuschuss von rund 21.000 € sowie langfristig niedrigen Energiekosten.

Dank des flexiblen Raumkonzepts lässt sich das Objekt sowohl als komfortable 3- bis 4-Zimmer-Maisonette für Eigennutzer gestalten, als auch in ein 6-Zimmer-WG-Konzept für Kapitalanleger umwandeln - ideal für Studierende oder Pendler.

Ein besonderes Highlight: Es fallen keine Zahlungen während der Bauphase an. Zinsen und Tilgung starten erst mit der Fertigstellung - und dank der Vermietung ab Übergabetag entsteht ein positiver Cashflow ab Tag 1. Damit vereint dieses Projekt Sicherheit, Rendite und steuerliche Vorteile auf einzigartige Weise.

Merkmale

  • Bezug: nach Vereinbarung
  • Kelleranteil
  • Gäste-WC
  • Terrasse
Hochwertige Kernsanierung (Fertigstellung 2025)

KfW-70-Standard mit staatlichem Tilgungszuschuss (ca. 21.000 €)

Luft-Wärmepumpe (2025) für nachhaltige Energieversorgung

Fußbodenheizung in allen Räumen

3-fach verglaste Fenster & elektrische Verdunkelung

Moderne Bäder, neue Elektrik, Leitungen & Böden

Flexible Grundrissgestaltung (3-4 Zimmer oder WG-Konzept mit bis zu 6 Zimmern)

Hochwertige Materialien und energieeffiziente Bauweise

5 % degressive AfA fĂĽr Kapitalanleger

Keine Belastung während der Sanierung - Zahlung erst bei Fertigstellung

Mietgarantie & Vermietungsservice inklusive

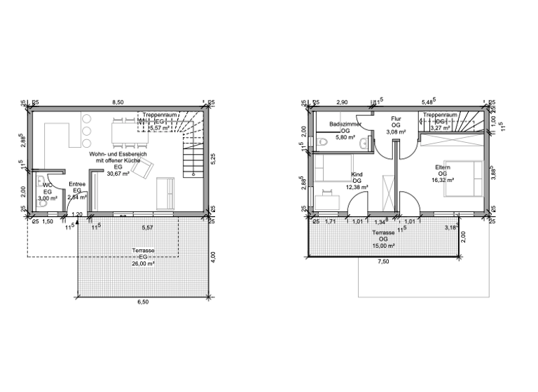
Grundrisse

Grundrisse
1 / 1

Realisiere Dein Projekt

Bausubstanz und Energie

Der Anbieter hat keine Informationen zum Energieverbrauch bereit gestellt.
  • Baujahr2025
  • Zustand der Immobilierenoviert / saniert
  • HeizungsartFuĂźbodenheizung
  • EnergieträgerLuft-/Wasser-Wärmepumpe
MediumRectangleTop

Preisdetails

Kaufpreis
315000 €
3.315,78 €/m²
Provision für Käufer
provisionsfrei
Geschätzte Gesamtkosten
337.050 €1
Kaufpreis
315.000 €
Notarkosten (1,5%)
4.725 €
Grunderwerbsteuer (5%)
15.750 €
Grundbucheintrag (0,5%)
1.575 €
1Der angezeigte Wert ist eine automatisch berechnete Schätzung von immowelt.
2Bei den Angaben handelt es sich um ortsübliche Werte. Individuelle Kosten können abweichen.

Lage

address-icon
Friesenheim/Nord, Ludwigshafen am Rhein (67063)
Der Anbieter hat die genaue Adresse nicht freigegeben
Das Objekt liegt in zentraler Lage von Ludwigshafen am Rhein, nur wenige Minuten von der Rhein-Galerie, dem Rheinund dem öffentlichen Nahverkehr entfernt.

Ludwigshafen bildet gemeinsam mit Mannheim das wirtschaftliche Zentrum der Metropolregion Rhein-Neckar - einem der stärksten Wirtschaftsräume Deutschlands.


Der Standort ist geprägt durch hohe Arbeitsplatzdichte und kontinuierliche Wohnraumnachfrage.

Der weltgrößte Chemiekonzern BASF sowie zahlreiche internationale Unternehmen wie Abbott, DyStar oder DHL Logistics schaffen stabile Beschäftigung und sorgen für dauerhafte Nachfrage nach Wohnraum.


Ăśber die Autobahnen A6, A61 und A65 sowie die S-Bahn Rhein-Neckar sind Mannheim, Heidelberg, Kaiserslautern und das gesamte Rhein-Main-Gebiet bestens erreichbar.

Weitere Informationen

Sonstiges Alle Angaben und Informationen wurden vom Auftraggeber zur Verfügung gestellt. Eine Haftung für ihre Genauigkeit und Vollständigkeit kann daher nicht übernommen werden. Der Auftraggeber/Verkäufer behält sich das Recht auf Zwischenverkauf vor.

Wir möchten Sie darauf hinweisen, dass wir nur Anfragen mit vollständiger Anschrift, Telefonnummer und E-Mail-Adresse bearbeiten können. Ihr Verständnis hierfür wird geschätzt. Stichworte Anzahl der Badezimmer: 2, Anzahl Terrassen: 1, 2 Etagen, modernisiert: 2025

Weitere Services

Lust auf eine Besichtigung?
Eine Frage zur Immobilie?
Nachricht hinzufĂĽgen
Mit der Nutzung der oben angegebenen Telefonnummer oder durch Klicken auf „Kontaktieren“ akzeptierst Du die Allgemeinen Nutzungsbedingungen, denen Du jederzeit widersprechen kannst. Weitere Informationen zum Datenschutz

Ăśber den Anbieter

BenzstraĂźe 35, 74211 Leingarten
partner badge
Partnerschaft
Herr Simon StengerDein Kontakt
Online-ID: 2mz8557
Referenznummer: 150278076#Uyzm9
Schönwald Immobilien
Nachricht hinzufĂĽgen
Mit der Nutzung der oben angegebenen Telefonnummer oder durch Klicken auf „Kontaktieren“ akzeptierst Du die Allgemeinen Nutzungsbedingungen, denen Du jederzeit widersprechen kannst. Weitere Informationen zum Datenschutz
MediumRectangleTop
MediumRectangleBottom
MediumRectangleTop
Wie zufrieden bist du mit dieser Seite (nicht mit der Immobilie selbst)?