Version: 8.24.0Navigation ĂĽberspringen
26,50 €
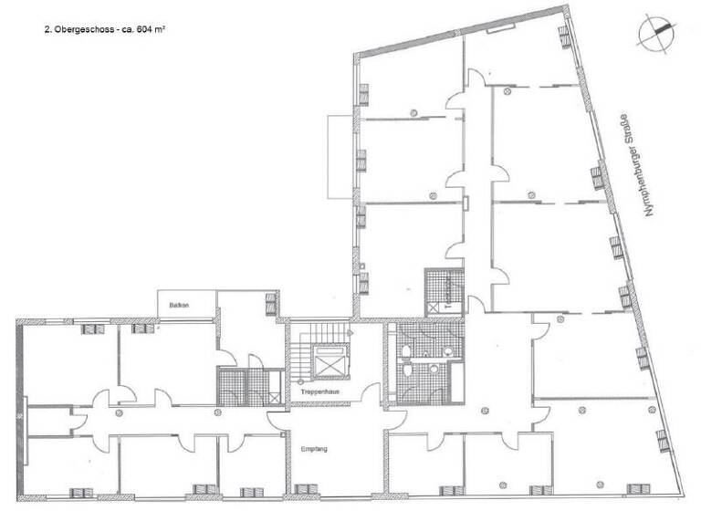
604 m² BĂĽrofläche  â€˘  teilbar ab 112 m²
Immowelt logo

Bürofläche zur Miete • provisionsfrei
26,50 €
/m²
604 m² BĂĽrofläche  â€˘  teilbar ab 112 m²

Unmittelbar an der U-Bahn ... Moderne, gekühlte Bürofläche zu attraktivem Mietpreis

Kurzbeschreibung Unmittelbar an der U-Bahn ... Moderne, gekühlte Bürofläche zu attraktivem Mietpreis Objekt Das sechsgeschossige Wohn- und Geschäftshaus aus dem Jahr 2002 befindet sich in markanter Ecklage mit offenem Blick auf die Nachbarbebauung. Zur Straßenseite ist das Gebäude mit einer Granitfassade versehen, der Eingang erfolgt über ein repräsentatives Entrée. Die attraktive Bürofläche ist effizient in Team- und Einzelbüros aufgeteilt, ein Standard-Ausbau ist im Mietpreis enthalten. Ein tolles Büro in bester Geschäftslage!

Merkmale

  • Bezug: nach Vereinbarung
  • Personenaufzug
  • Raumaufteilung flexibel
- Teppichboden
- Beleuchtung vorhanden
- moderne, kleine TeekĂĽche
- Hohlraumboden fĂĽr IT-Verkabelung
- Personenlift
- Raumhöhe von ca. 2,80 m
- auĂźen liegender Sonnenschutz
- Heizung und Kühlung über dezentrale Lüftungsgeräte
- Balkon

Grundrisse

Grundrisse
1 / 1

Realisiere Dein Projekt

Bausubstanz und Energie

Energieausweis

Endenergiebedarf (Wärme)

Endenergiebedarf (Strom)

  • Baujahr2001
  • Zustand der ImmobilieGepflegt
  • HeizungsartZentralheizung
  • EnergieträgerGas
Immowelt logo

Mietkosten

Monatliche Miete
26,50 €/m²
Nebenkosten
4 €
Provision fĂĽr Mieter
provisionsfrei
Kaution
keine Angabe

Lage

address-icon
Maxvorstadt, München (80335)
Der Anbieter hat die genaue Adresse nicht freigegeben
- zwischen Stiglmaier- und Rotkreuzplatz
- U-Bahn oder Tram-Station Stiglmaierplatz, Hauptbahnhof ist fußläufig erreichbar
- entlang der Nymphenburger Straße und rund um den Stiglmaierplatz befinden sich verschiedene Geschäfte für den täglichen Bedarf
- nette Restaurants und Cafés findet man in den kleinen Seitenstraßen und der direkten Umgebung

Weitere Informationen

Sonstiges - TG-Stellplätze können angemietet werden (Mietpreis auf Anfrage)
- 21 m² Archivflächen im Untergeschoss (Mietpreis auf Anfrage)
- öffentliche E-Ladestation (4 x Typ 2 22 kw) in ca. 5 Geminuten entfernt
- Gewerbesteuerhebesatz 490 %
- ein Energiebedarfsausweis liegt vor, der Bedarfskennwert für Wärme beträgt 103,4 kWh/(m²*a) und für Strom 25,6 kWh/(m²*a), wesentlicher Energieträger für die Heizung des Gebäudes ist Gas Stichworte Gesamtfläche: 604,00 m²

Weitere Services

Lust auf eine Besichtigung?
Eine Frage zur Immobilie?
Nachricht hinzufĂĽgen
Mit der Nutzung der oben angegebenen Telefonnummer oder durch Klicken auf „Kontaktieren“ akzeptierst Du die Allgemeinen Nutzungsbedingungen, denen Du jederzeit widersprechen kannst. Weitere Informationen zum Datenschutz

Ăśber den Anbieter

Breitwieser Roth GmbH
Innere Wiener Str. 7b, 81667 MĂĽnchen
partner badge
Partnerschaft
Online-ID: 2jdp75c
Referenznummer: 11576
Breitwieser Roth GmbH
Breitwieser Roth GmbH
Bewertung: 5 von 5 Sternen
Nachricht hinzufĂĽgen
Mit der Nutzung der oben angegebenen Telefonnummer oder durch Klicken auf „Kontaktieren“ akzeptierst Du die Allgemeinen Nutzungsbedingungen, denen Du jederzeit widersprechen kannst. Weitere Informationen zum Datenschutz
Wie zufrieden bist du mit dieser Seite (nicht mit der Immobilie selbst)?