Version: 8.24.1Navigation ĂĽberspringen
488.000 €
103 m²
Immowelt logo

Reihenmittelhaus zum Kauf - Erstbezug
488000 €
4.738 €/m²
103 m²

"Reihenglück Villach" - Jetzt in Summe bis zu € 40.000 sparen! Im Sommer 2026 einziehen!

REIHENGLÜCK VILLACH - FRÜHJAHRSAKTION -5 % SICHERN & BIS ZU € 40.000,- SPAREN!

Hier entsteht mehr als Wohnraum - hier entsteht Ihr Zuhause.
Sieben moderne Reihenhäuser mitten im GrĂĽnen von Villach-Auen, hell, hochwertig und familienfreundlich - jetzt mit unserer _ReihenglĂĽck-Aktion_ noch attraktiver!

* -5 % Sofortrabatt auf den Kaufpreis (Ersparnis bis zu € 27.000,-)
* Befreiung von Grundbuch- & PfandrechtsgebĂĽhren (2,3 %) - bei gesetzlicher Gegebenheit bis 30.06.2026
* Gesamtersparnis: bis zu € 40.000,-!
* Baustart bereits erfolgt - Fertigstellung bis Sommer 2026
* gebaut durch das namenhafte Bauunternehmen SWIETELSKY

-------------------------

WOHNQUALITÄT, DIE MAN SPÜRT

Hier treffen durchdachte Architektur, moderne Technik und natĂĽrliche Materialien aufeinander.
Lichtdurchflutete Räume, private Eigengärten und eine massive Bauweise schaffen ein Zuhause, das Geborgenheit und Wertbeständigkeit verbindet.

Ihre Vorteile auf einen Blick:

*
7 Reihenhäuser mit ca. 96-103 m² Wohnfläche

*
Eigengärten von ca. 31-103 m²

*
Massive Ziegelbauweise mit Vollwärmeschutz

*
Luft-Wasser-Wärmepumpe mit FuĂźbodenheizung

*
Vorbereitung fĂĽr KĂĽhlung & Photovoltaik

*
Eichenparkett, groĂźformatige Fliesen, barrierefreie Dusche

*
Zwei Abstellräume, zwei WCs, Kaminanschluss

*
Dreifach-Isolierverglasung, Raffstore-Vorbereitung

*
E-Ladestation & PV-Leerverrohrung vorbereitet

*
Bergblick, ruhige & sonnige Lage

-------------------------

IHRE PREISVORTEILE AUF EINEN BLICK

 

TOP
WOHNFLÄCHE
GARTEN
PREIS
IHR VORTEIL (-5%)
NEUER PREIS

TOP 1
96 m²
103 m²
€ 519.250
€ 25.962
€ 493.288

TOP 2
96 m²
31 m²
€ 477.650
€ 24.482
€ 453.768

TOP 3
96 m²
32 m²
€ 477.650
verkauft
-

TOP 4
103 m²
31 m²
€ 514.600  
€ 25.730
€ 488.870

TOP 5
103 m²
33 m²
€ 514.600
reserviert
€ 488.870

TOP 6
103 m²
34 m²
€ 514.600
€ 25.730
€ 488.870

TOP 7
101 m²
98 m²
€ 543.260
verkauft
-

?? Gesamtersparnis bei Hauptwohnsitz - bei gesetzlicher Gegebenheit und einem Kaufangebot bis zu € 40.000,-!

-------------------------

DIE LAGE - NATURNAH UND DOCH MITTEN IM LEBEN

Villach-Auen vereint das Beste aus zwei Welten:
Ruhe, Natur und Bergblick - kombiniert mit perfekter Stadtnähe.

Hier wohnen Sie sonnig und familienfreundlich, umgeben von gepflegten Einfamilienhäusern und Grünflächen.
Der Silbersee, Spazierwege an der Gail, Schulen, Einkaufsmöglichkeiten und der Technologiepark Infineon liegen ganz in der Nähe.
Ăśber die A2 und A10 sind Klagenfurt, Italien und Slowenien in kĂĽrzester Zeit erreichbar.

-------------------------

VERLÄSSLICHE QUALITÄT - MKS BAUTRÄGER GMBH

Mit jahrelanger Erfahrung, hohem Qualitätsanspruch und Liebe zum Detail steht die MKS Bauträger GmbH fĂĽr nachhaltige Wohnqualität und architektonische Klarheit.
Ein Zuhause von MKS ist mehr als ein Haus - es ist ein Lebensraum fĂĽr Generationen.

-------------------------

FERTIGSTELLUNG: GEPLANT SOMMER 2026

?? JETZT INFORMIEREN UND AKTIONSVORTEIL SICHERN!
DIE NACHFRAGE IST GROSS - SICHERN SIE SICH JETZT IHR TRAUMHAUS

Der Vermittler ist als Doppelmakler tätig.

Infrastruktur / Entfernungen

Gesundheit
Arzt <1.000m
Apotheke <1.000m
Klinik <1.500m
Krankenhaus <2.000m

Kinder & Schulen
Schule <500m
Kindergarten <500m
Universität <3.000m
Höhere Schule <3.000m

Nahversorgung
Supermarkt <500m
Bäckerei <500m
Einkaufszentrum <1.000m

Sonstige
Geldautomat <500m
Bank <500m
Post <1.000m
Polizei <1.500m

Verkehr
Bus <500m
Bahnhof <1.500m
Autobahnanschluss <2.500m

Angaben Entfernung Luftlinie / Quelle: OpenStreetMap

Merkmale

  • 2 Stellplätze: 2 AuĂźen-Stellplätze
  • Gäste-WC
  • Bad mit Fenster
  • voll klimatisiert
  • Bodenbelag: Fliesen, Parkett
  • offener Kamin

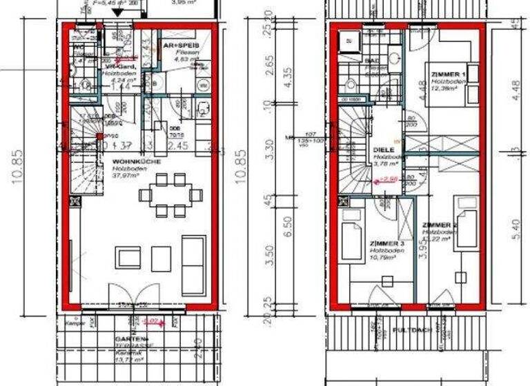
Grundrisse

Grundrisse
1 / 1

Realisiere Dein Projekt

Bausubstanz und Energie

Heizwärmebedarf (HWB)

B

Gesamtenergieeffizienz (fGEE)

A+
  • Zustand der ImmobilieNeubau, Massivhaus, Erstbezug
  • EnergieträgerLuft-/Wasser-Wärmepumpe
Immowelt logo

Preisdetails

Kaufpreis
488000 €
4.737,86 €/m²
Provision für Käufer
3% des Kaufpreises zzgl. 20% USt.
Weitere Preisinformationen
2 Stellplätze

Lage

address-icon
Lind, Villach (9500)
Im ruhigen und beliebten Stadtteil Villach-Auen entsteht eine moderne, nachhaltige Wohnanlage mit insgesamt sieben hochwertigen Reihenhäusern - ein zeitgemäßes Ensemble, das höchsten Wohnkomfort mit ökologischer Bauweise vereint.
Eingebettet zwischen der Drau, den Gailtaler Alpen und dem Technologiezentrum Infineon, verbindet dieses Wohnprojekt das Beste aus zwei Welten: naturnahe Erholung und urbanes Leben. Nur wenige Minuten vom Stadtzentrum entfernt, genießen Sie hier eine familienfreundliche, sonnige Umgebung mit hohem Freizeitwert, hervorragender Infrastruktur und kurzen Wegen zu Schulen, Nahversorgung, Ärzten und öffentlichem Verkehr.
Ob eine Radtour entlang der Gail, ein Cafébesuch in der Innenstadt oder ein entspannter Abend im eigenen Garten - in Villach-Auen wohnen Sie dort, wo Lebensqualität zuhause ist.

Weitere Informationen

Sonstiges Die angegebenen Daten stammen vom Eigentümer/Eigentümervertreter/Verwalter. Sie sind gewissenhaft erhoben worden. Dennoch kann für die Richtigkeit und Vollständigkeit keine Gewähr übernommen werden. Zahlenangaben können gegebenenfalls gerundet sein oder auf Schätzungen beruhen. Irrtümer und Änderungen vorbehalten. Das Angebot ist freibleibend und unverbindlich.

Technische Anlagen / Einrichtungen und Geräte wurden nicht auf Ihre Funktionstüchtigkeit überprüft.
Das Angebot ist freibleibend und unverbindlich. Irrtümer und Änderungen sind vorbehalten. 

Die symbolischen Darstellungen (Pläne) sind nicht maßstabsgetreu und wurden ausschließlich zur Veranschaulichung erstellt. Für Maße, Angaben, Anschlüsse, Ausrichtungen und korrekte Darstellungen der Räume, Türen, Fenster usw. wird KEINE Haftung übernommen. Diese Darstellungen sind nicht Vertragsgrundlage. 

Für laufende Neuigkeiten aus dem Immobilienmarkt und neue Immobilien Folgen Sie uns auch auf: Facebook [https://www.facebook.com/immohoch2] | Instagram [https://www.instagram.com/ariane.barrasch_immohoch2/] Stichworte Stellplatz vorhanden, Gartenfläche: 31,00 m², Bundesland: Kärnten Sonstiges: Neubaustandard

Weitere Services

Lust auf eine Besichtigung?
Eine Frage zur Immobilie?
Nachricht hinzufĂĽgen
Mit der Nutzung der oben angegebenen Telefonnummer oder durch Klicken auf „Kontaktieren“ akzeptierst Du die Allgemeinen Nutzungsbedingungen, denen Du jederzeit widersprechen kannst. Weitere Informationen zum Datenschutz

Ăśber den Anbieter

Immo Hoch2 GmbHMaklerbĂĽro
HauptstraĂźe 160, 9210 PĂ–RTSCHACH AM WĂ–RTHER SEE
partner badge
Partnerschaft
Frau Claudia RauterDein Kontakt

Weitere Unterlagen

Online-ID: 2nafe5u
Referenznummer: OBGC20260310084637098bcfb8dd7b9
Immo Hoch2 GmbH
Bewertung: 5 von 5 Sternen
Nachricht hinzufĂĽgen
Mit der Nutzung der oben angegebenen Telefonnummer oder durch Klicken auf „Kontaktieren“ akzeptierst Du die Allgemeinen Nutzungsbedingungen, denen Du jederzeit widersprechen kannst. Weitere Informationen zum Datenschutz
Wie zufrieden bist du mit dieser Seite (nicht mit der Immobilie selbst)?