Version: 8.25.1Navigation überspringen
499.480 €
4 Zimmer  •  152 m²  •  467 m² Grundstück

Einfamilienhaus zum Kauf
499480 €
3.286 €/m²
4 Zimmer  •  152 m²  •  467 m² Grundstück

Individuelles Einfamilienhaus - Ihr Traumhaus maßgeschneidert und energieeffizient realisiert

Dieses projektiertes Einfamilienhaus in Wuppertal bietet Ihnen mit 4.0 Zimmern auf 152 m² Wohnfläche ein Zuhause, das ganz nach Ihren persönlichen Wünschen gestaltet wird. Auf einem 467 m² großen Grundstück erstrecken sich zwei Etagen mit vier Schlafzimmern, einem modernen Badezimmer und einem praktischen Gäste-WC. Die gehobene Ausstattung erfüllt höchste Ansprüche und schafft eine Wohlfühloase für Ihre Familie. Unser flexibles Baukonzept ermöglicht es Ihnen, Ihr neues Zuhause individuell zu planen und zu gestalten - so wird jedes Detail exakt auf Ihre Vorstellungen abgestimmt.

Merkmale

  • 467 m² Grundstück
  • Gäste-WC
Das Haus ist mit einer modernen Luft-Wasser-Wärmepumpe ausgestattet, die nicht nur umweltfreundlich ist, sondern auch für effiziente und kostensparende Beheizung sorgt. Der KfW55-Standard garantiert eine hervorragende Energieeffizienz, unterstützt durch dreifach verglaste Fenster mit Aluminiumrollläden und eine kontrollierte Be- und Entlüftungsanlage mit Wärmerückgewinnung. Echtholztreppen, hochwertige Bodenbeläge, sanitäre Ausstattung sowie flexible Ausbaupakete und detaillierte Ausbauanleitungen bieten Ihnen beste Qualität und viele Möglichkeiten zur individuellen Gestaltung.

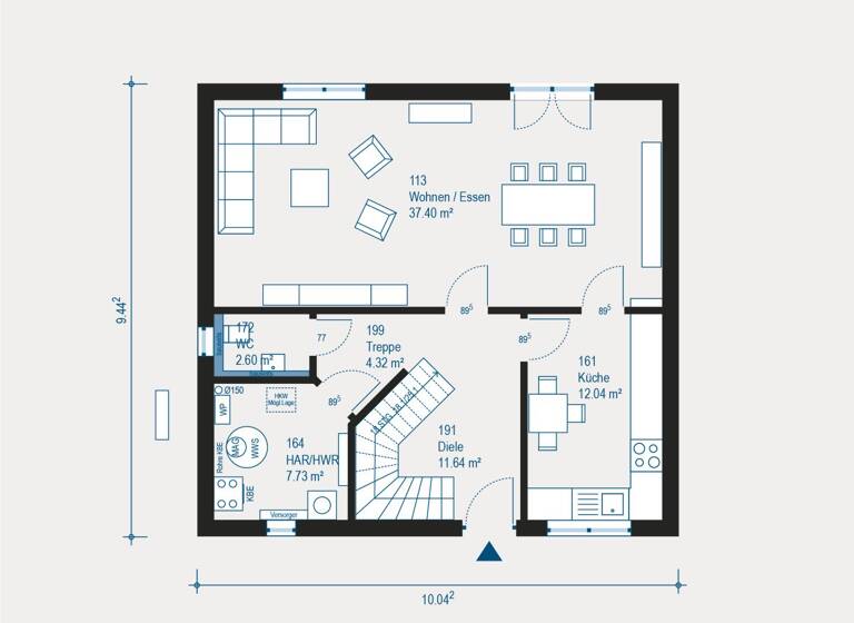
Grundrisse

Grundrisse
1 / 2

Realisiere Dein Projekt

Bausubstanz und Energie

Möchtest du Details zum Energieverbrauch?info_energy_calculation-icon
  • Baujahr2026
  • Zustand der ImmobilieProjektiert
  • HaustypKfW 55
  • HeizungsartFußbodenheizung
  • EnergieträgerLuft-/Wasser-Wärmepumpe

Preisdetails

Kaufpreis
499480 €
3.286,05 €/m²
Provision für Käufer
Bitte beachte, das Angebot kann bei Vertragsabschluss die Zahlung einer Provision beinhalten. Weitere Informationen erhältst Du vom Anbieter.
Geschätzte Gesamtkosten
559.766 €1
Kaufpreis
499.480 €
Notarkosten (1,5%)
7.492 €
Grunderwerbsteuer (6,5%)
32.466 €
Provision für Käufer (3,57%)
17.831 €
Grundbucheintrag (0,5%)
2.497 €
1Der angezeigte Wert ist eine automatisch berechnete Schätzung von immowelt.
2Bei den Angaben handelt es sich um ortsübliche Werte. Individuelle Kosten können abweichen.

Lage

address-icon
ElberfeldWuppertal (42103)
Der Anbieter hat die genaue Adresse nicht freigegeben
Hinweis zum Grundstücksangebot
Das Grundstück wird über einen kooperierenden Makler gemäß §34c GewO vermittelt bzw. verkauft.

?? Sie haben bereits ein Grundstück?
Perfekt - wir bauen Ihr Traumhaus gerne genau dort, wo Sie es sich wünschen.

?? Sie suchen noch?
Unser einzigartiger Grundstücksservice unterstützt Sie aktiv bei der Suche nach dem passenden Bauplatz - individuell, effizient und zuverlässig.

Transparenzhinweis: Alle Angaben zum Grundstück basieren auf Informationen des Verkäufers bzw. der Verkäuferin. Für deren Richtigkeit und Vollständigkeit übernehmen wir keine Gewähr oder Haftung. Zwischenverkauf und Irrtümer bleiben vorbehalten. Alle Angaben gelten vorbehaltlich der Erfüllung unserer Bau- und Lieferbedingungen.

?? Grundstückspreis
Ca. 241.900?EUR zzgl. Kauf- und Baunebenkosten

?? Wie funktioniert das allkauf-Konzept?
Das Beste daran: Sie sparen bares Geld, denn die Kaufnebenkosten fallen ausschließlich für das Grundstück an - nicht für das gesamte Bauprojekt. So können Sie schnell über 40.000?EUR einsparen und Ihr Budget gezielt für Ihr neues Zuhause einsetzen.

?? Vereinbaren Sie jetzt einen Termin - und wir besprechen gemeinsam alle weiteren Schritte zu Ihrem Traumhaus.

Weitere Informationen

Sonstiges allkauf steht für maximale Sicherheit, kurze Lieferzeiten und garantierte Fertigstellung. Unsere Dienstleistungspakete für Vielbeschäftigte, Ambitionierte und Heimwerker ermöglichen Ihnen, den Bau Ihres Hauses individuell zu gestalten - ob mit professioneller Unterstützung oder als Ausbauhaus zum Selbermachen, bei dem Sie durch Eigenleistung Kosten sparen. Zu allen Häusern gehört unter anderem die Architektenleistung, ein Bau-Sicherheitspaket, Heizungs- und Elektropakete, dreifach verglaste Fenster, Luft-Wasser-Wärmepumpe, Echtholztreppe, Bodenbeläge und Tapeten, Dämm- und Beplankungspaket sowie eine Fertigstellungsgarantie. Die Vorteile eines allkauf Fertighauses sind kurze Lieferzeiten von durchschnittlich 14 Wochen, hohe Planungssicherheit dank Festpreis-, Liefer- und Fertigstellungsgarantie, flexible Grundrissgestaltung sowie nachhaltiges Bauen in Holzrahmenbauweise. Über 35 Jahre Erfahrung und mehr als 19.000 zufriedene Kunden sprechen für die Qualität und das Vertrauen in allkauf. Vereinbaren Sie jetzt Ihren Termin zur Planung Ihres individuellen Traumhauses.

Home 8 - https://www.allkauf-ausbauhaus.de/de/haeuser/hausserie/home/home-8

Website - http://www.allkauf.de

Facebook - https://www.facebook.com/allkauf/?locale=de_DE

Linkedin - https://de.linkedin.com/company/allkauf-haus-gmbh

Instagram - https://www.instagram.com/allkauf_ausbauhaus/ Stichworte Anzahl der Schlafzimmer: 4, Anzahl der Badezimmer: 1, 2 Etagen

Weitere Services

Lust auf eine Besichtigung?
Eine Frage zur Immobilie?
Nachricht hinzufügen
Mit der Nutzung der oben angegebenen Telefonnummer oder durch Klicken auf „Kontaktieren“ akzeptierst Du die Allgemeinen Nutzungsbedingungen, denen Du jederzeit widersprechen kannst. Weitere Informationen zum Datenschutz

Über den Anbieter

Militscher Straße 29, 53881 Euskirchen
partner badge
Partnerschaft
Herr Carman MehmetDein Kontakt
Online-ID: 269APKP3Z4AY
Referenznummer: MC-354152-A4
NeWCoM GmbH - Detlef Wölk
Nachricht hinzufügen
Mit der Nutzung der oben angegebenen Telefonnummer oder durch Klicken auf „Kontaktieren“ akzeptierst Du die Allgemeinen Nutzungsbedingungen, denen Du jederzeit widersprechen kannst. Weitere Informationen zum Datenschutz
Wie zufrieden bist du mit dieser Seite (nicht mit der Immobilie selbst)?