Version: 8.24.0Navigation überspringen
1.120 €
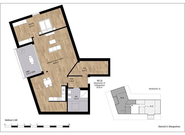
2 Zimmer  •  92,5 m²  •  3. Geschoss
Immowelt logo

Wohnung zur Miete
1.120 €
2 Zimmer  •  92,5 m²  •  3. Geschoss

2-Zimmerwohnung mit Balkon in Do-Aplerbeck!

Die Wohnung bietet modernen Wohnkomfort für Jedermann, ideal für Singles, Senioren oder Studenten.

Das Haus ist barrierearm gestaltet und verfügt über einen Personenaufzug, der alle Etagen miteinander verbindet. Beim Betreten der Wohnungen fällt sofort der moderne, farblich abgestimmte Designboden auf, der durch die lichtdurchfluteten Räume besonders zur Geltung kommt. Die weißen Wände in den Räumen mit Raufaser-Tapeten und das Badezimmer mit einer ebenerdigen Komfort-Dusche sowie einem praktischen Handtuchheizkörper runden das erste positive Gefühl ab.
Der offene Wohnbereich mit Küchenanschlüssen wartet nur darauf, von Ihnen mit Leben gefüllt zu werden. Zu der Wohnung gehört ein Balkon, die zum Verweilen einladen: einfach mal den Alltag vergessen und es sich in den eigenen vier Wänden gut gehen lassen.
Alle Fenster sind mit elektrischen Rollläden ausgestattet und verfügen über eine zeitgemäße Wohnraumbelüftung, die zu allen Jahreszeiten für ein angenehmes Raumklima sorgt. Zu jeder Wohnung gehört außerdem ein eigener Kellerraum.

Das Mobiliar ist kein Bestandteil des Vermietungsangebots.

Merkmale

  • Bezug: sofort
  • Dachgeschoss, 3. Geschoss
  • offene Küche
  • Personenaufzug
  • Kelleranteil
  • Balkon
  • Barrierefrei, Rollstuhlgerecht
  • Bad mit Dusche

Grundrisse

Grundrisse
1 / 1

Realisiere Dein Projekt

Bausubstanz und Energie

Energieausweis

A+
  • Baujahr2023
  • Zustand der ImmobilieNeubau, neuwertig
  • HeizungsartFußbodenheizung
Immowelt logo

Mietkosten

Warmmiete
1.460 €
Kaltmiete
12,11 €/m²
1.120 €
Nebenkosten
340 €
Heizkosten
in Warmmiete enthalten
Kaution
3360 €

Lage

address-icon
SchürenDortmund (44287)
Der Anbieter hat die genaue Adresse nicht freigegeben
Der Stadtteil Aplerbeck liegt am südöstlichen Rand von Dortmund und wird durch ausgedehnte Wohngebiete und große Freiraum- und Waldgebiete geprägt.

Aplerbeck ist ein begehrter Wohnort mit einer hohen Wohn- und Freizeitqualität und hat ca. 21.500 Einwohner. Mit viel Grün und trotzdem zentral gelegen, bietet der Stadtteil - neben den fußläufig zu erreichenden Schulen und Kindergärten - zahlreiche Geschäfte für den täglichen Bedarf sowie Restaurants, Cafés, Apotheken und Ärzte. Ein Stadtteil zum Wohlfühlen!

Der Standort ist sehr gut an das innerörtliche und überregionale ÖPNV-Netz angebunden. Über Bahn- und Bushaltestellen, die in wenigen Gehminuten erreichbar sind, ist der Aplerbecker Markt, die Dortmunder Innenstadt, der Hauptbahnhof und alle weiteren Dortmunder Stadtteile leicht zu erreichen.

Darüber hinaus ist man in wenigen Autominuten auf der B1 und B236, wodurch auch eine sehr gute Autobahn-Anbindung in das gesamte Ruhgebiet und darüber hinaus gewährleistet ist.

Weitere Informationen

Sonstiges Direkt vom Eigentümer!

Weitere Services

Lust auf eine Besichtigung?
Eine Frage zur Immobilie?
Nachricht hinzufügen
Mit der Nutzung der oben angegebenen Telefonnummer oder durch Klicken auf „Kontaktieren“ akzeptierst Du die Allgemeinen Nutzungsbedingungen, denen Du jederzeit widersprechen kannst. Weitere Informationen zum Datenschutz

Über den Anbieter

Rosemeyerstr. 14, 44139 Dortmund
partner badge
3 Jahre Partnerschaft
Herr PURPLERHINO Real Estate GmbH Herrn Manuel VohwinkelDein Kontakt
Online-ID: 2l8x65j
Referenznummer: 50052-16 (1/224)
PURPLERHINO REAL ESTATE GmbH
PURPLERHINO REAL ESTATE GmbH
Nachricht hinzufügen
Mit der Nutzung der oben angegebenen Telefonnummer oder durch Klicken auf „Kontaktieren“ akzeptierst Du die Allgemeinen Nutzungsbedingungen, denen Du jederzeit widersprechen kannst. Weitere Informationen zum Datenschutz
Wie zufrieden bist du mit dieser Seite (nicht mit der Immobilie selbst)?