

Reihenendhaus zum Kauf • als Kapitalanlage geeignet548750 €4.355 €/m²4 Zimmer • 126 m² • 566 m² Grundstück
548750 €
4.355 €/m²
4 Zimmer • 126 m² • 566 m² Grundstück
Modernes Reihenendhaus in ökologischer Holzbauweise – klimafreundlich, familiengerecht & förderfähig bis 200.000 €
Merkmale
- Bezug: 2026
- 2 Geschosse
- 566 m² Grundstück
- offene KĂĽche
- Carport
- Gäste-WC
- Balkon
- Gartenanteil, Garten
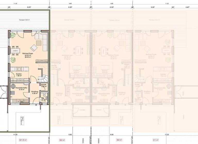
Grundrisse
Grundrisse
1 / 3
Realisiere Dein Projekt
Bausubstanz und Energie
Der Anbieter hat keine Informationen zum Energieverbrauch bereit gestellt.
- Baujahr2025
- Zustand der ImmobilieNeubau, Holzhaus, Projektiert
- HaustypKfW 40
- HeizungsartFuĂźbodenheizung
- EnergieträgerElektro, Solar, Luft-/Wasser-Wärmepumpe
Preisdetails
Kaufpreis
548750 €
4.355 €/m²
Provision für Käufer
Bitte beachte, das Angebot beinhaltet bei Vertragsabschluss die Zahlung einer Provision. Weitere Informationen erhältst Du vom Anbieter.
Geschätzte Gesamtkosten
614.984 €1
Kaufpreis
548.750 €
Kaufnebenkosten
66.234 €
2Notarkosten (1,5%)
8.231 €
Grunderwerbsteuer (6,5%)
35.669 €
Provision für Käufer (3,57%)
19.590 €
Grundbucheintrag (0,5%)
2.744 €
1Der angezeigte Wert ist eine automatisch berechnete Schätzung von immowelt.
2Bei den Angaben handelt es sich um ortsübliche Werte. Individuelle Kosten können abweichen.
Lage

Gerdoms Kamp, Lübbecke (32312)
Weitere Informationen
Weitere Services
Lust auf eine Besichtigung?
Eine Frage zur Immobilie?
Ăśber den Anbieter
Zimmerer-Profibau GmbHMaklerbĂĽro
Am Alten Markt 22, 32361 PreuĂźisch Oldendorf
Partnerschaft

Herr Mario DreesDein Kontakt
Online-ID: 2jk3r5f


Zimmerer-Profibau GmbH
Wie zufrieden bist du mit dieser Seite (nicht mit der Immobilie selbst)?

