Version: 8.26.0Navigation überspringen
3.450 €
5 Zimmer
Immowelt logo

Bürogebäude zur Miete
3.450 €
5 Zimmer

Ab sofort zu vermieten: Großzügige Gewerbeeinheit mit Altbaucharme mitten in Karlsruhe

Zur Vermietung steht ab sofort eine außergewöhnliche Gewerbeeinheit mit Charakter in bester Lage: Die Laden- oder Ausstellungsfläche mit Büro- und Lagermöglichkeit umfasst ca. 220m². Ob Concept-Store, Patisserie oder Büroräume - die Räumlichkeiten sind vielseitig nutzbar und lassen sich durch den Altbaucharme liebevoll gestalten.

Die hohen Decken unterstreichen die Großzügigkeit der einzelnen Räume, die durch Flügeltüren flexibel zu trennen sind. Stuckelemente betonen den Altbaucharme und helle Holzdielen am Boden schaffen eine warme und einladende Atmosphäre.

Die vorhandene Einrichtung der ehemaligen Apotheke ermöglicht die Präsentation Ihrer Produkte auf einzigartige Weise.

Die Gewerbeeinheit befindet sich in der Karlstraße 66 im Erdgeschoss.

Merkmale

  • Bezug: Sofort
  • 1. Geschoss
  • Keller
  • Bodenbelag: Holzdielen
5 Räume
Ca. 220m²

Bei den Nebenkosten handelt es sich um monatliche Vorauszahlungen für die Betriebskosten, die jährlich abgerechnet werden. Zusätzlich zur Gesamtmiete fällt die gesetzliche Umsatzsteuer von derzeit 19% an.

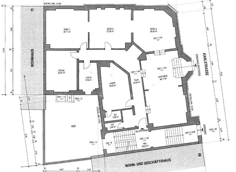
Grundrisse

Grundrisse
1 / 1

Bausubstanz und Energie

Energieausweis

Ein Energieausweis ist für diesen Gebäudetyp nicht notwendig.
  • Baujahr1897
  • Zustand der ImmobilieGepflegt
Immowelt logo

Mietkosten

Nettomiete
3.450 €
Nebenkosten
310 €
Zusätzliche Kosten
Heizkosten
Provision für Mieter
Bitte beachte, das Angebot kann bei Vertragsabschluss die Zahlung einer Provision beinhalten. Weitere Informationen erhältst Du vom Anbieter.
Kaution
6900 €
Weitere Preisinformationen
Nettokaltmiete: 3.450,00 EUR

Lage

address-icon
SüdweststadtKarlsruhe (76137)
Der Anbieter hat die genaue Adresse nicht freigegeben
Die Karlstraße ist die Hauptachse der westlichen Innen- und Südweststadt. Mehrere Straßenbahnen verbinden den Europaplatz mit dem Hauptbahnhof - Haltestellen sowie vielfältige Einkaufsmöglichkeiten befinden sich in unmittelbarer Nähe.

In direkter Umgebung finden sich zahlreiche charmante Cafés, beliebte Restaurants und kleine Fachgeschäfte - ein Umfeld, das sowohl Bewohner als auch Passanten zum Verweilen einlädt. Die Nähe der Fußgängerzone sorgt zu dem für eine hohe Kundenfrequenz und macht die Lage besonders attraktiv.

Weitere Informationen

Sonstiges Das Objekt steht ab sofort zur Verfügung.

Die Vermietung ist langfristig an professionelle Gewerbetreibende bzw. Filialisten gewünscht.

Konnten wir Ihr Interesse wecken? Lassen Sie uns einen unverbindlichen Besichtigungstermin vereinbaren und machen Sie sich selbst ein Bild des einzigartigen Objekts.

Sie möchten selbst ein Objekt vermarkten oder verwalten lassen? Wenden Sie sich gerne jederzeit an uns! Stichworte Nutzfläche: 220,00 m², Gesamtfläche: 200,00 m², Verkaufsfläche: 200,00 m², Distanz zur nächsten Einkaufsmöglichkeit: 0.64, Distanz zum Hauptbahnhof: 0.03, Distanz zum Bus: 0.37, Distanz zur nächsten Gaststätte: 0.04, Distanz zur Hauptschule: 1.67

Weitere Services

Lust auf eine Besichtigung?
Eine Frage zur Immobilie?
Mit einer persönlichen Nachricht hast du bessere Chancen auf eine Antwort.
Mit der Nutzung der oben angegebenen Telefonnummer oder durch Klicken auf „Kontaktieren“ akzeptierst Du die Allgemeinen Nutzungsbedingungen, denen Du jederzeit widersprechen kannst. Weitere Informationen zum Datenschutz

Über den Anbieter

Am Haberacker 7, 76275 Ettlingen
partner badge
6 Jahre Partnerschaft
Frau Hannah BrustDein Kontakt
Online-ID: 255LKHUAHIU3
Referenznummer: 174
Wie zufrieden bist du mit dieser Seite (nicht mit der Immobilie selbst)?