Wohnung 160m2 zum Kauf - Dubrovnik-Neretva, Blato
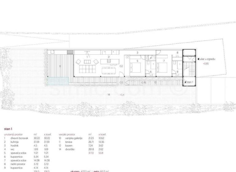
Wir vermitteln den Verkauf einer hochwertigen, äußerst luxuriösen und sehr geräumigen Zwei-Zimmer-Wohnung in einem Neubau an einem der schönsten und ruhigsten Orte auf der Südseite der Insel Korcula. Hierbei handelt es sich um eine kleinere Stadtvilla mit nur drei Wohnungen, die sich auf der untersten Etage befindet. Die Nettofläche beträgt 160 m und besteht aus einem Flur, zwei Schlafzimmern (jedes mit eigenem Bad und eines mit Arbeitsbereich), Toilette, Küche und einem außergewöhnlichen Wohnzimmer. Der Außenbereich der Wohnung, der sich vom Wohnzimmer aus öffnet, umfasst eine Außengalerie, eine Terrasse, einen Garten und einen Swimmingpool. Das Gebäude wird auf innovative, nachhaltige und umweltfreundliche Weise gebaut (CLT-System), während die endgültige Ausstattung der Wohnung ein Smart-Home-System, Smart-Glass-Folie für Glaswände und ein System mit einer Wärmepumpe eines renommierten Herstellers umfassen wird, als auch Fußbodenheizung, hochwertige Keramik und Sanitärartikel. Die Lage dieses Neubaus direkt am Meer garantiert unglaubliche Ruhe, Privatsphäre und einen Blick auf das Meer, und der beeindruckende Außenbereich jeder Wohnung vermittelt ein Gefühl des traditionellen Lebens im Freien. Die Fertigstellung ist für Herbst 2024 geplant. Eigentumsverhältnisse in Ordnung.
Die Standardgeschäftspolitik unserer Immobilienagentur besteht darin, eine Besichtigung der Immobilie zu organisieren, nachdem der Kunde unseren Standardagenturvertrag unterzeichnet hat. Die Unterzeichnung dieser Vereinbarung ist eine Grundvoraussetzung für weitere Aktivitäten im Zusammenhang mit dem Immobilienkauf, die auf dem Immobilienmaklergesetz und dem Datenschutzgesetz beruhen.