Version: 8.24.0Navigation überspringen
550 €
2 Zimmer  •  40 m² Verkaufsfläche
Immowelt logo

Laden zur Miete
550 €
2 Zimmer  •  40 m² Verkaufsfläche

Taufkirchen / Vils

Diese gepflegte Gewerbeeinheit mit ca. 40 m² befindet sich in hervorragend sichtbarer Lage direkt an der Hauptstraße von Taufkirchen (Vils). Die Fläche eignet sich besonders für Versicherungs- und Finanzdienstleister, Beratungsbüros, Kosmetik- oder Nagelstudios, kleine Dienstleistungsunternehmen oder eine kompakte Verkaufsfläche.

Eine Nutzung als Gastronomie oder Lebensmittelbetrieb (z. B. Bäckerei, Metzgerei etc.) ist ausgeschlossen.

Die Räumlichkeiten gliedern sich wie folgt:

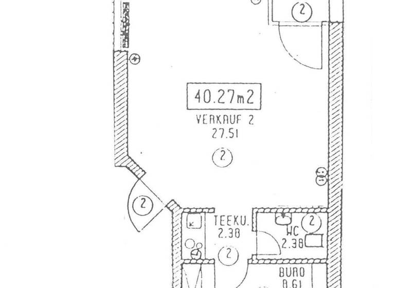
- Heller Laden- bzw. Bürobereich (ca. 28 m²) mit großer Fensterfront zur Hauptstraße - ideal für Präsentation und Kundenempfang

- Separater Büroraum (ca. 8 m²) - nutzbar als Beratungsraum, Arbeitsbereich oder kleines Lager

- WC

- Möblierte Teeküche

Die Einheit ist in einem sehr gepflegten Zustand und steht sofort zur Verfügung.

Ein KFZ-Außenstellplatz gehört zur Gewerbefläche und bietet Komfort für Sie oder Ihre Kunden.

Mietkonditionen:
- Kaltmiete: 550,- €
- Heiz- und Nebenkosten: 150,- € zzgl. MwSt.
- Verfügbar: sofort

Dank der zentralen Lage direkt an der Hauptstraße profitieren Sie von einer ausgezeichneten Sichtbarkeit, hoher Frequenz und guter Erreichbarkeit. Das Umfeld ist geprägt von Dienstleistungs- und Handelsbetrieben, ein optimaler Standort für Gewerbetreibende, die Wert auf Präsenz und eine professionelle Arbeitsumgebung legen.

Merkmale

  • Bezug: sofort
  • Erdgeschoss
  • 4 m Schaufensterfront
  • Außen-Stellplatz
  • Gäste-WC
  • Bodenbelag: Fliesen
- Helles Ladenlokal ca. 28 m² mit großer Fensterfront

- Separater Büroraum ca. 8 m²

- WC

- Möblierte Teeküche

- KFZ-Außenstellplatz inklusive

- Große Schaufensterfläche für Werbung und Präsentation

- Gute Innenbeleuchtung

- Zentrale Lage an der Hauptstraße

- Sofort verfügbar

- Geeignet für Büro- und Dienstleistungsnutzung (z. B. Versicherungen, Beratungen, Kosmetik/Nagelstudio, kleine Verkaufsfläche)

- Keine Genehmigung für Gastronomie oder lebensmittelverarbeitende Betriebe

Grundrisse

Grundrisse
1 / 1

Realisiere Dein Projekt

Bausubstanz und Energie

Energieausweis

Endenergieverbrauch (Wärme)

  • Baujahr1993
  • Zustand der ImmobilieGepflegt
  • EnergieträgerGas
Immowelt logo

Mietkosten

Nettomiete
550 €
Nebenkosten
150 €
Heizkosten
in Warmmiete enthalten
Zusätzliche Kosten
Miete pro Stellplatz
50 €
Provision für Mieter
2 Monatskaltmieten zzgl. 19% MwSt.
Mit Abschluss des rechtsgültigen Mietvertrages entsteht der Anspruch des Maklers auf die Provision in Höhe von 2 Kaltmieten zzgl. MwSt. (derzeit 19%).
Kaution
1650 €
Weitere Preisinformationen
1 Stellplatz, Miete: 50,00 EUR

Lage

address-icon
Taufkirchen, VilsTaufkirchen (Vils) (84416)
Der Anbieter hat die genaue Adresse nicht freigegeben
Die Gewerbefläche befindet sich in zentraler und verkehrsgünstiger Lage direkt an der Hauptstraße von Taufkirchen (Vils), einem lebendigen Markt im Landkreis Erding. Die Position an einer der wichtigsten Durchfahrtsstraßen sorgt für hohe Sichtbarkeit, regelmäßige Kundenfrequenz und eine hervorragende Erreichbarkeit - sowohl für Laufkundschaft als auch für Kunden, die mit dem Auto anreisen.

Taufkirchen (Vils) verfügt über eine solide Infrastruktur mit zahlreichen Dienstleistungsbetrieben, Einzelhandelsgeschäften, Ärzten und öffentlichen Einrichtungen. Das Standortumfeld eignet sich ideal für Unternehmen, die von einer gut etablierten lokalen Struktur profitieren möchten.

Die Nähe zur B388 ermöglicht eine schnelle Verbindung in Richtung Erding, Dorfen, Vilsbiburg und Landshut. Zudem ist der öffentliche Nahverkehr gut angebunden, sodass auch Mitarbeitende und Kunden ohne PKW komfortabel anreisen können.

Insgesamt bietet Taufkirchen (Vils) einen attraktiven Wirtschaftsstandort, der regional verwurzelt ist und zugleich ein stabil wachsendes Marktumfeld bietet, ideal für Dienstleistungsunternehmen, Bürobetriebe und kleine Fachgeschäfte.

Weitere Informationen

Sonstiges Sämtliche Angaben zu diesem Objekt dienen einer ersten Information. Das Exposé zu diesem Angebot und die darin gemachten Angaben in Wort, Bild und Werten stellen keine Beschaffenheitsvereinbarung dar. Wert- und Maßangaben sind lediglich ca.-Werte. Kanzelsberger Immobilien übernimmt keine Haftung für die vorliegenden Angaben. Die Aufteilung entnehmen Sie bitte den beigefügten Grundrissskizzen (unverbindliche Illustration).
Alle Angaben beruhen auf uns vorliegenden Informationen des Auftraggebers nach bestem Wissen und Gewissen. Das Geldwäschegesetz (GWG) verpflichtet uns, mit Erstkontaktaufnahme Ihre vollständigen Kontaktdaten aufzunehmen. Daher können wir nur Anfragen bearbeiten, die Ihren vollständigen Namen, Ihre Anschrift und Ihre Telefonnummer enthalten. Hierfür bitten wir höflich um Ihr Verständnis. Mit Ihrer Erstkontaktaufnahme erhalten Sie von uns auch die Information zu Ihrem gesetzlichen Widerrufsrecht.
Nach Erhalt Ihrer schriftlichen Anfrage, setzen wir uns kurzfristig mit Ihnen in Verbindung. Stichworte Stellplatz vorhanden, Bundesland: Bayern, nur Nichtraucher

Weitere Services

Lust auf eine Besichtigung?
Eine Frage zur Immobilie?
Nachricht hinzufügen
Mit der Nutzung der oben angegebenen Telefonnummer oder durch Klicken auf „Kontaktieren“ akzeptierst Du die Allgemeinen Nutzungsbedingungen, denen Du jederzeit widersprechen kannst. Weitere Informationen zum Datenschutz

Über den Anbieter

Spiegelgasse 8, 85435 Erding
partner badge
Partnerschaft
Frau Brigitte Felzmann
Frau Brigitte FelzmannDein Kontakt
Online-ID: 2mtmj5n
Referenznummer: 7270
Kanzelsberger Immobiliengesellschaft mbH
title
Kanzelsberger Immobiliengesellschaft mbH
Bewertung: 5 von 5 Sternen
Nachricht hinzufügen
Mit der Nutzung der oben angegebenen Telefonnummer oder durch Klicken auf „Kontaktieren“ akzeptierst Du die Allgemeinen Nutzungsbedingungen, denen Du jederzeit widersprechen kannst. Weitere Informationen zum Datenschutz
Wie zufrieden bist du mit dieser Seite (nicht mit der Immobilie selbst)?