Version: 8.24.0Navigation ĂĽberspringen
424.000 €
2 Zimmer  â€˘  71 m²  â€˘  1. Geschoss
Immowelt logo

Wohnung zum Kauf
424000 €
5.972 €/m²
2 Zimmer  â€˘  71 m²  â€˘  1. Geschoss

Wohnung 71m2 zum Kauf - Split, Znjan - Stobrec

Posredujemo u prodaji novog stambenog objekta u Splitu, predio Znjan-Pazdigrad.

Manja stambena zgrada sastoji se od 6 stambenih jedinica.
Katnost objekta: Prizemlje i dva kata (P+2K)


Sama lokacija objekta koja je na frenkvetnoj lokaciji, moderan oblik zgrade,
kao i bogata hortikultura oko samog objekta s uredenim parking prostorom pod rampom.

Odlicna lokacija, u neposrednoj blizini svih ostalih sadrzaja potrebnih za lagodan zivot.
Zgradu oblikuju sive i bijele boje, ali i moderni i luksuzni detalji.

-visoki standard gradnje
-visekomorna stolarija s troslojnim ostakljenjem
-ulazna protuprovalna + protupozarna vrata
-klimatizacijski sustav
-zavrsne obloge keramike 1 klase
-parlafon s videokamerom
-podno grijanje u cijelom stanu
-parking mjesto ukljuceno u cijenu**


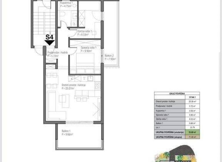
Stan S4 je polozen na prvom katu objekta, sastoji se od dvije spavace sobe (s izlazom na balkon), ulaznog prostora, kupaonice, te dnevnog boravka, kuhinje i blagavaonice u povezanoj cjelini s izlazom na balkon orjentiran prema jugu.
Sastoji se od unutarnjeg prostora velicine 53.8 m2 + balkon juzni 9.66 m2 balkon istocni 7.93 m2 = Ukupno 71.39 m2 (Obracunski: 62.5 m2)

CIJENA STANA: 424.000 €
Parking mjesto ukljuceno u cijenu***

KONTAKT: +385 95 1991 076 -BRUNO

Modus nekretnine
Tel: +385 95 1991 076
Email: modusnekretnine@gmail.com

Merkmale

  • 1. Geschoss

Grundrisse

Grundrisse
1 / 1

Realisiere Dein Projekt

Bausubstanz und Energie

Der Anbieter hat keine Informationen zum Energieverbrauch bereit gestellt.
  • Baujahr2025
Immowelt logo

Preisdetails

Kaufpreis
424000 €
5.971,83 €/m²
Provision für Käufer
Bitte beachte, das Angebot kann bei Vertragsabschluss die Zahlung einer Provision beinhalten. Weitere Informationen erhältst Du vom Anbieter.

Lage

address-icon
Znjan - Stobrec
Der Anbieter hat die genaue Adresse nicht freigegeben

Weitere Informationen

Stichworte Anzahl der Schlafzimmer: 2, Anzahl der Badezimmer: 1, 1 Etagen

Weitere Services

Lust auf eine Besichtigung?
Eine Frage zur Immobilie?
Nachricht hinzufĂĽgen
Mit der Nutzung der oben angegebenen Telefonnummer oder durch Klicken auf „Kontaktieren“ akzeptierst Du die Allgemeinen Nutzungsbedingungen, denen Du jederzeit widersprechen kannst. Weitere Informationen zum Datenschutz

Ăśber den Anbieter

Crozilla.com
Crozilla.comMaklerbĂĽro
Nova cesta 60, 10000 ZAGREB
Modus nekretnineDein Kontakt
Online-ID: 2n4nd57
Referenznummer: 19140520_0
Crozilla.com
Crozilla.com
Nachricht hinzufĂĽgen
Mit der Nutzung der oben angegebenen Telefonnummer oder durch Klicken auf „Kontaktieren“ akzeptierst Du die Allgemeinen Nutzungsbedingungen, denen Du jederzeit widersprechen kannst. Weitere Informationen zum Datenschutz
Wie zufrieden bist du mit dieser Seite (nicht mit der Immobilie selbst)?