Version: 8.24.0Navigation überspringen
139.200 €
488,4 m² Grundstück
Immowelt logo

Grundstück zum Kauf • provisionsfrei
139200 €
285 €/m²
488,4 m² Grundstück

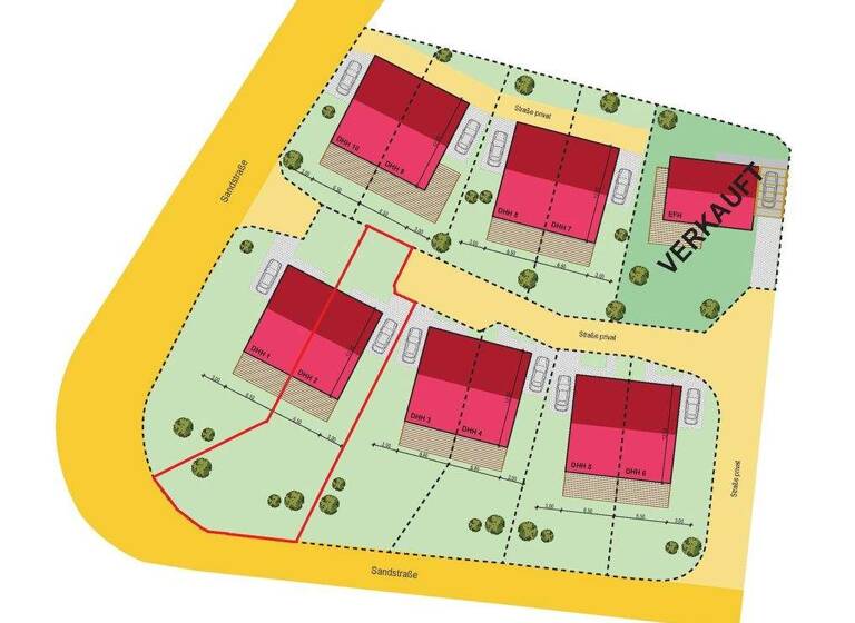
Bauen auf der Kussel!

Willkommen in Pivitsheide, einem Wohngebiet in Detmold mit einer idyllischen Lage auf der Kussel. Hier besteht die Möglichkeit, eines von zehn Wohnbaugrundstücken zu erwerben, die sich ideal für den Bau von Doppelhaushälften eignen. Alle Grundstücke verfügen bereits über eine positive Bauvoranfrage, sodass der Umsetzung von Bauvorhaben nichts im Wege steht. Die Lage bietet schöne Ausblicke auf den Teutoburger Wald und verfügt über eine gute Infrastruktur. In der Nähe befinden sich Kindergärten und Schulen, was die Region familienfreundlich macht. Zahlreiche Einkaufsmöglichkeiten, Apotheken und Ärzte sind schnell erreichbar, was den Alltag erleichtert. Durch die gute Verkehrsanbindung an umliegende Städte wird sowohl berufliche als auch private Flexibilität ermöglicht. Nutzen Sie die Gelegenheit, eines dieser Grundstücke zu erwerben und erleben Sie die Verbindung von Natur und urbanem Komfort in Ihrer zukünftigen Umgebung.

Merkmale

  • 488,4 m² Grundstück
- Grundstücke für Doppelhäuser
- Bebaubar nach B-Plan
- eingeschossig
- GRZ 0,4
- Satteldach, 38° - 45 °
- Firsthöhe max. 10,50m
- als Sondereigentum erwerbbar
- beliebte Lage auf der Kussel
- gute Infrastruktur
- Kindergärten und Schulen in der Nähe
- Einkaufsmöglichkeiten, Apotheke und Ärzte schnell erreichbar
- schnelle Anbindung in die umliegenden Städte
- naturnah
- Blick auf den Teutoburger Wald

Grundrisse

Grundrisse
1 / 1

Realisiere Dein Projekt

Bausubstanz und Energie

Der Anbieter hat keine Informationen zu Energieverbrauch oder Zustand der Immobilie bereit gestellt.
Immowelt logo

Preisdetails

Kaufpreis
139200 €
285 €/m²
Provision für Käufer
provisionsfrei; Der Käufer zahlt bei Erwerb dieses Objektes keine Courtage. Die S Immobilien GmbH hat einen provisionspflichtigen Maklervertrag mit dem Eigentümer abgeschlossen.
Geschätzte Gesamtkosten
139.200 €1
Kaufpreis
139.200 €
1Der angezeigte Wert ist eine automatisch berechnete Schätzung von immowelt.

Lage

address-icon
PivitsheideDetmold / Pivitsheide (32758)
Der Anbieter hat die genaue Adresse nicht freigegeben
Pivitsheide V. L. liegt etwa acht Kilometer westlich von der Detmolder Stadtmitte. Der Ort wird vom Rethlager Bach durchflossen, dessen Ursprung die Rethlager Quellen sind. Er ist
in großen Abschnitten seines Verlaufes naturnah belassen und bildet in der Ortsmitte den sehenswerten Rethlager Mühlenteich.
Einkaufsmöglichkeiten, Kindergarten und Grundschule sind im Ort vorhanden. Gute Verkehrsanbindung in Richtung Augustdorf und Bielefeld zu den Autobahnauffahrten.

Weitere Services

Lust auf eine Besichtigung?
Eine Frage zur Immobilie?
Nachricht hinzufügen
Mit der Nutzung der oben angegebenen Telefonnummer oder durch Klicken auf „Kontaktieren“ akzeptierst Du die Allgemeinen Nutzungsbedingungen, denen Du jederzeit widersprechen kannst. Weitere Informationen zum Datenschutz

Über den Anbieter

Paulinenstraße 34, 32756 Detmold
partner badge
6 Jahre Partnerschaft
Herr Ingo RikkenDein Kontakt
Online-ID: 2mca258
Referenznummer: 12450-02
S Immobilien GmbH
S Immobilien GmbH
Bewertung: 4,7 von 5 Sternen
Nachricht hinzufügen
Mit der Nutzung der oben angegebenen Telefonnummer oder durch Klicken auf „Kontaktieren“ akzeptierst Du die Allgemeinen Nutzungsbedingungen, denen Du jederzeit widersprechen kannst. Weitere Informationen zum Datenschutz
Wie zufrieden bist du mit dieser Seite (nicht mit der Immobilie selbst)?