- Bürogebäude - Baujahr 2000 - zeitgemäße- und formschöne Architektur - Fassadengestaltung in einer Glas-Metall-Komposition - Isolierverglasung - harmonisches Farbkonzept - lichtdurchflutete Treppenhäuser - hochwertiges Foyer mit Naturstein-Bodenbelag - attraktives Wegeleit- und Beschilderungssystem - zwei Personen-Lastenaufzüge - geräumige und zugangsgeschützte Tiefgarage
Merkmale
- mechanischer, außenliegender Sonnenschutz - exklusive Ausstattung mit Glaselementen und Dachterrasse - Raumaufteilung kann individuell nach Bedarf angepasst werden - Deckenhöhe ca. 2,70 m - abgehängte Decken mit individuellem Beleuchtungskonzept - großflächige Fensterfronten - eine faltbare Trennwand - Fensterbankkabelkanäle für Elektro- und Datenleitung - Teeküche vorhanden - Besprechungsraum mit Klimaanlage
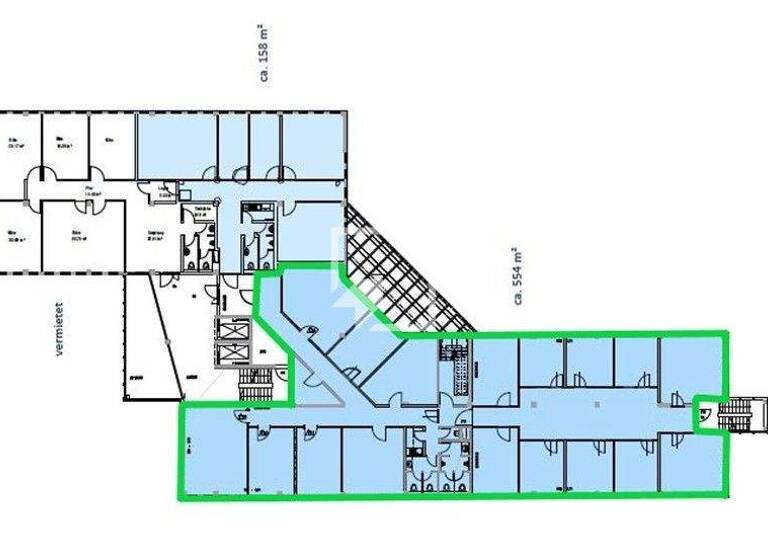
Grundrisse
Grundrisse
1 / 1
Realisiere Dein Projekt
Bausubstanz und Energie
Energieausweis
Endenergieverbrauch (Wärme)
Endenergieverbrauch (Strom)
EnergieträgerFernwärme
Mietkosten
Monatliche Miete
11 €/m²
Provision für Mieter
Provisionsfrei
Kaution
keine Angabe
Lage
Langwasser, Nürnberg (90471)
Der Anbieter hat die genaue Adresse nicht freigegeben
ÖPNV: U-Bahnanschluss ca. 3 Gehminuten, Bushaltestelle ca. 3 Gehminuten - nächste Autobahnanschlussstelle: A73 Nürnberg-Zollhaus ca. 6 Fahrminuten - Hauptbahnhof Nürnberg ca. 13 Fahrminuten - City ca. 19 Fahrminuten - Flughafen ca. 24 Fahrminuten entfernt
Weitere Informationen
Flächen
Büroflächen im 1. Obergeschoss mit ca. 649,00 m² Büroflächen im 2. Obergeschoss mit ca. 876,00 m² Büroflächen im 3. Obergeschoss mit ca. 554,00 m²
Stellplätze in der Tiefgarage: auf Anfrage
Miete/Monat
Bürofläche: ab 10,50 EUR/m²
Stellplätze in der Tiefgarage: 60,84 EUR/Stk.
Alle Mietpreise zzgl. der gesetzl. MwSt.
Bezug
ab 01.03.2024
Maklerhonorar
Die Anmietung ist für den Mieter provisionsfrei ab einer Mietvertragslaufzeit von 5 Jahren.
AGB`s
Auslassungen, Irrtum und Zwischenverwertung sind vorbehalten. Es gelten unsere Allgemeinen Geschäftsbedingungen.