Version: 8.24.0Navigation überspringen
1.152 €
3 Zimmer  •  100,2 m²  •  1. Geschoss
Immowelt logo

Wohnung zur Miete - Erstbezug
1.152 €
3 Zimmer  •  100,2 m²  •  1. Geschoss

Mietwohnung mit Fahrstuhl und Tiefgarage

In dem Baugebiet "Walduferviertel" in Döbeln entstehen 4 exklusive Mehrfamilienhäuser mit jeweils 7 Wohneinheiten in ruhiger, grüner und zentrumsnaher Lage. Alle vier Objekte sind über eine Tiefgarage miteinander verbunden, in welcher auch Stellplätz zu den jeweiligen Wohnungen mit angemietet werden können. Zudem verfügt jedes Objekt über einen Fahrstuhl, sodass sie jederzeit bequem mit Ihrem Einkauf in Ihre neue Wohnung gelangen.
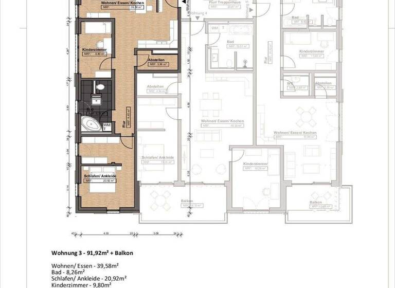
In den Objekten selbst befindet sich je eine 2-Raum-Wohnung, drei 3-Raum-Wohnungen sowie drei 4-Raum-Wohnungen. Die kleinste Wohnung ist ca. 90 qm groß und die größe Wohneinheit verfügt über eine Wohnfläche von ca. 130 qm. Alle Wohnungen verfügen zudem über eine Terrasse/Balkon/Dachterrasse, welche einladen den Tag entspannt ausklingen zu lassen.

Über den Flur gelangt man in den offen und einladenden Wohn- und Essbereich der jeweiligen Wohneinheit.

Alle Wohnungen sind mit einem Bad ausgestattet, in welchem sich eine Dusche/Badewanne befindet. Des Weiteren sind einzelne Wohneinheiten mit einem zusätzlichen Gäste-WC/-Bad ausgestattet. Einzelne Wohnungen locken außerdem mit dem Masterbad, welches direkt ans Schlafzimmer angrenzt.
Darüber hinaus verfügen einzelne Wohneinheiten über einen seperaten Ankleidebereich im Schlafzimmer.


Highlights: Fahrstuhl von der Tiefgarage bis zur Wohnungstür, Tiefgaragenstellplatz, Fußbodenheizung, moderne Fliesenböden, exklusive Bäder mit Dusche u. Wanne, bodentiefe Fenster mit Aluminium-

Merkmale

  • Bezug: ab sofort
  • 1. Geschoss
  • Bodenbelag: Fliesen

Grundrisse

Grundrisse
1 / 1

Realisiere Dein Projekt

Bausubstanz und Energie

Energieausweis

C
  • Baujahr2024
  • Zustand der ImmobilieMassivhaus, Erstbezug
  • EnergieträgerBlockheizkraftwerk
Immowelt logo

Mietkosten

Warmmiete
1.502 €
Kaltmiete
11,50 €/m²
1.152 €
Nebenkosten
350 €
Kaution
2304 €
Weitere Preisinformationen
Nettokaltmiete: 1.152,00 EUR

Lage

address-icon
Döbeln (04720)
Der Anbieter hat die genaue Adresse nicht freigegeben
Traumhaft ruhige Lage im Grünen und trotzdem in der Stadt. Alle Annehmlichkeiten der aufstrebenden Stadt Döbeln liegen nur wenige Minuten entfernt. Das Wohnquartier wird direkt über einen neuen, idyllischen Fuß- u. Radweg an den bestehenden sächsischen Muldentalrad- u. Wanderweg angebunden. Sie erreichen die kulturellen sächsischen Metropolen Dresden, Leipzig u. Chemnitz von hier aus in nur jeweils 35 - 45 Minuten.

Prüfen Sie dies genau und besuchen unsere neue Homepage:

www.wohnen-im-grünen.de

Erfahren Sie hier mehr zum Baugebiet und nehmen Einblick in den aktuellen Reservierungsstand.

Weitere Informationen

Sonstiges Alle Angaben haben wir vom Auftraggeber erhalten. Für deren Richtigkeit können wir keine Gewähr übernehmen. Einen Zwischenverkauf behält sich der Auftraggeber/Verkäufer ausdrücklich vor. Stichworte Bundesland: Sachsen, 3 Etagen

Weitere Services

Lust auf eine Besichtigung?
Eine Frage zur Immobilie?
Nachricht hinzufügen
Mit der Nutzung der oben angegebenen Telefonnummer oder durch Klicken auf „Kontaktieren“ akzeptierst Du die Allgemeinen Nutzungsbedingungen, denen Du jederzeit widersprechen kannst. Weitere Informationen zum Datenschutz

Über den Anbieter

Erich-Heckel-Platz 1, 04720 Döbeln
partner badge
Partnerschaft
Herr Torsten KurthDein Kontakt
Online-ID: 2mpuh5n
Referenznummer: 0553-3
Kreissparkasse Döbeln in Vertretung der LBS Immobilien GmbH
Kreissparkasse Döbeln in Vertretung der LBS Immobilien GmbH
Bewertung: 4 von 5 Sternen
Nachricht hinzufügen
Mit der Nutzung der oben angegebenen Telefonnummer oder durch Klicken auf „Kontaktieren“ akzeptierst Du die Allgemeinen Nutzungsbedingungen, denen Du jederzeit widersprechen kannst. Weitere Informationen zum Datenschutz
Wie zufrieden bist du mit dieser Seite (nicht mit der Immobilie selbst)?