Version: 8.23.0Navigation überspringen
­Anette Dettmer Immobilien
119.000 €
8 Zimmer  •  180,8 m²  •  177 m² Grundstück

Reihenmittelhaus zum Kauf
119000 €
658 €/m²
8 Zimmer  •  180,8 m²  •  177 m² Grundstück

Zweifamilien- oder Mehrgenerationenhaus in Freden

Sie suchen eine besondere Immobilie? Bitte schön!

Dieses massive Reihenmittelhaus oder auch Mehrgenerationenhaus aus dem Baujahr 1933 befindet sich in ruhiger und begehrter Wohnlage in Freden und bietet vielseitige Nutzungsmöglichkeiten. Das Haus ist in zwei Wohneinheiten aufgeteilt - ideal für Eigennutzer, Kapitalanleger oder eine Kombination aus beidem.

Nur die Wohnung im Erdgeschoss ist derzeit vermietet. So haben Sie die Möglichkeit, Ihre Mieter selbst auszuwählen oder selbst in die großzügige Maisonettewohnung im 1. und 2. Obergeschoss einzuziehen und die Mieteinnahmen zur Finanzierung zu nutzen.

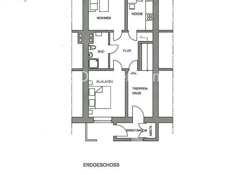
Über den Windfang mit praktischem Abstellraum gelangen Sie in das Treppenhaus. Von hier aus betreten Sie die vermietete Erdgeschosswohnung mit ca. 55,44 m² Wohnfläche. Sie verfügt über zwei Zimmer, eine Küche sowie ein Duschbad. Im Flur befindet sich zudem eine Bodenklappe mit Zugang zum Keller.

Die Maisonettewohnung im 1. und 2. Obergeschoss erstreckt sich über ca. 129,36 m² und bietet mit insgesamt sechs Zimmern, zwei Duschbädern sowie einem Hauswirtschaftsraum viel Platz für die ganze Familie.

In den Wohnräumen und Fluren ist pflegeleichter PVC-Fußboden verlegt. Jede Etage wird über eine eigene Gasetagenheizung beheizt.

Überzeugen Sie sich selbst von den Möglichkeiten dieser besonderen Immobilie - ich freue mich auf Ihre Anfrage und vereinbare gern einen Besichtigungstermin mit Ihnen.

Wir sind telefonisch oder per E-Mail für Ihre Fragen und Anliegen erreichbar. Bitte senden Sie Ihre Anfrage schriftlich über das jeweilige Immobilienportal. So erhalten Sie schnell Zugang zum vollständigen Exposé.
Falls Sie eine Besichtigung wünschen, dann prüfen Sie im Vorfeld die Finanzierung und bringen Sie bitte die Bestätigung mit. Wir können Ihnen auch gerne eine Finanzierung anbieten.

Merkmale

  • Bezug: sofort
  • vermietet
  • 177 m² Grundstück
  • Einbauküche
  • Terrasse
  • Badezimmer: Bad mit Dusche, Bad mit Fenster
  • Bodenbelag: Fliesen, Kunststoff
Zweifamilienhaus, massive Bauweise
teilmodernisiert
2 Einbauküchen 1. + 2.OG
1 Terrasse im Eingangsbereich
Elektrik 2021, Verteilerschrank und Zuleitung, digitale Zähler
Kunststofffenster 2003
Fußböden: PVC, Fliesen
Wohnung EG vermietet
Wohnung 1. + 2.OG leerstehend

Mieteinnahmen ist EG-Whg. EG: 2.350 €/Jahr

Grundstücksgröße 177m²

3 Gasetagenheizungen Brennwerttechnik Wolf 2020
3 Waschmaschinenanschlüsse in den Bädern

Teilkeller

Wohnungen
EG ca. 51,44m² Wohnfläche
1. + 2.OG ca. 129,36m² Wohnfläche
gesamt ca. 180,79m² Wohnfläche

Weitere Angaben:
Objektart: Anlageobjekt
Objekttyp: Zweifamilienhaus
Ort: 31084 Freden (Leine)
Land: Niedersachsen
Kaufpreis: EUR 119.000
Provision: 3,57% inkl. 19% MwSt.
Zustand: teilmodernisiert
Befeuerung: Gas
Heizungsart: 3 Gasetagenheizungen

Baujahr: ca. 1933
Energieausweis: Energiebedarf 384,6 kWh(m²*a)
ausgestellt am 06.09.2024
Baujahr Anlagentechnik lt. Energieausweis 2020
Energieeffizienzklasse: H

Grundrisse

Grundrisse
1 / 3

Realisiere Dein Projekt

Bausubstanz und Energie

Energieausweis

H
  • Baujahr1933
  • HeizungsartEtagenheizung
  • EnergieträgerGas

Preisdetails

Kaufpreis
119000 €
658,22 €/m²
Provision für Käufer
3,57% inkl. MwSt.
Geschätzte Gesamtkosten
131.578 €1
Kaufpreis
119.000 €
Notarkosten (1,5%)
1.785 €
Grunderwerbsteuer (5%)
5.950 €
Provision für Käufer (3,57%)
4.248 €
Grundbucheintrag (0,5%)
595 €
1Der angezeigte Wert ist eine automatisch berechnete Schätzung von immowelt.
2Bei den Angaben handelt es sich um ortsübliche Werte. Individuelle Kosten können abweichen.

Lage

address-icon
FredenFreden (Leine) (31084)
Der Anbieter hat die genaue Adresse nicht freigegeben
Die Samtgemeinde Freden mit den Gemeinden Everode, Landwehr und Winzenburg liegt zwischen Alfeld und Bad Gandersheim. Zahlreiche öffentliche Einrichtungen bereichern das Bild der Samtgemeinde. Rathaus, Grundschule, Kindergärten, Jugendzentrum, sportliche Einrichtungen, Freibad sowie die Freiwillige Feuerwehr. In Freden gibt es mehrere Ärzte, Apotheken, Supermärkte und einen Bahnhof (Strecke Hannover-Göttingen). Der Ort liegt ca. 10 km entfernt von Alfeld. Dort gibt es alle Formen allgemeinbildender Schulen (darunter Gymnasium und eine große Berufsschule), Kindergärten, Senioreneinrichtungen, Allwetterbad, Sportanlagen und ein neues Kino.

Die Immobilie befindet sich zentrumsnah in "Klein Freden". Einkaufsmöglichkeiten und Bahnhof sind in der Nähe.

Weitere Informationen

Sonstiges Der Käufer zahlt im Erfolgsfall eine Maklerprovision in Höhe von 3,57% inkl. 19% MwSt. Die Provision errechnet sich aus dem beurkundeten Kaufpreis.
Da wir Objektangaben nicht selbst ermitteln, übernehmen wir hierfür keine Gewähr. Dieses Exposè ist nur für Sie persönlich bestimmt. Eine Weitergabe an Dritte ist an unsere ausdrückliche Zustimmung gebunden und unterbindet nicht unseren Provisionsanspruch bei Zustandekommen eines Vertrages.
Alle Gespräche sind über unser Büro zu führen. Bei Zuwiderhandlung behalten wir uns Schadenersatz bis zur Höhe der Provisionsansprüche ausdrücklich vor. Zwischenverkauf ist nicht ausgeschlossen.

Bitte bewahren Sie die Privatsphäre und sehen Sie vom Betreten des Grundstücks ohne unsere Begleitung ab.

Sie haben die Möglichkeit, sich bei einem informatorischen Beratungsgespräch zum Energieausweis durch einen Energieberater der Verbraucherzentrale Bundesverband (vzbv) zu informieren.

Anette Dettmer Immobilien ist zertifiziert nach DIN EN 15733 (Dienstleistung von Immobilienmaklern) DIAZert. Stichworte Anzahl der Schlafzimmer: 3, Anzahl der Badezimmer: 3, Anzahl Terrassen: 1, 3 Etagen, modernisiert

Weitere Services

Lust auf eine Besichtigung?
Eine Frage zur Immobilie?
Nachricht hinzufügen
Mit der Nutzung der oben angegebenen Telefonnummer oder durch Klicken auf „Kontaktieren“ akzeptierst Du die Allgemeinen Nutzungsbedingungen, denen Du jederzeit widersprechen kannst. Weitere Informationen zum Datenschutz

Über den Anbieter

­Hildesheimer Str. 18, 31061 ­Alfeld
partner badge
Partnerschaft
Frau Anette Dettmer
Frau Anette DettmerDein Kontakt
Online-ID: 2nsbk5k
Referenznummer: 490
­Anette Dettmer Immobilien
title
­Anette Dettmer Immobilien
Bewertung: 4,6 von 5 Sternen
Nachricht hinzufügen
Mit der Nutzung der oben angegebenen Telefonnummer oder durch Klicken auf „Kontaktieren“ akzeptierst Du die Allgemeinen Nutzungsbedingungen, denen Du jederzeit widersprechen kannst. Weitere Informationen zum Datenschutz
Wie zufrieden bist du mit dieser Seite (nicht mit der Immobilie selbst)?