Version: 8.25.1Navigation überspringen
13 €
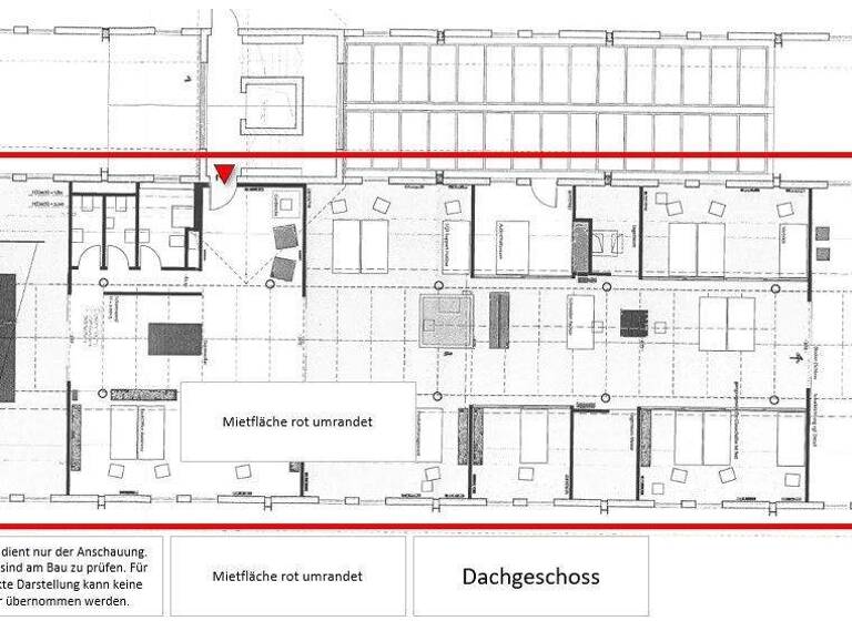
392 m² Bürofläche  •  teilbar ab 392 m²
Immowelt logo

Bürofläche zur Miete
13 €
/m²
392 m² Bürofläche  •  teilbar ab 392 m²

Top Bürofläche im Chiemgau

Das 2001 errichtete Gebäude bietet moderne Mietflächen im barrierefrei erreichbaren Dachgeschoss. Die Immobilie besticht durch einen offenen Grundriss, elegante Glasabtrennungen und eine beeindruckende Stahlkonstruktion. Hochwertige Materialien, eine attraktive Teeküche sowie die offene Grundrissplanung sorgt für eine angenehme Arbeitsatmosphäre. Eine nachhaltige Nahwärmeanlage und eine leistungsstarke Internetanbindung runden das Angebot ab.

- sehr gute Lage im bekannten Ferienort Aschau im Chiemgau
- großzügig gestalteter Grundriss mit offenen Büroflächen und Einzelbüros
- sehr gute Ausstattung, Glaswände, Glasfaseranschluss, Übergabe im renovierten Zustand
- ausreichend Parkplätze vorhanden

Die Mietfläche wird renoviert an den neuen Mieter übergeben. Die Renovierung beinhaltet das Streichen der Wände mit weißer Farbe und das Reinigen der Fußböden.

Technische Einrichtungen wir die komplette IT-Infrastruktur, die Beleuchtungsanlage und die Küche können vom Vormieter gegen Ablöse übernommen werden.

Merkmale

  • Bezug: Sofort verfügbar

Grundrisse

Grundrisse
1 / 1

Realisiere Dein Projekt

Bausubstanz und Energie

Energieausweis

Endenergiebedarf (Wärme)

Endenergiebedarf (Strom)

  • Baujahr2001
  • EnergieträgerFernwärme, Elektro
Immowelt logo

Mietkosten

Monatliche Miete
13 €/m²
Provision für Mieter
1,78 Netto-Monatsmieten incl. MwSt.
Kaution
keine Angabe

Lage

address-icon
Aschau (83229)
Der Anbieter hat die genaue Adresse nicht freigegeben
Überregionale Lage

Eingebettet in einem der schönsten Winkel des Alpenvorlandes, empfiehlt sich die Region Rosenheim - als wirtschaftliches Zentrum für rund 350.000 Einwohner - seinen Besuchern mit optimalen Verkehrsanbindungen und einem hochwertigen Kultur- und Freizeitangebot zu allen Jahreszeiten.

Zu einer ganzen Fülle von positiven Standortfaktoren gehört die sehr gute Verkehrsinfrastruktur mit Anbindung an europäische Hauptverkehrsachsen über Straße und Schiene und die Nähe der internationalen Flughäfen München und Salzburg sowie das reichhaltige und hochqualifizierte Kulturangebot und der hohe Freizeitwert der Chiemgauer Alpen.

Die Leistungsfähigkeit der heimischen Wirtschaft, der starke Branchenmix und die hohe Kaufkraft des oberbayerischen Raumes sorgen für beste Standortbedingungen.

Regionale Lage

Mitten zwischen München und Salzburg, Kaisergebirge und Bayerischem Meer liegt der Luftkurort Aschau im Chiemgau. Egal, ob Sie einen Standort für einen mittelständischen Gewerbe- oder Dienstleistungsbetrieb, oder einen attraktiven Wohnort mit zahlreichen Infrastruktureinrichtungen suchen, der Ort mit seinen 6.000 Einwohnern bietet Ihnen viele Möglichkeiten.

Unsere Immobilie liegt in Hohenaschau an der Staatsstraße 2093, die von hier über Sachrang nach Tirol führt. Die Fläche ist Teil eines größeren Gebäudes und befindet sich im Dachgeschoss.

Weitere Informationen

Nutzung Büronutzungen für Ingenieurfirmen, Softwarehäuser oder kreative Berufe. Auch bestens für allgemeine Verwaltungsaufgaben oder Dienstleistungen geeignet. Zusatz/Über Uns Herzlich Willkommen bei Felder, Ihrem Spezialisten für Gewerbeimmobilien in Rosenheim, Traunstein, dem Chiemgau und Oberbayern.

Sie möchten mehr Informationen zu diesem Objekt? Gern übersenden wir Ihnen unverbindlich unser aussagekräftiges Exposee. Ein E-Mail oder Anruf genügt.

Die im Exposee angegebenen Daten beruhen auf Angaben des Eigentümers. Für diese Angaben übernehmen wir keine Gewähr. Der Maklervertrag mit uns kommt entweder durch schriftliche Vereinbarung oder auch durch die Inanspruchnahme unserer Maklertätigkeit auf der Basis des Objekt Exposees und seiner Bedingungen zustande.

Unsere Beratungsleistung ist erfolgsorientiert und für Sie bis zum Abschluss eines Vertrages freibleibend. Gern stehen wir Ihnen beratend zur Seite. Wir freuen uns auf Ihren Anruf.


Sie suchen eine Gewerbeimmobilie im Rosenheimer Land, Traunstein, Oberbayern oder dem Chiemgau und möchten sich bei Ihrer Suche auf das Fachwissen und Netzwerk eines starken Partners verlassen können? Sie möchten Ihre Gewerbeimmobilie vermieten oder verkaufen? Sie suchen die passenden Mieter oder Investoren? Dann sollten Sie uns ansprechen und von unserem Bekanntheitsgrad und großem Netzwerk in der Region profitieren.

Wir begleiten Sie vom ersten Kontakt bis zur Unterschrift unter dem Miet- oder Kaufvertrag. Seit über 25 Jahren ist die Firma Felder als der Spezialist für Gewerbeimmobilien im Rosenheimer Immobilienmarkt bekannt. Mehr Immobilien finden Sie auf www.felder-gewerbe.de

Weitere Services

Lust auf eine Besichtigung?
Eine Frage zur Immobilie?
Mit einer persönlichen Nachricht hast du bessere Chancen auf eine Antwort.
Mit der Nutzung der oben angegebenen Telefonnummer oder durch Klicken auf „Kontaktieren“ akzeptierst Du die Allgemeinen Nutzungsbedingungen, denen Du jederzeit widersprechen kannst. Weitere Informationen zum Datenschutz

Über den Anbieter

Ludwigsplatz 15, 83031 Rosenheim
partner badge
10 Jahre Partnerschaft
Herr Thomas Wüstefeld
Herr Thomas WüstefeldDein Kontakt
Online-ID: 25GKB7YZGBDN
Referenznummer: A1466
Felder. Der Gewerbespezialist GmbH & Co. KG
title
Felder. Der Gewerbespezialist GmbH & Co. KG
Bewertung: 5 von 5 Sternen
Mit einer persönlichen Nachricht hast du bessere Chancen auf eine Antwort.
Mit der Nutzung der oben angegebenen Telefonnummer oder durch Klicken auf „Kontaktieren“ akzeptierst Du die Allgemeinen Nutzungsbedingungen, denen Du jederzeit widersprechen kannst. Weitere Informationen zum Datenschutz
Wie zufrieden bist du mit dieser Seite (nicht mit der Immobilie selbst)?