Version: 8.25.1Navigation überspringen
Mietkosten auf Anfrage
775 m² Gastrofläche
Immowelt logo

Gastronomie/Hotel zur Miete
Mietkosten auf Anfrage
775 m² Gastrofläche

Hochwertige Gastronomieflächen am Lindau Park | NEUBAU | Erstbezug

Gerne senden wir Ihnen nach Übermittlung Ihrer vollständigen Kontaktdaten ein ausführliches Vermietungsexposé zu.

**************************
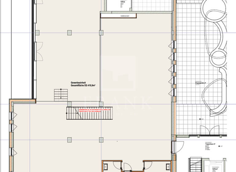
In unmittelbarer Nähe zum 4Linden Quartier im "Haus N" stehen bis zu ca. 775 m² Gastronomiefläche im Erdgeschoss zur Anmietung bereit. Eine Teilung der Flächen - sofern umsetzbar - ist nach Absprache möglich.

Die in diesem Exposé angebotenen Gewerbeflächen befinden sich im Erdgeschoss und verteilen sich auf die Gebäudeteile A und D.

Verfügbare Fläche/n:
Gastro (Geb. A): EG, ca. 402 qm
Gastro (Geb. D): EG, ca. 373 qm

Netto-Kaltmiete pro Monat ab 20,00 €/ qm zzgl. MwSt. und NK, abhängig von Flächengröße.

**** Die Flächen werden im veredelten Rohbau angeboten***

PKW-Stellplätze können in der hauseigenen Tiefgarage angemietet werden.

Die Fertigstellung des Objektes ist für Ende 2025/ Anfang 2026 geplant.

Merkmale

  • Bezug: Anfang 2026
  • Personenaufzug
  • Gäste-WC
Individuelle Wünsche können bei der Einteilung der Räumlichkeiten sowie bei der Wahl der Ausstattung berücksichtigt werden.

Bodenbelag: nach Mieterwunsch
Beleuchtung: nach Mieterwunsch
Decke: nach Mieterwunsch
Sonnenschutz: außenliegend elektrisch
Öffenbare Fenster: vorhanden

Wärmeversorgung: Geothermie
Personenaufzug: vorhanden
Teeküche: Anschlussmöglichkeit vorhanden
Kühlung/Lüftung: gemäß BAB
Kabelführung: gemäß BAB
Verkabelung: gemäß BAB
Sicherheit: gemäß BAB

Grundrisse

Grundrisse
1 / 1

Realisiere Dein Projekt

Bausubstanz und Energie

Möchtest du Details zum Energieverbrauch?info_energy_calculation-icon
  • Baujahr2026
  • Zustand der ImmobilieProjektiert
Immowelt logo

Mietkosten

Miete auf Anfrage
Provision für Mieter
Bitte beachte, das Angebot kann bei Vertragsabschluss die Zahlung einer Provision beinhalten. Weitere Informationen erhältst Du vom Anbieter.
Kaution
ja

Lage

address-icon
ReutinLindau (Bodensee) (88131)
Der Anbieter hat die genaue Adresse nicht freigegeben
Das Vierlinden-Quartier sowie das Geschäftshaus "Haus N" liegen inmitten Lindaus, einem der schönsten Orte Deutschlands, in ruhiger, aber dennoch zentraler und gut erreichbarer Lage.

Das Umfeld bietet nicht nur alle Annehmlichkeiten des täglichen Bedarfs, wie ausreichend Einkaufsmöglichkeiten, Bäckereien, Supermärkte sowie Cafés und Restaurants, sondern ist auch ein Anlaufpunkt für zahlreiche Touristen aus der ganzen Welt.

Der Hafen Lindaus mit seinem charakteristischen Löwen, der Mangturm, die historische Maximilianstraße sind nur einige der Sehenswürdigkeiten, die es auf der Lindauer Insel zu entdecken gilt.

- Sehr attraktive Lage im Zentrum von Lindau am Bodensee
- Fußläufig Bahnhof Reutin, ca. 200 m
- Direkter Anschluss an die Bundesstraße B 12
- Anschluss an die Bundesautobahn A 96 in ca. 1,5 km Entfernung
- Die nächsten Regionalflughäfen in Friedrichshafen und im Schweizer Altenrhein liegen jeweils rund 20 km entfernt
- Ebenfalls zu erwähnen ist die Anbindung an den Bodenseeschifffahrtsverkehr (CH)/(AUT)

Weitere Informationen

Sonstiges Gerne senden wir Ihnen nach Übermittlung Ihrer vollständigen Kontaktdaten ein ausführliches Exposé zu. Gerne beraten wir Sie über die Möglichkeiten im projektieren Objekt und freuen uns auf Ihre Kontaktaufnahme.

Alle Angaben sind ohne Gewähr und basieren ausschließlich auf Informationen, die uns von unserem Auftraggeber übermittelt wurden. Wir übernehmen keine Gewähr für die Vollständigkeit, Richtigkeit und Aktualität dieser Angaben.

Die FRANK Immobilien GmbH bietet Ihnen dieses Objekt provisionsfrei zur Miete an. Stichworte Gesamtfläche: 775,00 m², Distanz zur Autobahn: 3.00, Distanz vom Zentrum: 4.00 Sonstiges: EDV-Verkabelung

Weitere Services

Lust auf eine Besichtigung?
Eine Frage zur Immobilie?
Mit einer persönlichen Nachricht hast du bessere Chancen auf eine Antwort.
Mit der Nutzung der oben angegebenen Telefonnummer oder durch Klicken auf „Kontaktieren“ akzeptierst Du die Allgemeinen Nutzungsbedingungen, denen Du jederzeit widersprechen kannst. Weitere Informationen zum Datenschutz

Über den Anbieter

Anheggerstr. 53, 88131 Lindau
partner badge
6 Jahre Partnerschaft
Herr Norbert SchultekDein Kontakt
Online-ID: 253RR5NWA37V
Referenznummer: 1373
FRANK Immobilien GmbH
Bewertung: 3,9 von 5 Sternen
Mit einer persönlichen Nachricht hast du bessere Chancen auf eine Antwort.
Mit der Nutzung der oben angegebenen Telefonnummer oder durch Klicken auf „Kontaktieren“ akzeptierst Du die Allgemeinen Nutzungsbedingungen, denen Du jederzeit widersprechen kannst. Weitere Informationen zum Datenschutz
Wie zufrieden bist du mit dieser Seite (nicht mit der Immobilie selbst)?