Der Preis bezieht sich auf das beschriebene Haus und das Grundstück!
Musterhaus CONCEPT-M 165 Wuppertal:
Bei unseren Musterhäusern ist das CONCEPT-M 165 schon ein Klassiker. An Aktualität hat es seitdem nichts verloren. Im Gegenteil: die großflächig Fensterfront, die sich vom Erdgeschoss ins Obergeschoss durchzieht, eröffnet oben wie unten eine beeindruckende Panoramasicht. Als innovatives Smart-City Plus-Energiehaus ist es seiner Zeit schon lange vorausgewesen und setzt nach wie vor Maßstäbe. So glänzt das Musterhaus durch seine autarke und nachhaltige Stromerzeugung und -speicherung. Damit lässt sich nicht nur im großzügigen Lebensraum wohnen, sondern die hauseigene Lade-Station versorgt auch das Elektroauto von morgen - die Zukunft des Wohnens kann kommen.
Merkmale
665 m² Grundstück
Dieses hoch gedämmte Fertighaus wird mit einer Wärmepumpe und unserer einzigartigen Wohlkühl-Klima-Heizung PLUS geheizt und gekühlt. Fenster mit Dreifachverglasung, sowie die Dämmung der Wände und im Dach sorgen für sehr geringen Energiebedarf und damit auch Nebenkosten. Einen großen Teil der Energie erzeugen Sie hierbei auf dem eigenen Dach mit einer Photovoltaik Anlage und Batteriespeicher selbst.
Das Haus wird "High Quality" schlüsselfertig, also ohne Eigenleistungen einzugsfertig übergeben.
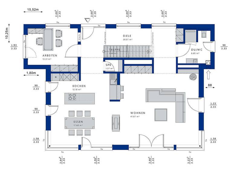
Grundrisse
Grundrisse
1 / 2
Realisiere Dein Projekt
Bausubstanz und Energie
Möchtest du Details zum Energieverbrauch?
Preisdetails
Kaufpreis
988779 €988.779 €
5.992,60 €/m²
Provision für Käufer
Bitte beachte, das Angebot kann bei Vertragsabschluss die Zahlung einer Provision beinhalten. Weitere Informationen erhältst Du vom Anbieter.
Geschätzte Gesamtkosten
1.108.125 €1
Kaufpreis
988.779 €
Kaufnebenkosten
119.346 €
2
Notarkosten (1,5%)
14.832 €
Grunderwerbsteuer (6,5%)
64.271 €
Provision für Käufer (3,57%)
35.299 €
Grundbucheintrag (0,5%)
4.944 €
1Der angezeigte Wert ist eine automatisch berechnete Schätzung von immowelt.
2Bei den Angaben handelt es sich um ortsübliche Werte. Individuelle Kosten können abweichen.
Lage
Hilden (40724)
Der Anbieter hat die genaue Adresse nicht freigegeben
Die Wohnsituation in Hilden ist insgesamt recht attraktiv. Die Stadt bietet eine Mischung aus verschiedenen Wohnmöglichkeiten, darunter Einfamilienhäuser, Reihenhäuser und Wohnungen. Hilden ist gut an den öffentlichen Nahverkehr angebunden, was es einfach macht, die umliegenden Städte wie Düsseldorf und Wuppertal zu erreichen.
Die Mietpreise können je nach Lage und Art der Immobilie variieren, sind aber im Vergleich zu größeren Städten oft moderater. Zudem gibt es in Hilden eine gute Infrastruktur mit Schulen, Einkaufsmöglichkeiten und Freizeitangeboten, was die Stadt besonders für Familien interessant macht. Insgesamt ist Hilden eine beliebte Wohngegend, die sowohl für junge Menschen als auch für Familien und Senioren viele Vorteile bietet.
Weitere Informationen
Sonstiges
Das Haus entspricht dem KfW40+ QNG Standard.
Da es sich um eine Projektierung handelt, können wir aber auch ein anderes Bien-Zenker Haus wählen oder konstruieren.
Das Angebot richtet sich ausschließlich an Bien-Zenker Kunden!
Wir verkaufen und vermitteln keine Grundstücke.
Wenn Sie Bien-Zenker Kunde werden wollen, vereinbaren Sie bitte einen Termin mit mir.