Version: 8.24.0Navigation überspringen
ohne-makler.net - Immobilien selbst vermarkten
350.047 €
1.003 m² Grundstück

Grundstück zum Kauf • provisionsfrei
350047 €
349 €/m²
1.003 m² Grundstück

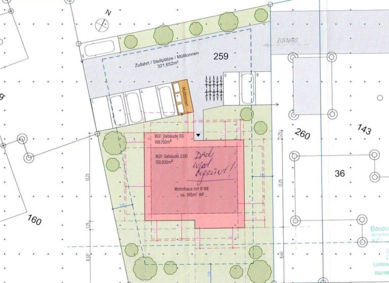
Ideales Investment: Grundstück für ein 6 Familienhaus mit positiver Bauvoranfrage

Exklusives Wohnen in Werne - komfortabel, modern und zeitlos!

Dieses Baugrundstück bietet ideale Voraussetzungen für Kapitalanleger, Bauträger oder Investoren. Die Bauvoranfrage für ein Mehrfamilienhaus mit sechs Wohneinheiten wurde bereits von der Stadt Werne positiv beschieden - ein wichtiger Schritt, der Ihnen bereits abgenommen wurde. Nutzen Sie diese Gelegenheit und realisieren Sie Ihr Bauprojekt in einer attraktiven Wohnlage.

Die geplanten Wohnungen bieten Wohnflächen von ca. 75 bis 99 m² und eignen sich ideal für unterschiedliche Lebenssituationen - von Singles und Paaren bis hin zu kleinen Familien.

Vorbescheid §77 BauO NRW 2018 mit AZ 761724 Stadt Werne vom 04.04.2025 liegt vor. Die Planungsrechtliche Bebauungsgenehmigung Ist somit erteilt

Merkmale

  • Bezug: nach Absprache
  • 1.003 m² Grundstück
  • voll erschlossen

Grundrisse

Grundrisse
1 / 1

Realisiere Dein Projekt

Bausubstanz und Energie

Der Anbieter hat keine Informationen zu Energieverbrauch oder Zustand der Immobilie bereit gestellt.
MediumRectangleTop

Preisdetails

Kaufpreis
350047 €
349 €/m²
Provision für Käufer
provisionsfrei; keine Provision, courtagefrei
Geschätzte Gesamtkosten
350.047 €1
Kaufpreis
350.047 €
1Der angezeigte Wert ist eine automatisch berechnete Schätzung von immowelt.

Lage

address-icon
Freiherr-vom-Stein-StraßeWerne (59368)
Werne ist eine charmante Kleinstadt im Münsterland, Nordrhein-Westfalen, mit rund 30.000 Einwohnern. Die Stadt verbindet historische Altstadt-Atmosphäre mit moderner Infrastruktur und einer guten Anbindung an Dortmund und Münster. Zudem bietet Werne ein vielfältiges Freizeit- und Kulturangebot, darunter das beliebte Solebad
Infrastruktur (im Umkreis von 5 km):
Apotheke, Lebensmittel-Discount, Allgemeinmediziner, Kindergarten, Grundschule, Hauptschule, Realschule, Gymnasium, Gesamtschule, Öffentliche Verkehrsmittel

Weitere Informationen

Sonstiges https://alphagruppe.net/impressumdatenschutz/

Makleranfragen nicht erwünscht. Nach § 7 UWG sind unaufgeforderte Kontaktaufnahmen durch Makler ohne ausdrückliche Einwilligung des Empfängers verboten!

ohne-makler (OM) ist weder Anbieter noch Vermittler der Immobilie. OM betreibt eine Plattform für Immobilieneigentümer, die unter anderem die gleichzeitige Veröffentlichung einzelner Inserate auf mehreren Immobilienportalen ermöglicht. Die Inhalte dieser Inserate werden ausschließlich von Dritten verantwortet. Für die Richtigkeit, Vollständigkeit oder Rechtmäßigkeit der Angaben übernimmt OM keine Haftung. Hinweise auf mögliche Rechtsverstöße können jederzeit gemeldet werden und werden nach Prüfung umgehend bearbeitet. Stichworte Bundesland: Nordrhein-Westfalen

Weitere Services

Lust auf eine Besichtigung?
Eine Frage zur Immobilie?
Nachricht hinzufügen
Mit der Nutzung der oben angegebenen Telefonnummer oder durch Klicken auf „Kontaktieren“ akzeptierst Du die Allgemeinen Nutzungsbedingungen, denen Du jederzeit widersprechen kannst. Weitere Informationen zum Datenschutz

Über den Anbieter

Humboldtstr. 25 A, 21509 Glinde
partner badge
Partnerschaft
Privat von W. SchellenbergDein Kontakt
Keine Telefonnummer hinterlegt
Keine Telefonnummer hinterlegt

Weitere Unterlagen

Online-ID: 2nc5b5g
Referenznummer: 427772
ohne-makler.net - Immobilien selbst vermarkten
ohne-makler.net - Immobilien selbst vermarkten
Nachricht hinzufügen
Mit der Nutzung der oben angegebenen Telefonnummer oder durch Klicken auf „Kontaktieren“ akzeptierst Du die Allgemeinen Nutzungsbedingungen, denen Du jederzeit widersprechen kannst. Weitere Informationen zum Datenschutz
MediumRectangleTop
MediumRectangleBottom
MediumRectangleTop
Wie zufrieden bist du mit dieser Seite (nicht mit der Immobilie selbst)?