Version: 8.25.1Navigation überspringen
645.000 €
8 Zimmer  •  205 m²  •  410 m² Grundstück
Immowelt logo

Mehrfamilienhaus zum Kauf • provisionsfrei
645000 €
3.146 €/m²
8 Zimmer  •  205 m²  •  410 m² Grundstück

?? "Doppelt hält besser - Ihr Traum vom Zweifamilienhaus!"

Wie Sie die Grundstückspreise senken? Bauen Sie ein Doppelhaus als Generationenhaus und laden Sie eine Familie ein, Nachbar zu werden. Dieses Generationenhaus ist die perfekte Möglichkeit, in Gemeinschaft das eigene Haus zu realisieren. Auf gute Nachbarschaft!

Verschiedene Grundrissvarianten und Architekturelemente sind möglich. Sprechen Sie bitte mit Ihrem Fachberater.

Freuen Sie sich auf die Entwicklung Ihres individuellen Danhauses, unterstützt von unserem imoFlex Haus-System und unseren Design- und Ausstattungspaketen, die zahlreiche kreative Anregungen bieten. Gemeinsam gestalten wir von Anfang bis Ende den idealen Weg zur Verwirklichung Ihres Traumhauses.
Ich zeige Ihnen wie Sie günstig zu Ihrem Traumhaus kommen und freue mich darauf mit Ihnen zusammen ihr Traumhaus zu realisieren!

Ihr Verkaufsberater Paulo Granja
+49 178 71 28 112

Merkmale

  • 410 m² Grundstück
  • Gäste-WC
Individuell geplant und technik-fertig - Ihr Danhaus nach Maß!

Jedes unserer Fertighäuser wird individuell auf Ihr Grundstück, den Bebauungsplan und Ihre Wünsche abgestimmt. Die beliebte Danhaus-Ausbaustufe technik-fertig ist dabei die ideale Basis - mit vielen Extras inklusive:

-Massive Klinkerfassade im Standard (alternativ Putz- oder Holzfassade)
-Heizungstechnik frei wählbar, z.?B. mit Fußbodenheizung + Kühlfunktion
-Lüftungsanlage mit Wärmerückgewinnung fertig installiert
-Elektroinstallation komplett fertiggestellt
-Hochwertige Marken-Ausstattung
-3-fach-Wärmeschutzverglasung und Rollläden (auf Wunsch elektrisch)
-Estrich mit Wärmedämmung
-Sanitär-Rohinstallation vorbereitet (ohne Objekte)

Natürlich kann die Ausbaustufe individuell angepasst werden - je nach geplanter Eigenleistung.
Bauen mit Danhaus heißt: Qualität, Effizienz und nordisches Design vereint!

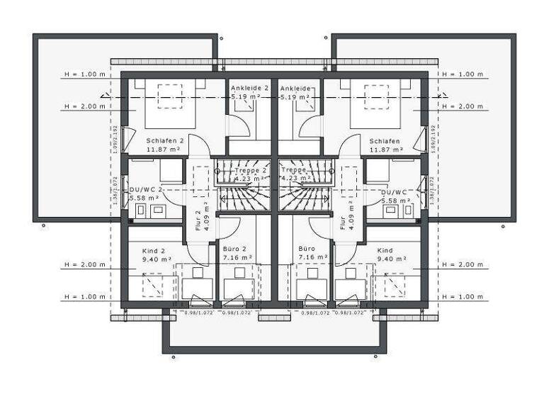
Grundrisse

Grundrisse
1 / 2

Realisiere Dein Projekt

Bausubstanz und Energie

Möchtest du Details zum Energieverbrauch?info_energy_calculation-icon
  • Zustand der ImmobilieNeubau, Projektiert
  • HeizungsartFußbodenheizung
Immowelt logo

Preisdetails

Kaufpreis
645000 €
3.146,34 €/m²
Provision für Käufer
provisionsfrei
Geschätzte Gesamtkosten
699.825 €1
Kaufpreis
645.000 €
Notarkosten (1,5%)
9.675 €
Grunderwerbsteuer (6,5%)
41.925 €
Grundbucheintrag (0,5%)
3.225 €
1Der angezeigte Wert ist eine automatisch berechnete Schätzung von immowelt.
2Bei den Angaben handelt es sich um ortsübliche Werte. Individuelle Kosten können abweichen.

Lage

address-icon
Weilerswist (53919)
Der Anbieter hat die genaue Adresse nicht freigegeben
Entdecken Sie die ideale Kombination aus Lebensqualität und Komfort in Ihrem neuen Danhaus. Das Grundstück befindet sich in toller Lage, das sowohl die Ruhe des Grünen als auch die Nähe zur städtischen Infrastruktur bietet. Genießen Sie die Vorzüge einer friedlichen, naturverbundenen Umgebung, die perfekt für Familien oder diejenigen ist, die sich nach einer Oase der Ruhe im Alltag sehnen.

Weitere Informationen

Sonstiges DIE ZUKUNFT - HOLZ-HYBRID

Die Holz-Hybrid-Bauweise von DANHAUS vereint das Beste aus zwei Welten. Die Eigenschaften von Stein und Holz verleihen die notwenige statische Stabilität, Holz schafft durch seine natürlichen Fähigkeiten eine angenehme Haptik und Wärme. Mit dem neuen Holz-Hybrid-System von DANHAUS lassen sich unsere Häuser kosten- und terminsicher realisieren. DANHAUS denkt seine Ursprünge aus dem Holzbau weiter. Passend für unsere Zeit: CO2-arm, nachhaltig, seriell, digital, planbar. Entdecken Sie jetzt die Zukunft des Bauens.
Vereinbaren Sie noch heute ein kostenloses Beratungsgespräch und lassen Sie sich von uns inspirieren!

Ich zeige Ihnen wie Sie günstig zu Ihrem Traumhaus kommen und freue mich darauf mit Ihnen zusammen ihr Traumhaus zu realisieren!

Ihr Verkaufsberater Paulo Granja
+49 178 71 28 112

Anbauteile, Carport, Garage und Keller können Extras sein, die als Sonderausstattung angeboten werden. Abbildungen, Grundrisse und Flächenangaben sind beispielhaft und können Extras zeigen. Flächenangaben nach DIN 277. Stichworte Anzahl der Schlafzimmer: 4, Anzahl der Badezimmer: 2, Anzahl der separaten WCs: 1

Weitere Services

Lust auf eine Besichtigung?
Eine Frage zur Immobilie?
Nachricht hinzufügen
Mit der Nutzung der oben angegebenen Telefonnummer oder durch Klicken auf „Kontaktieren“ akzeptierst Du die Allgemeinen Nutzungsbedingungen, denen Du jederzeit widersprechen kannst. Weitere Informationen zum Datenschutz

Über den Anbieter

Porschestraße 10, 41564 Kaarst
partner badge
Partnerschaft
Paulo GranjaDein Kontakt
Online-ID: 26W4GHPFSWJ9
Referenznummer: DH-US-52702-Weilerswist
Danhaus - Paulo Granja Handelsvertretung für die Danhaus Deutschland GmbH
Danhaus - Paulo Granja Handelsvertretung für die Danhaus Deutschland GmbH
Nachricht hinzufügen
Mit der Nutzung der oben angegebenen Telefonnummer oder durch Klicken auf „Kontaktieren“ akzeptierst Du die Allgemeinen Nutzungsbedingungen, denen Du jederzeit widersprechen kannst. Weitere Informationen zum Datenschutz
Wie zufrieden bist du mit dieser Seite (nicht mit der Immobilie selbst)?