

Praxisfläche zur Miete1.730 €178 m² Bürofläche
1.730 €
178 m² Bürofläche
Ärztehaus! Attraktive Praxisfläche in zentraler Innenstadtlage
Merkmale
- Bezug: 1.1.2026
- 2. Geschoss
- Personenaufzug
- Stellplatz
- Rollstuhlgerecht
- Fenster: Kunststoff
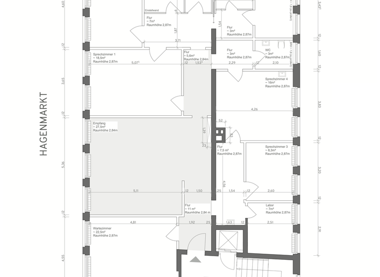
Grundrisse
Grundrisse
1 / 1
Realisiere Dein Projekt
Bausubstanz und Energie
Der Anbieter hat keine Informationen zum Energieverbrauch bereit gestellt.
- HeizungsartZentralheizung
- EnergieträgerGas
Mietkosten
Warmmiete
2.400 €
Nettomiete
1.730 €
Nebenkosten
490 €
Heizkosten
180 €
Zusätzliche Kosten
Miete pro Stellplatz
75 €
Provision fĂĽr Mieter
Die Provision für die Mieter:in beträgt 3,57 Netto-Monatsmieten inkl. MwSt. und ist nach Vertragsabschluss fällig.
Kaution
3 Kaltmieten
Lage

Innenstadt, Braunschweig (38100)
Der Anbieter hat die genaue Adresse nicht freigegeben
Weitere Informationen
Weitere Services
Lust auf eine Besichtigung?
Eine Frage zur Immobilie?
Ăśber den Anbieter
Christian Zimmermann ImmobilienMaklerbĂĽro
Rehwinkel 6, 30629 Hannover
10 Jahre Partnerschaft + Diamond Partner
Herr Christian ZimmermannDein Kontakt
Online-ID: 2kn4k5d
Referenznummer: P1802

Christian Zimmermann Immobilien
Wie zufrieden bist du mit dieser Seite (nicht mit der Immobilie selbst)?

