Das Anwesen "Sítio da Banana-Roxa" befindet sich im ruhigen Ort Araçatiba auf Ilha Grande, eingebettet in den atlantischen Regenwald, bietet die Immobilie einen harmonischen Rückzugsort mit Meerblick, frischer Luft und üppiger Natur.
Das rund 5.300 m² große Grundstück liegt auf sanft gestuftem Gelände. Insgesamt sind etwa 337m² bebaut, verteilt auf ein Haupthaus mit ca. 175m² Wohnfläche, ein separates Chalet mit ca. 76m² Wohnfläche dazu eine Nutzfläche die sich auf ca. 86m² ausbreitet.
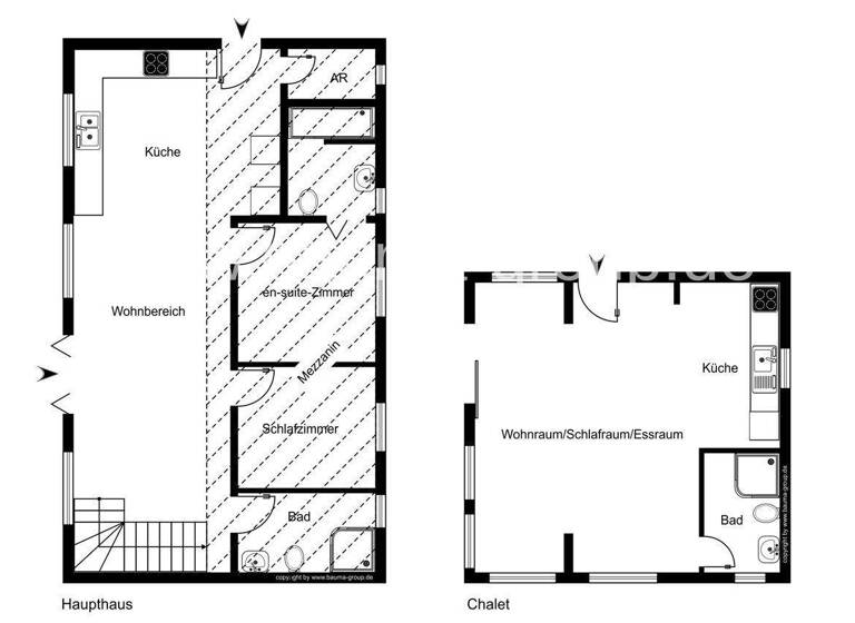
Das Haupthaus wurde aus hochwertigen Edelharthölzern errichtet und verfügt über zwei Schlafzimmer, darunter ein en-suite-Zimmer, ein Duschbad, eine offene Küche sowie einen lichtdurchfluteten Wohnbereich. Zusätzlich bietet ein rund 37 m² großes Mezzanin weiteren Raum.
Eine großzügige Veranda mit Holz- und Lehmofen öffnet sich zu einem weitläufigen Deck mit Blick auf das Meer und die umliegenden Baumkronen.
Das Haus ist vollständig möbliert und mit allen wichtigen Geräten ausgestattet.
Das Chalet wurde neu erbaut und bietet ein Wohn-Schlaf-Essraum, eine kleine Küche, ein Duschbad und eine Holzterrasse mit Meerblick - ideal für Gäste oder zur Ferienvermietung.
Zum Anwesen gehören außerdem ein kleines Generatorhaus sowie ein Wasseranschluss über das städtische Netz und eine eigene Quelle mit insgesamt 3 x 5.000 Litern Speicherkapazität.
Das "Sítio da Banana-Roxa" ist kein Luxusobjekt, sondern ein authentisches Stück Insel - liebevoll gepflegt, ruhig gelegen und sofort bewohnbar. Ein Ort, der Einfachheit, Naturverbundenheit und Gelassenheit vereint.
Merkmale
Bezug: Sofort
5.300 m² Grundstück
als Ferienimmobilie geeignet
Terrasse
Haupthaus mit ca. 175m² Wohnfläche: - Großes Wohnbereich - 2 Schlafzimmer, 2 Badezimmer - Offene Küche - Mezzanin/Zwischengeschoss - Hochwertige Bauweise mit Edelhölzern. - Fenster und Türen aus Angelim-Holz, mit Insektenschutznetzen. - Große, überdachte Veranda mit Spüle und Arbeitsfläche, Holzofen sowie traditionellem Lehmofen - Großes Deck mit Blick auf das Meer und die umliegenden Bäume
Chalet mit ca. 76m² Wohnfläche: - Wohnschlafraum - Offene Küche - Duschbad - Deck mit Meerblick
Grundrisse
Grundrisse
1 / 1
Realisiere Dein Projekt
Bausubstanz und Energie
Möchtest du Details zum Energieverbrauch?
Baujahr2010
Zustand der Immobilieneuwertig
Preisdetails
Kaufpreis
520000 €520.000 €
2.071,71 €/m²
Provision für Käufer
provisionsfrei
Lage
Praia Grande de Araçatiba - Angra dos Reis (23738)
Die Karte ist nicht verfügbar.
Das Landgrundstück befindet sich im Ort Araçatiba auf der Insel Ilha Grande.
Die Insel "Ilha Grande" an der Küste von Rio de Janeiro, Brasilien, ist Teil eines Welterbe-Gebiets der UNESCO. Es handelt sich um ein gemischtes Welterbe ("mixed site") - d.h. das Gebiet besitzt sowohl kultur- als auch naturbezogene herausragende Werte.
Die Fläche gehört zum Küsten- und Regenwaldbereich der Atlantischen Küstenregion Brasiliens ("Mata Atlântica") und weist eine hohe Biodiversität auf.
Die Insel "Ilha Grande" zeichnet sich durch ihre intakte Natur, traumhaften Strände und den Verzicht auf motorisierten Verkehr aus - Autos sind auf der gesamten Insel nicht erlaubt, was zu einer besonders ruhigen und naturnahen Atmosphäre beiträgt.
Das Grundstück liegt an der Hauptwanderroute der Insel, rund 10 Gehminuten von der "Praia da Cachoeira" und 15 Minuten vom "Praia Grande de Araçatiba" entfernt. Die Umgebung ist ruhig, grün und unmittelbar vom atlantischen Regenwald geprägt - ideal für Projekte mit Fokus auf Nachhaltigkeit, Tourismus oder private Erholung.
Weitere Informationen
Sonstiges
Nutzflächen mit insgesamt ca. 86m²: - Waschküche - Werkstatt - Generatorhaus
Das Gelände ist vielfältig bepflanzt: - Obstbäume wie Zimapfel, Jabuticaba, Acerola, Granatapfel, Limette, Kokos, Brotfrucht, Mango und mehrere Bananensorten. Eine Gemüsefläche mit Maniok, Taro und saisonalen Pflanzen ergänzt die üppige Vegetation. - Zierbepflanzung: Dutzende Setzlinge von Ipê- und Eisenholz-Bäumen.
Infrastruktur: - Wasserversorgung über städtisches Netz (SAAE) und zusätzliche Quelle - Drei Wassertanks mit je 5.000 Litern (15.000 L Gesamtvolumen) werden aus der Naturquelle befüllt.
Besonderheiten: - Viel Privatsphäre & Ruhe - Meer- und Waldblick von beiden Gebäuden - Ideal für nachhaltiges Leben, Öko-Tourismus oder Rückzugsort
Ein vollständiges Exposé übersenden wir Ihnen auf Anfrage.
Die in diesem Angebot genannten Daten stammen vom Eigentümer, insofern können wir für die Richtigkeit der Angaben keine Haftung und/oder Gewährleistung übernehmen. Irrtum und Zwischenverkauf vorbehalten.
Stichworte
Nutzfläche: 86,00 m², Anzahl der Schlafzimmer: 3, Anzahl der Badezimmer: 3, Anzahl Terrassen: 2
Sonstiges/Wohnen: Einliegerwohnung