Gut erhaltenes Einfamilienhaus in Ötvöskónyi, Süd-Transdanubien zum Verkauf
In der Nähe von Nagyatád befindet sich dieses gut erhaltene Einfamilienhaus in 7511 Ötvöskónyi. Das Wohngebäude wurde im Jahr 1984 in Ziegelbauweise mit teilweisem Untergeschoss, Erdgeschoss und Dachgeschoss errichtet.
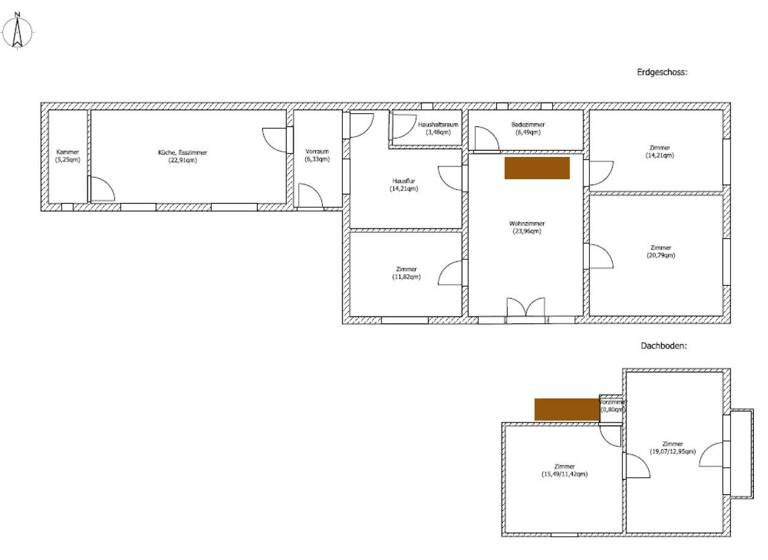
Der Wohnbereich im Erdgeschoss umfasst 3 Zimmer (20,79 m2, 14,21 m2, 11,82 m2) und ein Wohnzimmer mit 23,96 m2, während sich im Dachgeschoss 2 Zimmer mit 15,49 m2, 19,07 m2) befinden. Das Erdgeschoss verfügt über eine geräumige Küche mit Essbereich (22,91 m2) und Abstellkammer (5,25 m2), ein Badezimmer (6,49 m2), einen Haushaltsraum (3,48 m2), einen Vorraum (6,33 m2) und der Hausflur mit 14,21 m2.
Vor etwa 10 Jahren wurde das Gebäude modernisiert und erhielt eine Fassadendämmung, eine Badsanierung und wurde ausgemalt. Geheizt wird mit einem Mischbrennstoffkessel.
Hinter dem Wohngebäude befinden sich zusätzliche Gebäude, die sich zur Lagerung und Tierhaltung eignen. Eine separate Garage befindet sich auf dem Grundstück. Das Anwesen verfügt über ein geräumiges und gepflegtes Grundstück mit einer Größe von 1103 m2.
Die Immobilie ist an das öffentliche Versorgungsnetz der Gemeinde angeschlossen.
Ötvöskónyi ist ein gut organisiertes Dorf mit 924 Einwohnern und liegt 6 Kilometer nördlich von Nagyatád, entlang der Straße 68, 55 km vom Balaton und 42 km von der Autobahn M7 entfernt.
Der nördliche Teil des Dorfzentrums zweigt von der Straße 68 auf die Straße 6622 in Richtung Beleg und Kutas ab. Die Bahnstrecke Dombóvár-Gyékényes verläuft ebenfalls durch das Gebiet, mit einer Haltestelle am Bahnhof Ötvöskónyi.
Das Dorf verfügt über eine gut erreichbare Infrastruktur, und weitere Versorgungen können in der nahegelegenen Stadt Nagyatád in Anspruch genommen werden.
Der derzeitige Verkaufspreis beträgt Euro 110 000 + 4% Provision + Anwaltskosten + staatliche Steuern.