Version: 8.25.1Navigation überspringen
IMMOBERLIN Inhaber Carsten D. Topel
398.000 €
2 Zimmer  •  78 m²

Wohnung zum Kauf
398000 €
5.103 €/m²
2 Zimmer  •  78 m²

IMMOBERLIN.DE - Herrliche Aussichten! Dachgeschosswohnung mit privater Sonnenterrasse & Pkw-Stellplatz

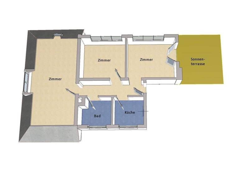
Diese 1997 ausgebaute Dachgeschosswohnung erfreut mit einer intensiven Tageshelligkeit durch große Fenster und die Glastür zur nicht einsehbaren, ca. 16 m2 großen Sonnenterrasse mit Edelstahlgeländer und Granitabdeckungen. Solch edlen Abdeckungen gibt es auch in dem zur Terrasse führenden Wohn- und Essbereich mit kubischen Raumdimensionen ohne Dachschrägen. Dieses sehr angenehme Refugium ist das Resultat einer Zimmeröffnung. Denkbar ist es, wieder zwei vom Flur zugängliche Zimmer herzustellen. Zur anderen Seite des Flures liegt praktisch angeordnet die hochwertige Einbauküche von Poggenpohl mit modernen Geräten inklusive Cerankochfeld. Daneben befindet sich das 2022 kernsanierte und vollständig neu ausgestattete Bad, das u.a. eine bodengleiche Glasduschkabine, einen Waschtisch mit indirekter LED-Beleuchtung und sämtliche Sanitärobjekte von Villeroy & Boch enthält.
Das Schlafzimmer hat eine stilvolle, bodentief und bis zum Dachfirst verglaste Fenstergaube, ein Dachflächenfenster und eine Fußbodenheizung. Beachtenswert sind die effektvollen Halogen-Spots im Deckenbereich der Gaube und die maßgefertigten Einbauschränke.
Zu dieser Wohnung gehört ein separater, ca. 12 m2 großer Arbeitsraum auf der gleichen Etage, der zurzeit als Hauswirtschaftsraum verwendet wird, u.a. mit Waschmaschine und Trockner, Tiefkühlschränke etc.. Der über der Wohnung befindliche Dachraum wird als zusätzliche Abstellfläche genutzt. Die Wärmeversorgung dieser sehr gepflegten Wohnung obliegt einer effizienten Gasbrennwertheizung von 2015. Zur Verfügung stehen u.a. ein Fahrradraum und ein Pkw-Stellplatz. Der Eingangsbereich und die Terrasse haben sicherheitsrelevante Einrichtungen. Eine naturverbundene Lage, ein behagliches Ambiente mit schönen Akzenten, eine anregende Lichtdurchflutung und dazu eine großartige Terrasse – besser können die Wohlfühlkonstanten nicht sein.

Merkmale

  • Dachgeschoss
  • Einbauküche
  • Außen-Stellplatz
  • Terrasse

Grundrisse

Grundrisse
1 / 1

Realisiere Dein Projekt

Bausubstanz und Energie

Energieausweis

E
MediumRectangleTop

Preisdetails

Kaufpreis
398000 €
5.102,56 €/m²
Provision für Käufer
Provision: 3,57 % inklusive der gesetzlichen Mehrwertsteuer
Geschätzte Gesamtkosten
444.049 €1
Kaufpreis
398.000 €
Notarkosten (1,5%)
5.970 €
Grunderwerbsteuer (6%)
23.880 €
Provision für Käufer (3,57%)
14.209 €
Grundbucheintrag (0,5%)
1.990 €
1Der angezeigte Wert ist eine automatisch berechnete Schätzung von immowelt.
2Bei den Angaben handelt es sich um ortsübliche Werte. Individuelle Kosten können abweichen.

Lage

address-icon
LichterfeldeBerlin (12209)
Der Anbieter hat die genaue Adresse nicht freigegeben

Weitere Services

Lust auf eine Besichtigung?
Eine Frage zur Immobilie?
Nachricht hinzufügen
Mit der Nutzung der oben angegebenen Telefonnummer oder durch Klicken auf „Kontaktieren“ akzeptierst Du die Allgemeinen Nutzungsbedingungen, denen Du jederzeit widersprechen kannst. Weitere Informationen zum Datenschutz

Über den Anbieter

Wildpfad 7, 14193 Berlin
partner badge
6 Jahre Partnerschaft
Das Team von IMMOBERLIN.DE
Das Team von IMMOBERLIN.DEDein Kontakt
Online-ID: 26JNN6TPFSAL
Referenznummer: 251074 gh
IMMOBERLIN Inhaber Carsten D. Topel
title
IMMOBERLIN Inhaber Carsten D. Topel
Nachricht hinzufügen
Mit der Nutzung der oben angegebenen Telefonnummer oder durch Klicken auf „Kontaktieren“ akzeptierst Du die Allgemeinen Nutzungsbedingungen, denen Du jederzeit widersprechen kannst. Weitere Informationen zum Datenschutz
MediumRectangleTop
MediumRectangleBottom
MediumRectangleTop
Wie zufrieden bist du mit dieser Seite (nicht mit der Immobilie selbst)?