Version: 8.25.1Navigation überspringen
team19 Immobilien GmbH
575 €
2 Zimmer  •  43 m²  •  2. Geschoss

Wohnung zur Miete
575 €
2 Zimmer  •  43 m²  •  2. Geschoss

Ihr Rückzugsort in der Stadt - Ungergasse 39

AKTION

1 MONAT MIETZINSFREI

*gültig bei Mietanbotslegung bis zum 31.03.2026

*die Betriebskosten sind auch während des mietzinsfreien Monats zu entrichten

Ungergasse 39 - Moderne Wohnungen im Herzen von Graz-Gries

Willkommen im lebendigen und zugleich angenehm ruhigen Bezirk Gries! In der Ungergasse 39 erwartet Sie ein attraktiver Wohnbau mit hochwertig ausgestatteten 2- bis 3-Zimmer-Wohnungen. Die sonnigen Einheiten punkten mit durchdachten Grundrissen, großzügigen Außenflächen und bester Anbindung an das öffentliche Verkehrsnetz.

 

Highlights:

* Provisionsfreie Vermietung
* Wohnbau in Massivbauweise mit moderner Architektur
* Fußbodenheizung mit Fernwärme - effizient & nachhaltig
* Großzügige Balkone und Freiflächen für erholsame Stunden im Freien
* Liftanlage bis zur Tiefgarage - barrierefrei und komfortabel
* Funktionale Grundrisse - ideal für Singles, Paare oder Familien
* Zentrale Lage mit idealer Infrastruktur & Öffi-Anbindung

 

 

Ausstattungsstandard

Bei der Bauausführung wurde größter Wert auf Qualität und Wohnkomfort gelegt:

* Voll ausgestattete Einbauküche inklusive Geschirrspüler
* Rutschfeste Feinsteinzeugfliesen in Bad & WC
* Hochwertiger Parkettboden in allen Wohnräumen
* Hochdämmende Vollwärmeschutzfassade für niedrige Heizkosten
* Telekom- und UPC-Anschluss vorbereitet
*  Gegensprechanlage in allen Einheiten
* Eigenes Kellerabteil im Mietpreis inkludiert
* Fahrrad- und Kinderwagenraum zur gemeinsamen Nutzung

AKTION

1 MONAT MIETZINSFREI

*gültig bei Mietanbotslegung bis zum 31.03.2026

*die Betriebskosten sind auch während des mietzinsfreien Monats zu entrichten

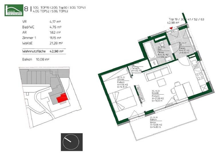
Wohnung Top 30

Die 2-Zimmer-Wohnung mit knapp 43 m² Wohnfläche zzgl. ca. 10,08 m² Balkon befindet sich im 2. Obergeschoss und gliedert sich in folgende Raumaufteilung:

* Eingangsbereich / Vorraum
* Badezimmer mit WC und Badewanne
* Wohn-/Essbereich/Küche - mit Zugang zum Balkon
* Schlafzimmer - mit Zugang zum Balkon
* Abstellraum
* Balkon

 

Wir weisen höflichst darauf hin, dass es sich bei den Fotos anbei um Musterfotos handelt.

 

Einige Bilder des Inserats wurden zum Zweck der besseren Visualisierung digital mit KI möbliert. Die Wohnung wird unmöbliert übergeben.

 

Mietkosten:

Der Mietpreis für die Wohnung beläuft sich auf 749,00 Euro (inkl. BK und USt.).

 

Nebenkosten:

Kaution: 3 Monatsmieten

Mietvertragserrichtungsgebühr: 300,00 € zzgl. 20% USt.

Die Vermietung erfolgt PROVISIONSFREI für den Mieter!

 

Tiefgaragenstellplatz:

Der Mietpreis für den Stellplatz beläuft sich auf 75,00 Euro (inkl. BK und USt.).

Kaution: 3 Monatsmieten

 

 

Infrastruktur

Die Lage in der Ungergasse verbindet urbanes Leben mit hoher Lebensqualität. In unmittelbarer Umgebung befinden sich:

* Ärzte, Apotheken, Klinik & Krankenhaus
* Kindergärten, Schulen und Universitäten
* Supermärkte, Bäckereien & Einkaufszentren
* Zahlreiche Freizeit- und Naherholungsmöglichkeiten

 

Öffentliche Anbindung:

Mit der Straßenbahn- oder Buslinie erreichen Sie in wenigen Minuten den Grazer Hauptbahnhof sowie weitere zentrale Knotenpunkte der Stadt. Ideal für alle, die flexibel und umweltfreundlich unterwegs sein wollen.

 

Energieausweis:

Der Heizwärmebedarf ca. 24,0 kWh/m2a entspricht der Klasse A

 

Ihr neues Zuhause wartet auf Sie!

Sichern Sie sich jetzt Ihren modernen Wohntraum in Graz. Gerne stehen wir Ihnen für weitere Informationen oder eine persönliche Besichtigung zur Verfügung.

Ihr Ansprechpartner:
Herr Stephan Schlösser
Telefon: +43676 9406774
E-Mail: schloesser@teamneunzehn.at

Wir freuen uns, Ihnen diese besondere Immobilie näher vorstellen zu dürfen!

Wir weisen darauf hin, dass zwischen dem Vermittler und dem zu vermittelnden Dritten ein familiäres oder wirtschaftliches Naheverhältnis besteht.

Der Immobilienmakler erklärt, dass er - entgegen dem in der Immobilienwirtschaft üblichen Geschäftsgebrauch des Doppelmaklers - einseitig nur für den Vermieter tätig ist.

"Leben braucht Raum" * T19-RE Real Estate GmbH & Co KG * www.teamneunzehn.at [https://www.teamneunzehn.at]

Doppelmakler

Wir werden als Immobilienmakler kraft bestehenden Geschäftsgebrauchs als Doppelmakler tätig und haben sohin beide Seiten des Vertrages (Verkäufer-Käufer, Vermieter-Mieter) zu unterstützen.

Wirtschaftliches Naheverhältnis

Es wird bekannt gegeben, dass folgendes wirtschaftliches Naheverhältnis zwischen der teamneunzehn-Gruppe und dem Verkäufer/der vermietenden Partei besteht: ständige und dauerhafte Beauftragung mit der Vermittlung des bestehenden Immobilienportfolios

Haftungserklärung zum Inserat

Irrtum und Änderungen vorbehalten! Sofern es sich bei Bildern um Visualisierungen handelt, können Abänderungen zur tatsächlichen Ausführung resultieren. Wir weisen ausdrücklich darauf hin, dass das auf Fotos oder Visualisierungen ersichtliche Mobiliar bzw. Inventar nicht Bestandteil des inserierten Preises ist.

 

 

Infrastruktur / Entfernungen

Gesundheit
Arzt <150m
Apotheke <375m
Klinik <600m
Krankenhaus <375m

Kinder & Schulen
Schule <525m
Kindergarten <150m
Universität <1.000m
Höhere Schule <1.150m

Nahversorgung
Supermarkt <175m
Bäckerei <150m
Einkaufszentrum <600m

Sonstige
Geldautomat <500m
Bank <500m
Post <750m
Polizei <675m

Verkehr
Bus <200m
Straßenbahn <475m
Autobahnanschluss <4.025m
Bahnhof <500m
Flughafen <8.925m

Angaben Entfernung Luftlinie / Quelle: OpenStreetMap

Merkmale

  • Bezug: ab sofort
  • 2. Geschoss
  • Barrierefrei
  • Personenaufzug
  • Badewanne
  • Bodenbelag: Fliesen, Parkett
  • Balkon

Grundrisse

Grundrisse
1 / 1

Virtueller Rundgang

3D tour

Realisiere Dein Projekt

Bausubstanz und Energie

Heizwärmebedarf (HWB)

A

Gesamtenergieeffizienz (fGEE)

A
  • Baujahr2019
  • Zustand der ImmobilieNeubau, neuwertig
  • HeizungsartFußbodenheizung
  • EnergieträgerFernwärme
MediumRectangleTop

Mietkosten

Gesamtmiete
749 €
Nettokaltmiete
15,84 €/m²
574,53 €
Betriebskosten
106,38 €
Kaution
3 Bruttomonatsmieten
Weitere Preisinformationen
Nettokaltmiete: 574,53 EUR

Lage

address-icon
Ungergasse 39GriesGraz (8020)
Grazer Hauptbahnhof, Citypark, Lendplatz, Steinfeldgasse, Eggenberger Gürtel

Weitere Informationen

Stichworte Tiefgarage vorhanden, Süd-West-Balkon/Terrasse, Fahrradraum, Nutzfläche: 53,06 m², Gesamtfläche: 53,06 m², Freifläche: 10,08 m², Anzahl der Badezimmer: 1, Anzahl der separaten WCs: 1, Anzahl Balkone: 1, Balkon-Terrassen-Fläche: 10,08 m², Bundesland: Steiermark, Wohnungsnr.: 30

Weitere Services

Lust auf eine Besichtigung?
Eine Frage zur Immobilie?
Mit einer persönlichen Nachricht hast du bessere Chancen auf eine Antwort.
Mit der Nutzung der oben angegebenen Telefonnummer oder durch Klicken auf „Kontaktieren“ akzeptierst Du die Allgemeinen Nutzungsbedingungen, denen Du jederzeit widersprechen kannst. Weitere Informationen zum Datenschutz

Über den Anbieter

Handelskai 94-96/21. Stock, 1200 BRIGITTENAU
partner badge
Partnerschaft
Herr Stephan SchlösserDein Kontakt
Online-ID: 26ER2EMKTLV7
Referenznummer: OBGC202603301449298221cfb9faba4
team19 Immobilien GmbH
team19 Immobilien GmbH
Mit einer persönlichen Nachricht hast du bessere Chancen auf eine Antwort.
Mit der Nutzung der oben angegebenen Telefonnummer oder durch Klicken auf „Kontaktieren“ akzeptierst Du die Allgemeinen Nutzungsbedingungen, denen Du jederzeit widersprechen kannst. Weitere Informationen zum Datenschutz
MediumRectangleTop
MediumRectangleBottom
MediumRectangleTop
Wie zufrieden bist du mit dieser Seite (nicht mit der Immobilie selbst)?