Version: 8.22.4Navigation ĂĽberspringen
1.018 €
3 Zimmer  â€˘  62,2 m²  â€˘  2. Geschoss
Immowelt logo

Wohnung zur Miete
1018.4 €
Nettokaltmiete
3 Zimmer  â€˘  62,2 m²  â€˘  2. Geschoss

Lichtdurchflutet & gut gelegen - 3-Zimmerwohnung mit TG-Platz

Charmante 3-Zimmerwohnung in Lustenau zu vermieten!

Zur Vermietung steht eine helle und gut geschnittene 3-Zimmerwohnung in ruhiger Wohnlage von Lustenau. Die Wohnung befindet sich in einem gepflegten Mehrparteienhaus und ĂĽberzeugt durch ihre durchdachte Raumaufteilung sowie eine gute Ausstattung.

Einkaufsmöglichkeiten, Schulen, Kindergärten sowie öffentliche Verkehrsmittel sind in wenigen Minuten erreichbar.

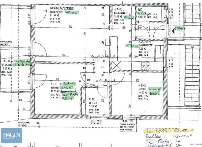
Die Wohnung mit ca. 62,17 m² befindet sich im 2. Obergeschoss und teilt sich wie folgt auf:
- Eingangsbereich
- Separate Toilette
- KĂĽche
- Wohn-/ Essbereich
- Schlafzimmer
- Kinderzimmer
- Badezimmer
- Balkon

Ein Tiefgaragenplatz und ein Kellerabteil sind der Wohnung zugehörig.

Miete: € 1.018,40 (Inkl. TG-Platz)
Betriebskosten: ca. € 281,60
Kaution: € 4.000,00
VerfĂĽgbar ab: 01.12.2025

Merkmale

  • Bezug: Ab 01.12.2025
  • 2. Geschoss
  • Tiefgarage

Grundrisse

Grundrisse
1 / 1

Realisiere Dein Projekt

Bausubstanz und Energie

Heizwärmebedarf (HWB)

C

Gesamtenergieeffizienz (fGEE)

C
  • Baujahr1991
  • HeizungsartFuĂźbodenheizung
  • EnergieträgerGas
Immowelt logo

Mietkosten

Gesamtmiete
1.300 €
Nettokaltmiete
16,38 €/m²
1.018,40 €
Betriebskosten
281,60 €
Kaution
4000 €
Weitere Preisinformationen
1 Tiefgaragenstellplatz
Nettokaltmiete: 1.018,40 EUR

Lage

address-icon
Wichnerstraße 28, Lustenau (6890)

Weitere Informationen

Sonstiges Haben wir Ihr Interesse geweckt?
Dann vereinbaren Sie doch einfach einen Termin mit uns - eine Besichtigung lohnt sich.

Das Realbüro Hagen-Team garantiert professionelle Beratung und völlige Unabhängigkeit.

Durch unsere ausgeprägte Kompetenz und langjährige Erfahrung versichern wir Ihnen eine problemlose und sorgenfreie Abwicklung bis zur Schlüsselübergabe und darüber hinaus.

Ihr Ansprechpartner:
Leonie Schönleitner (Tel. 05577/83 111-13) oder
leonie.schoeneitner@realbuerohagen.at

Sonstige Auslagen:
Vertragserrichtungskosten Stichworte Fahrradraum, Anzahl der Schlafzimmer: 2, Balkon-Terrassen-Fläche: 12,10 m², Bundesland: Vorarlberg

Weitere Services

Lust auf eine Besichtigung?
Eine Frage zur Immobilie?
Nachricht hinzufĂĽgen
Mit der Nutzung der oben angegebenen Telefonnummer oder durch Klicken auf „Kontaktieren“ akzeptierst Du die Allgemeinen Nutzungsbedingungen, denen Du jederzeit widersprechen kannst. Weitere Informationen zum Datenschutz

Ăśber den Anbieter

RealbĂĽro Hagen
RealbĂĽro HagenMaklerbĂĽro
Maria Theresien Str. 20, 6890 LUSTENAU
partner badge
10 Jahre Partnerschaft
Frau Leonie Schönleitner
Frau Leonie SchönleitnerDein Kontakt
Online-ID: 2lhwz5x
Referenznummer: 5947
RealbĂĽro Hagen
title
RealbĂĽro Hagen
Bewertung: 4,6 von 5 Sternen
Nachricht hinzufĂĽgen
Mit der Nutzung der oben angegebenen Telefonnummer oder durch Klicken auf „Kontaktieren“ akzeptierst Du die Allgemeinen Nutzungsbedingungen, denen Du jederzeit widersprechen kannst. Weitere Informationen zum Datenschutz
Wie zufrieden bist du mit dieser Seite (nicht mit der Immobilie selbst)?