Version: 8.22.4Navigation überspringen
3.070.000 €
Immowelt logo

Büro zum Kauf
3070000 €

Gewerbegrundstück direkt auf der Triester Straße | Büro mit Showroom

Die Gewerbeliegenschaft liegt direkt an der stark frequentierten Triester Straße, ist optimal angebunden und eignet sich daher ideal als Firmenniederlassung. Eine ideale Werbemöglichkeit sowie Sichtbarkeit ist durch die straßenseitige Lage gegeben.

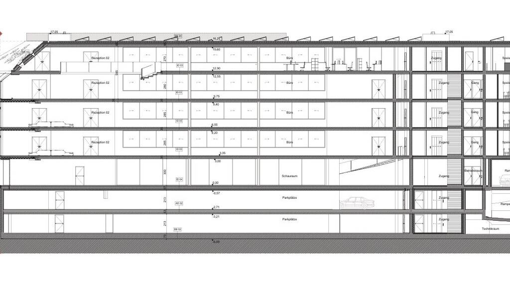
Diese multifunktionale Liegenschaft befindet sich auf einem Grundstück welches zurzeit lediglich als Parkplatz genutzt wird. Aufgrund der geltenden Bebauungsbestimmungen kann diese Betriebsliegenschaft sehr vielseitig genutzt werden. Laut einer vorhandenen Bebauungsstudie (das Projekt ist bereits baugenehmigt aber noch nicht rechtskräftig), kann jedenfalls von einer erzielbaren Nutzfläche, aufgeteilt auf vier Geschosse von insgesamt ca. 3.842,53 m² ausgegangen werden.
 

Zudem können bis zu 34 Tiefgaragenstellplätze sowie insgesamt ca. 183,39 m² im UG realisiert werden. 

 

Lage

Die Liegenschaft ist verkehrstechnisch ideal über die Triester Hauptstraße, mit der Badner Bahn sowie der Buslinie 64A erreichbar. In der Umgebung befinden sich bereits renommierte Gewerbe- und Industriebetriebe.

Der angeführte Kaufpreis gilt für das Gewerbegrundstück. Das visualisierte Gebäude dient der Veranschaulichung der baulichen Möglichkeiten unter Berücksichtigung des vorgegebenen Flächenwidmungs - und Bebauungsplans. 

 

Öffentliche Verkehrsanbindung

Badner Bahn

Bus: 64A

 

   

 

Infrastruktur / Entfernungen

Gesundheit
Arzt <500m
Apotheke <1.000m
Klinik <2.000m
Krankenhaus <2.000m

Kinder & Schulen
Schule <1.000m
Kindergarten <500m
Universität <5.000m
Höhere Schule <4.500m

Nahversorgung
Supermarkt <500m
Bäckerei <2.000m
Einkaufszentrum <1.000m

Sonstige
Geldautomat <1.000m
Bank <2.000m
Post <1.500m
Polizei <1.500m

Verkehr
Bus <500m
U-Bahn <1.000m
Straßenbahn <2.500m
Bahnhof <500m
Autobahnanschluss <1.000m

Angaben Entfernung Luftlinie / Quelle: OpenStreetMap

Grundrisse

Grundrisse
1 / 4

Realisiere Dein Projekt

Bausubstanz und Energie

Der Anbieter hat keine Informationen zu Energieverbrauch oder Zustand der Immobilie bereit gestellt.
Immowelt logo

Preisdetails

Kaufpreis
3070000 €
Provision für Käufer
3% des Kaufpreises zzgl. 20% USt.

Lage

address-icon
Wien (1230)
Triester Straße

Weitere Informationen

Stichworte Nutzfläche: 3.842,53 m², Grundstücksfläche: 1.295,00 m², Bundesland: Wien

Weitere Services

Lust auf eine Besichtigung?
Eine Frage zur Immobilie?
Nachricht hinzufügen
Mit der Nutzung der oben angegebenen Telefonnummer oder durch Klicken auf „Kontaktieren“ akzeptierst Du die Allgemeinen Nutzungsbedingungen, denen Du jederzeit widersprechen kannst. Weitere Informationen zum Datenschutz

Über den Anbieter

Marc-Aurel-Straße 6/6, 1010 WIEN
partner badge
Partnerschaft
Herr Harald AnderlikDein Kontakt
Online-ID: 2h6vp5j
Referenznummer: OBGC202501151517208395120077f22
EDEX Immobilien GmbH
EDEX Immobilien GmbH
Bewertung: 5 von 5 Sternen
Nachricht hinzufügen
Mit der Nutzung der oben angegebenen Telefonnummer oder durch Klicken auf „Kontaktieren“ akzeptierst Du die Allgemeinen Nutzungsbedingungen, denen Du jederzeit widersprechen kannst. Weitere Informationen zum Datenschutz
Wie zufrieden bist du mit dieser Seite (nicht mit der Immobilie selbst)?