Diese im Jahr 2018 errichtete Penthouse-Wohnung bietet auf rund 120 m² Wohnfläche ein modernes und anspruchsvolles Wohnkonzept in direkter Umgebung des Speckenbütteler Parks. Die Kombination aus großzügiger Raumgestaltung, hoher Ausstattungsqualität und exponierter Lage erfüllt gehobene Wohnansprüche.
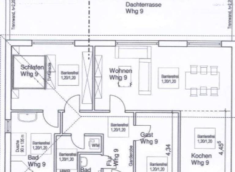
Die Wohnung befindet sich im obersten Geschoss des Gebäudes und ist komfortabel über einen Aufzug erreichbar. Der Grundriss verteilt sich auf drei gut geschnittene Räume. Zentraler Bestandteil ist der offen konzipierte Wohnbereich mit direktem Zugang zum großzügigen Balkon, der zusätzlichen Wohnkomfort im Außenbereich bietet.
Das Badezimmer ist hochwertig ausgestattet und verfügt über eine Dusche, eine Badewanne, zwei Waschbecken sowie moderne Armaturen. Ein separater Hauswirtschaftsraum mit Anschlüssen für Waschmaschine und Trockner ergänzt die funktionale Raumaufteilung sinnvoll.
Alle Wohnräume sind mit Laminatböden ausgestattet und mit einer durchgängigen Fußbodenheizung versehen. Große Fensterflächen sorgen für eine helle, freundliche Atmosphäre und ein angenehmes Raumgefühl. Ein Stellplatz oder eine Garage kann bei Bedarf zusätzlich angemietet werden.
Diese Penthouse-Wohnung richtet sich an Mieter mit gehobenem Anspruch, die Wert auf Großzügigkeit, Qualität und eine der attraktivsten Wohnlagen Bremerhavens legen.
Vereinbaren Sie gerne einen Besichtigungstermin.
Merkmale
Bezug: sofort
3. Geschoss
offene KĂĽche
Garage
Gäste-WC
Terrasse
Grundrisse
Grundrisse
1 / 1
Realisiere Dein Projekt
Bausubstanz und Energie
Der Anbieter hat keine Informationen zum Energieverbrauch bereit gestellt.
Die Wohnung liegt in einer besonders attraktiven Wohngegend von Bremerhaven in direkter Nachbarschaft zum Speckenbütteler Park. Diese weitläufige Grünanlage zählt zu den beliebtesten Erholungsräumen der Stadt und bietet vielfältige Möglichkeiten für Freizeitaktivitäten und entspannte Auszeiten im Grünen.
Das Umfeld zeichnet sich durch Ruhe, gepflegte Bebauung und eine etablierte Nachbarschaft aus. Gleichzeitig ist die Versorgungslage hervorragend. Geschäfte des täglichen Bedarfs, Bäckereien, medizinische Einrichtungen sowie Kindertagesstätten und Schulen sind bequem erreichbar.
Die Anbindung an den öffentlichen Nahverkehr ist sehr gut, Bushaltestellen befinden sich in kurzer Gehentfernung und gewährleisten eine schnelle Erreichbarkeit der Innenstadt sowie des Hauptbahnhofs. Für Berufspendler bietet die nahegelegene Autobahn A27 eine effiziente Verbindung in die umliegenden Regionen.
Der Standort verbindet naturnahes Wohnen mit urbaner Infrastruktur und gehört damit zu den gefragten Wohnlagen Bremerhavens mit entsprechend hoher Wohnqualität.