Version: 8.25.1Navigation überspringen
209.000 €
Immowelt logo

Büro zum Kauf
209000 €

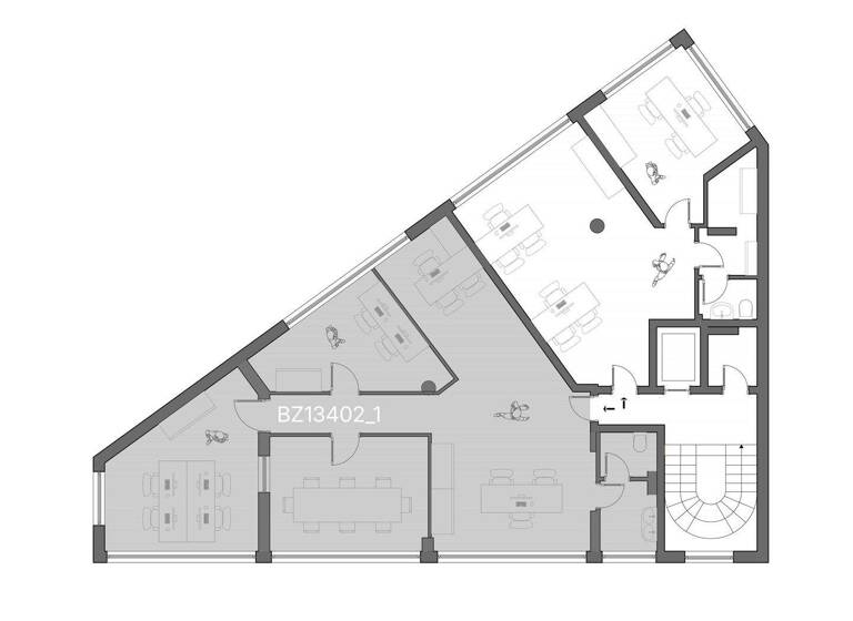
Modernes Büro im Bozner Stadtzentrum

Castellanum bietet ein helles Büro in strategischer Lage in Bozen zum Verkauf an, nur wenige Gehminuten vom Waltherplatz entfernt.
Die Immobilie befindet sich im vierten und letzten Stock eines Gebäudes mit Aufzug und ist Teil einer größeren Büroeinheit, die derzeit zusammengelegt ist. Die Lösung ist ideal für alle, die einen funktionalen Arbeitsraum suchen. Für Käufer mit Bedarf an größeren Flächen besteht zudem die Möglichkeit, das angrenzende Büro zu erwerben und eine einzige, großzügigere Einheit zu erhalten.
Das Büro wurde kürzlich renoviert, einschließlich der Anbringung von Sonnenschutzfolien sowie der Beseitigung architektonischer Barrieren. Die Räume sind den ganzen Tag über sehr hell und bieten einen offenen, angenehmen Ausblick.
Die Innenräume sind mit modularen Glaswänden ausgestattet, die eine einfache Anpassung an unterschiedliche betriebliche Anforderungen ermöglichen. Heizung und Kühlung sind autonom und erfolgen über Fan-Coils.
Eine flexible Lösung, geeignet sowohl für Freiberufler als auch für strukturierte Kanzleien oder Büros, in einer der gefragtesten Lagen der Stadt.

Merkmale

  • Bezug: sofort
  • 4. Geschoss
  • Personenaufzug
  • teilweise möbliert
  • voll klimatisiert

Grundrisse

Grundrisse
1 / 1

Realisiere Dein Projekt

Bausubstanz und Energie

Möchtest du Details zum Energieverbrauch?info_energy_calculation-icon
  • Baujahr1990
  • EnergieträgerGas
Immowelt logo

Preisdetails

Kaufpreis
209000 €
Provision für Käufer
Bitte beachte, das Angebot kann bei Vertragsabschluss die Zahlung einer Provision beinhalten. Weitere Informationen erhältst Du vom Anbieter.

Lage

address-icon
Via Macello 50Bozen (39100)

Weitere Informationen

Stichworte Verkaufsfläche: 75,00 m², Wohnungsnr.: 14

Weitere Services

Lust auf eine Besichtigung?
Eine Frage zur Immobilie?
Nachricht hinzufügen
Mit der Nutzung der oben angegebenen Telefonnummer oder durch Klicken auf „Kontaktieren“ akzeptierst Du die Allgemeinen Nutzungsbedingungen, denen Du jederzeit widersprechen kannst. Weitere Informationen zum Datenschutz

Über den Anbieter

Trattengasse 7, 37042 Brixen (BZ)
partner badge
6 Jahre Partnerschaft
Firma Castellanum Bozen - BolzanoDein Kontakt
Online-ID: 25NBEJFMMQHF
Referenznummer: BZ13402_2
Castellanum
Castellanum
Nachricht hinzufügen
Mit der Nutzung der oben angegebenen Telefonnummer oder durch Klicken auf „Kontaktieren“ akzeptierst Du die Allgemeinen Nutzungsbedingungen, denen Du jederzeit widersprechen kannst. Weitere Informationen zum Datenschutz
Wie zufrieden bist du mit dieser Seite (nicht mit der Immobilie selbst)?