Version: 8.24.0Navigation überspringen
ohne-makler.net - Immobilien selbst vermarkten
575 €
1,5 Zimmer  •  61 m²  •  EG  •  frei ab 15.05.2026

Wohnung zur Miete
575 €
1,5 Zimmer  •  61 m²  •  EG  •  frei ab 15.05.2026

Sanierte 1,5 Zimmer EG-Wohnung in Richtung Garten

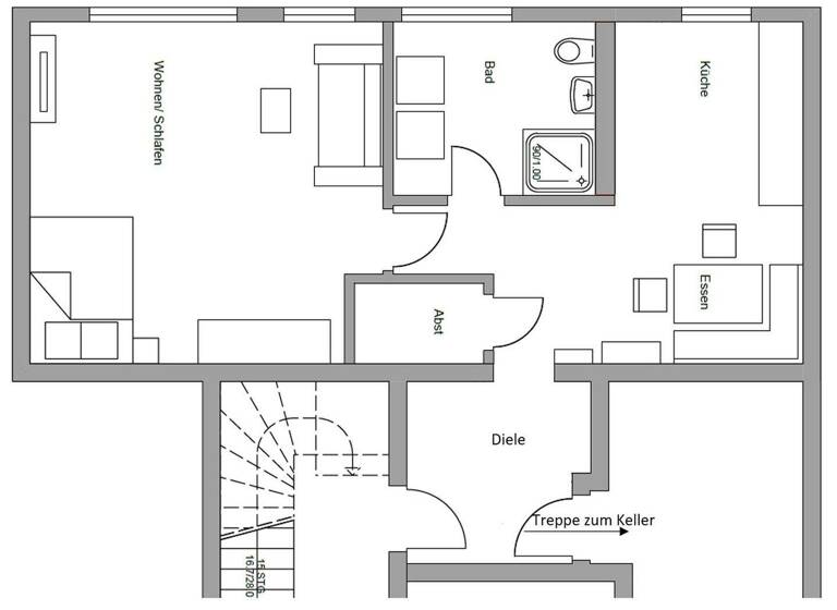
Diese helle 1,5 Zimmer Wohnung wurde 2025 komplett saniert und freut sich auf einen neuen Mieter. Die Diele bietet viel Platz für eine Garderobe und führt in den offen gestalteten Küchen- und Essbereich. Die Küche umfasst folgende Elektrogeräter: Geschirrspüler, Kühl- Gefrierkombi, Herd, Backofen. Das moderne Tageslichtbad ist großzügig gestaltet. Das Wohn-/Schlafzimmer ist durch die Fensterfront sehr hell und bietet mit ca. 22 m² viel Platz. Abgerundet wird die Wohnung durch einen kleinen Abstellraum, der auch den Waschmaschinenanschluss beherbergt.
Zur Wohnung gehört eine Terrasse / ein Freisitz im Garten, der aktuell noch nicht direkt von der Wohnung aus erreicht werden kann. Hierfür ist jedoch eine Balkontüre für eine weitere Gestaltung des Außenbereichs vorbereitet. Direkt von der Diele aus erreicht man den Keller, sowie die zur Wohnung gehörende Gasetagenheizung.
Zuzüglich zur angegeben Warmmiete muss der Mieter eigenverantwortlich und auf eigene Rechnung einen Vertrag für Gas, Strom und Internet abschließen.

Merkmale

  • frei ab 15.05.2026
  • Erdgeschoss
  • Einbauküche
  • Kelleranteil
  • Terrasse
  • Bodenbelag: Fliesen, Kunststoff
Terrasse, Keller, Einbauküche, Fliesen

Bemerkungen:
Bei der Sanierung wurden folgende Arbeiten ausgeführt:
- Elektrik neu
- Austausch aller Türen
- Austausch aller Fenster
- Entfernen aller Oberbeläge (Böden, Tapeten, Fliesen)
- Neue Fliesenbeläge
- Vinyl-Boden im Schlafzimmer
- Erneuerung aller Sanitärgegenstände

Grundrisse

Grundrisse
1 / 1

Realisiere Dein Projekt

Bausubstanz und Energie

Energieausweis

D
  • Baujahr1970
  • Zustand der Immobilierenoviert / saniert
  • HeizungsartEtagenheizung
  • EnergieträgerGas
MediumRectangleTop

Mietkosten

geschätzte Warmmiete
~803,95 €
Kaltmiete
9,43 €/m²
575 €
Nebenkosten
110 €
Zusätzliche Kosten
Heizkosten
Kaution
1725 €
Weitere Preisinformationen
Nettokaltmiete: 575,00 EUR

Lage

address-icon
Oberdorfstraße 32Baiersbronn (72270)
Die Wohnung befindet sich zentraler aber ruhiger Lage im Oberdorf von Baiersbronn. Zu Fuß erreicht man den Bahnhof in ca. 7 Minuten, in dessen Nähe sich auch zahlreiche Ladengeschäfte sowie Bäckereien und eine Apotheke befinden.
In 2 Fahrminuten erreicht man den nächstgelegenen Supermarkt.
Infrastruktur (im Umkreis von 5 km):
Apotheke, Lebensmittel-Discount, Allgemeinmediziner, Kindergarten, Grundschule, Hauptschule, Realschule, Gymnasium, Öffentliche Verkehrsmittel

Weitere Informationen

Sonstiges Heizungsart: Etagenheizung
Energieträger: Gas

Bei Interesse gerne bitte ein paar Angaben zu sich selbst teilen:
- Name, Alter, Beruf
- Raucher? Haustiere?
- Wer zieht mit ein? Ab wann kann eingezogen werden?

Makleranfragen nicht erwünscht. Nach § 7 UWG sind unaufgeforderte Kontaktaufnahmen durch Makler ohne ausdrückliche Einwilligung des Empfängers verboten!

ohne-makler (OM) ist weder Anbieter noch Vermittler der Immobilie. OM betreibt eine Plattform für Immobilieneigentümer, die unter anderem die gleichzeitige Veröffentlichung einzelner Inserate auf mehreren Immobilienportalen ermöglicht. Die Inhalte dieser Inserate werden ausschließlich von Dritten verantwortet. Für die Richtigkeit, Vollständigkeit oder Rechtmäßigkeit der Angaben übernimmt OM keine Haftung. Hinweise auf mögliche Rechtsverstöße können jederzeit gemeldet werden und werden nach Prüfung umgehend bearbeitet. Stichworte Anzahl der Schlafzimmer: 1, Anzahl der Badezimmer: 1, Anzahl Terrassen: 1, Bundesland: Baden-Württemberg, 2 Etagen

Weitere Services

Lust auf eine Besichtigung?
Eine Frage zur Immobilie?
Nachricht hinzufügen
Mit der Nutzung der oben angegebenen Telefonnummer oder durch Klicken auf „Kontaktieren“ akzeptierst Du die Allgemeinen Nutzungsbedingungen, denen Du jederzeit widersprechen kannst. Weitere Informationen zum Datenschutz

Über den Anbieter

Humboldtstr. 25 A, 21509 Glinde
partner badge
Partnerschaft
Privat von Familie SchmidDein Kontakt
Keine Telefonnummer hinterlegt
Keine Telefonnummer hinterlegt
Online-ID: 2nupm5m
Referenznummer: 367482
ohne-makler.net - Immobilien selbst vermarkten
ohne-makler.net - Immobilien selbst vermarkten
Nachricht hinzufügen
Mit der Nutzung der oben angegebenen Telefonnummer oder durch Klicken auf „Kontaktieren“ akzeptierst Du die Allgemeinen Nutzungsbedingungen, denen Du jederzeit widersprechen kannst. Weitere Informationen zum Datenschutz
MediumRectangleTop
MediumRectangleBottom
MediumRectangleTop
Wie zufrieden bist du mit dieser Seite (nicht mit der Immobilie selbst)?