Version: 8.22.4Navigation überspringen
27 €
Immowelt logo

Laden zur Miete
27 Euro pro Quadratmeter

Charaktervolles Geschäftslokal in Toplage Schellinggasse,1010 Wien

Charaktervolles Geschäftslokal in Toplage Schellinggasse 3, 1010 WienDirekt hinter dem Ronacher neben dem Palais Coburg

In exquisiter Innenstadtlage, nur wenige Schritte vom Ronacher entfernt und angrenzend an das Palais Coburg, befindet sich dieses charaktervolle Geschäftslokal mit vielseitigen Nutzungsmöglichkeiten auf zwei Ebenen.

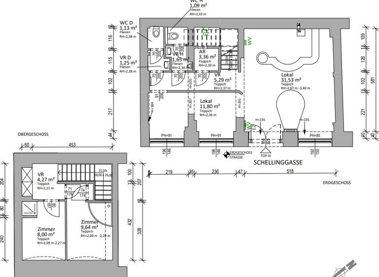
Der großzügige Verkaufsraum im Erdgeschoss überzeugt durch seine straßenseitigen, großen Fensterflächen, die sowohl für Tageslicht als auch für eine optimale Sichtbarkeit und attraktive Präsentationsmöglichkeiten sorgen. Der direkte Zugang von der Straße ermöglicht einen repräsentativen Empfang für Kund:innen und Besucher:innen.

Im Obergeschoss stehen Ihnen zusätzliche Flächen für Büro, Lager oder Personalräume zur Verfügung. Das Objekt wurde teilsaniert und bietet eine ideale Grundlage für individuelle Gestaltung und Modernisierung nach eigenen Vorstellungen.

Aktuell gliedert sich die Fläche in:
-einen großen Verkaufsraum
-getrennte WC-Anlagen
-einen Bereich, der sich ideal als Vinothek oder kleine Weinbar eignet
-Büro- und Lagerflächen im Obergeschoss

Highlights im Überblick:
-Beste Innenstadtlage in 1010 Wien
-Zwei Geschoße mit straßenseitigem Zugang
-Großflächige Auslagenfenster
-Großer Verkaufsraum mit repräsentativem Flair
-Separates Büro, Lagerräume und Sanitäranlagen
-Eignung für Vinothek, Concept Store, Showroom u. v. m.
-Teilsaniert Raum für kreative Umgestaltung
Ein Objekt mit Seltenheitswert, das durch Lage und Potenzial gleichermaßen besticht.
Gerne stellen wir Ihnen weiterführende Informationen oder einen Besichtigungstermin zur Verfügung.

Merkmale

  • Bezug: sofort

Grundrisse

Grundrisse
1 / 1

Realisiere Dein Projekt

Bausubstanz und Energie

Heizwärmebedarf (HWB)

D

Gesamtenergieeffizienz (fGEE)

Der Anbieter hat keine Daten zum Energieausweis hinterlegt.
  • Zustand der ImmobilieAltbau (bis 1945)
  • HeizungsartEtagenheizung
  • EnergieträgerGas
Immowelt logo

Mietkosten

Gesamtmiete
2.827,25 €
Nettokaltmiete
27 €/m²
2.133,27 €
Betriebskosten
267,32 €
Umsatzsteuer
471,21 €
Provision für Mieter
3 bmm
Kaution
8500 €
Weitere Preisinformationen
Nettokaltmiete: 2.133,27 EUR

Lage

address-icon
Wien (1010)
Der Anbieter hat die genaue Adresse nicht freigegeben

Weitere Informationen

Stichworte Nutzfläche: 79,00 m²

Weitere Services

Lust auf eine Besichtigung?
Eine Frage zur Immobilie?
Nachricht hinzufügen
Mit der Nutzung der oben angegebenen Telefonnummer oder durch Klicken auf „Kontaktieren“ akzeptierst Du die Allgemeinen Nutzungsbedingungen, denen Du jederzeit widersprechen kannst. Weitere Informationen zum Datenschutz

Über den Anbieter

Standorte in: Wien, NÖ, OÖ; Szg, Stk, Tirol & Kärnten, 1150 WIEN
partner badge
6 Jahre Partnerschaft
Frau Lena DollDein Kontakt
Online-ID: 2lw595g
Referenznummer: 141/84074
Rustler Immobilientreuhand GmbH
Rustler Immobilientreuhand GmbH
Bewertung: 4,3 von 5 Sternen
Nachricht hinzufügen
Mit der Nutzung der oben angegebenen Telefonnummer oder durch Klicken auf „Kontaktieren“ akzeptierst Du die Allgemeinen Nutzungsbedingungen, denen Du jederzeit widersprechen kannst. Weitere Informationen zum Datenschutz
Wie zufrieden bist du mit dieser Seite (nicht mit der Immobilie selbst)?