Version: 8.24.1Navigation überspringen
13 €
3.913 m² Bürofläche  •  teilbar ab 93 m²
Immowelt logo

Bürofläche zur Miete
13 €
/m²
3.913 m² Bürofläche  •  teilbar ab 93 m²

KLINKERFASSADE | TOP ÖPNV | VIELE STELLPLÄTZE

- repräsentatives, 6-geschossiges Bürogebäude
- Baujahr 1990, letzte Sanierung 2020/2021
- Natursteinfassade aus roten Ziegeln
- neu gestaltete Foyers
- barrierefreie Zugänge
- vier Personenaufzüge
- Lastenaufzug
- gepflegte, ruhige Außenanlagen
- Bistro im Haus
- hauseigene Tiefgarage (1 Stellplatz pro 70 m² Mietfläche)
- Lager-/Archivflächen im Gebäude

Merkmale

  • Teeküche
  • Kantine
  • Bodenbelag: Teppich
- flexible Grundrissgestaltung und Ausbau der Flächen in Absprache mit dem künftigen Mieter
- effiziente Flächenlayouts
- helle, geräumige Räume
- isolierverglaste Aluminiumfenster
- mechanische Be- und Entlüftung
- hochwertiger Teppich als Bodenbelag
- CAT5-Verkabelung, teils Hohlraum- und Doppelboden, teils Brüstungskanal
- außenliegender, elektrischer Sonnenschutz
- Kühlung optional
- voll ausgestattete Teeküchen
- getrennte Sanitärbereiche
- Achsmaß ca. 1,30 m
- lichte Deckenhöhe ca. 2,75 m
- Gebäudetiefe ca. 13,80 m

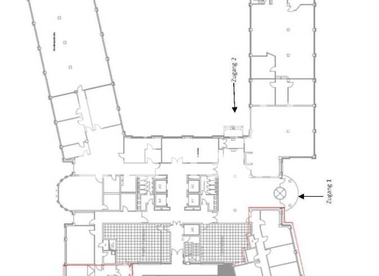
Grundrisse

Grundrisse
1 / 1

Realisiere Dein Projekt

Bausubstanz und Energie

Energieausweis

Endenergieverbrauch (Wärme)

Endenergieverbrauch (Strom)

  • Baujahr1990
Immowelt logo

Mietkosten

Monatliche Miete
13 €/m²
Nebenkosten
2,90 €
Provision für Mieter
Provisionsfrei für den Mieter
Kaution
keine Angabe

Lage

address-icon
Ramersdorf-PerlachMünchen (81739)
Der Anbieter hat die genaue Adresse nicht freigegeben
- das Objekt befindet sich im Gewerbegebiet Neuperlach Süd
- hervorragende Anbindung an den ÖPNV über die Haltestelle "Neuperlach Süd" (U5/S7)
- sehr gute Erreichbarkeit des Mittleren Rings, der A8 sowie der A99 gewährleistet
- gute Nahversorgung mit Restaurants, Bistros, Bäckereien und weiteren Einkaufsmöglichkeiten zeigt die sehr gute Infrastruktursituation des Standortes
- freistehender Pavillon der als Restaurant genutzt wird

Weitere Informationen

Sonstiges Konnten wir Ihr Interesse wecken? Oder haben Sie die passende Bürofläche noch nicht gefunden?
Kontaktieren Sie unser Münchner Vermietungsteam, gerne stehen wir Ihnen bei Ihrer Suche vertrauensvoll zur Seite.

KNIGHT FRANK | Connecting people & property, perfectly. Stichworte Sonstiges: EDV-Verkabelung

Weitere Services

Lust auf eine Besichtigung?
Eine Frage zur Immobilie?
Nachricht hinzufügen
Mit der Nutzung der oben angegebenen Telefonnummer oder durch Klicken auf „Kontaktieren“ akzeptierst Du die Allgemeinen Nutzungsbedingungen, denen Du jederzeit widersprechen kannst. Weitere Informationen zum Datenschutz

Über den Anbieter

Prinzregentenstr. 22, 80538 München
partner badge
6 Jahre Partnerschaft
Frau Vivien Güvenir
Frau Vivien GüvenirDein Kontakt
Online-ID: 2kmzm4s
Referenznummer: 174
Knight Frank GmbH & Co. KG
title
Knight Frank GmbH & Co. KG
Nachricht hinzufügen
Mit der Nutzung der oben angegebenen Telefonnummer oder durch Klicken auf „Kontaktieren“ akzeptierst Du die Allgemeinen Nutzungsbedingungen, denen Du jederzeit widersprechen kannst. Weitere Informationen zum Datenschutz
Wie zufrieden bist du mit dieser Seite (nicht mit der Immobilie selbst)?