Wir möchten unsere schöne Dreiraumwohnung gerne gegen eine Vierraumwohnung in Berlin-Pankow (13187, 13156, 13189) tauschen. Bei unserer Wohnung handelt es sich um einen Neubau der Gesobau, Erstbezug von allen Mieterinnen und Mietern im gesamten Haus im Juni 2022 (3 Jahre altes Haus). Die Wohnung ist sehr sonnig, verfügt über eine Kammer (siehe Foto) und eine Fußbodenheizung. Im Badezimmer befindet sich zusätzlich ein Handtuchwärmer. Der Balkon ist sehr geräumig, es können mehrere Personen an einem Tisch darauf sitzen. Das Haus verfügt über einen Fahrstuhl, einen Fahrradkeller und einen Kinderwagenkeller. Die gesamte Anlage ist sehr gepflegt und die Nachbarinnen und Nachbarn sehr freundlich und stets füreinander da. Auf dem Hof befindet sich eine große Wiese, eine Rutsche, mehrere Hüpfgeräte und ein großer Sandkasten sowie Spielsachen, die jederzeit zugänglich für alle Kinder sind. Haustiere sind erlaubt in diesem Haus.
Wichtig Diese Wohnung wird derzeit bei Wohnungsswap als Tauschobjekt angeboten, eignet sich also nur für diejenigen, die im Gegenzug eine eigene passende Wohnung für den Tausch haben. Es ist kostenlos, ihr Konto zu registrieren und diese bestimme Wohnung oder Hunderte andere Wohnungen bei uns zu finden.
Merkmale
3. Geschoss
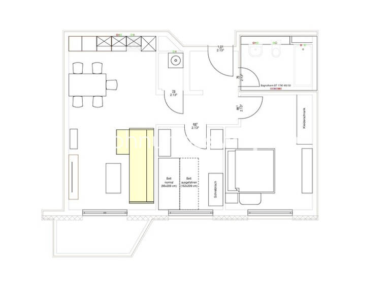
Grundrisse
Grundrisse
1 / 1
Realisiere Dein Projekt
Bausubstanz und Energie
Der Anbieter hat keine Informationen zu Energieverbrauch oder Zustand der Immobilie bereit gestellt.
Mietkosten
Kaltmiete
12,46 €/m²
810 €
Kaution
keine Angabe
Lage
Niederschönhausen, Berlin (13)
Der Anbieter hat die genaue Adresse nicht freigegeben