Version: 8.24.0Navigation überspringen
549.000 €
9 Zimmer  •  211,3 m²  •  398 m² Grundstück
Immowelt logo

Mehrfamilienhaus zum Kauf
549000 €
2.598 €/m²
9 Zimmer  •  211,3 m²  •  398 m² Grundstück

Historische Substanz trifft Kapitalanlage - Mehrfamilienhaus mit Perspektive

Dieses charmante Mehrfamilienhaus aus dem Baujahr 1906 vereint historischen Charakter mit solider Substanz und bietet eine attraktive Grundlage für Kapitalanleger mit Weitblick. Auf einem ca. 398 m² großen Grundstück erstreckt sich das Gebäude über drei Wohneinheiten mit einer Gesamtwohnfläche von rund 211 m².
Der heutige Eigentümer hat das Objekt im Jahr 2016 erworben und seither umfangreich modernisiert. Insbesondere die Bäder wurden zeitgemäß erneuert, sodass sich die Wohnungen in einem gepflegten und insgesamt ordentlichen Zustand präsentieren. Alle drei Einheiten sind aktuell vermietet und erzielen eine monatliche Kaltmiete von insgesamt 2.208 EUR, was für eine solide und planbare Einnahmesituation sorgt.
Ein besonderes Highlight stellt der befahrbare Innenhof dar, der in dieser Lage eine echte Rarität ist. Hier stehen ein Carport sowie insgesamt drei Stellplätze zur Verfügung - ein deutlicher Mehrwert gegenüber vergleichbaren Objekten in der Umgebung. Zusätzlich befindet sich im Innenhof ein separater Gebäudeteil mit ca. 150 m² Fläche, der ehemals als Werkstatt genutzt wurde. Eine Umnutzung zu Wohnzwecken erscheint grundsätzlich denkbar, bedarf jedoch einer individuellen baurechtlichen Prüfung. Dieses Potenzial eröffnet langfristig interessante Perspektiven zur Wertsteigerung und Erweiterung der Mietfläche.
Das Haupthaus befindet sich in einem gepflegten Zustand; mittelfristig sind jedoch Investitionen in die Erneuerung der Fenster sowie des Daches einzuplanen. Diese Maßnahmen bieten gleichzeitig die Möglichkeit, den Standard des Hauses weiter zu erhöhen und die nachhaltige Werthaltigkeit der Immobilie zu sichern.
Insgesamt handelt es sich um ein Mehrfamilienhaus mit stabiler Vermietung, zusätzlichem Entwicklungspotenzial und seltenem Stellplatzangebot - eine lohnende Kapitalanlage für Investoren, die Substanz, Lage und Perspektive zu schätzen wissen.

Merkmale

  • 398 m² Grundstück
  • Keller
  • 3 Stellplätze
- Mehrfamilienhaus Baujahr 1906
- 3 Wohneinheiten
- Ca. 211 m² Gesamtwohnfläche
- Ca. 398 m² Grundstück
- Seit 2016 modernisiert (u. a. neue Bäder)
- Alle Wohnungen vermietet
- Monatliche Kaltmiete: 2.208 EUR
- Gepflegter Gesamtzustand
- Befahrbarer Innenhof
- Carport und insgesamt 3 Stellplätze (seltene Situation in dieser Lage)
- Separater Nebengebäudeteil im Innenhof (ca. 150 m², ehemals Werkstatt)
- Potenzial zur Umnutzung des Nebengebäudes (baurechtliche Prüfung erforderlich)
- Mittelfristiger Sanierungsbedarf bei Dach und Fenstern
- Attraktive Kapitalanlage mit Entwicklungspotenzial

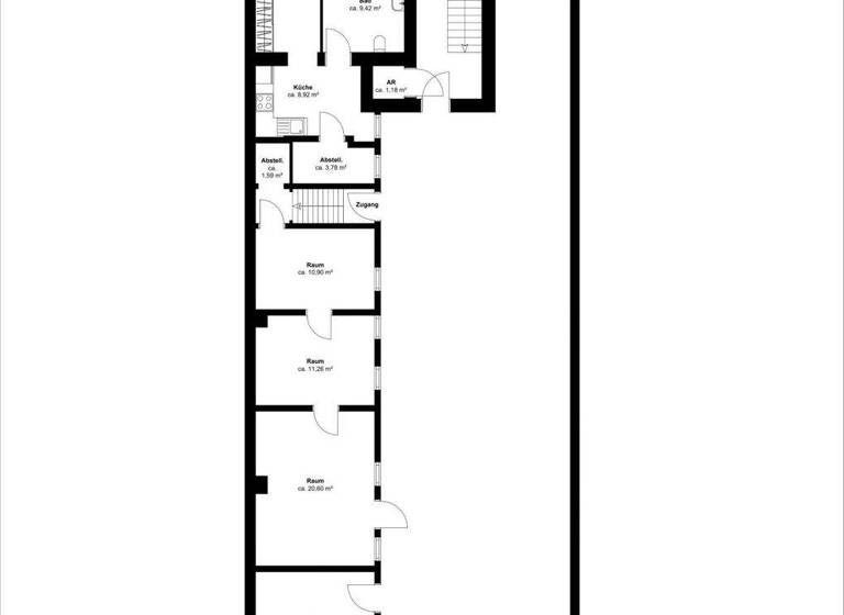
Grundrisse

Grundrisse
1 / 4

Realisiere Dein Projekt

Bausubstanz und Energie

Der Anbieter hat keine Informationen zum Energieverbrauch bereit gestellt.
  • Baujahr1906
  • EnergieträgerGas
Immowelt logo

Preisdetails

Kaufpreis
549000 €
2.598,32 €/m²
Provision für Käufer
5.95 inkl. MwSt.
Bei Abschluss eines notariellen Kaufvertrages ist eine Käuferprovision vom Käufer in Höhe von 5.95 % inkl. MwSt. aus dem Kaufpreis fällig.
Geschätzte Gesamtkosten
615.264 €1
Kaufpreis
549.000 €
Notarkosten (1,5%)
8.235 €
Grunderwerbsteuer (6,5%)
35.685 €
Provision für Käufer (3,57%)
19.599 €
Grundbucheintrag (0,5%)
2.745 €
1Der angezeigte Wert ist eine automatisch berechnete Schätzung von immowelt.
2Bei den Angaben handelt es sich um ortsübliche Werte. Individuelle Kosten können abweichen.

Lage

address-icon
GladbachBergisch Gladbach (51465)
Der Anbieter hat die genaue Adresse nicht freigegeben
Die Immobilie liegt in zentraler Lage von Bergisch Gladbach-Stadtmitte an der Odenthaler Straße. Einkaufsmöglichkeiten, Ärzte, Schulen, Kindergärten sowie die Innenstadt mit der RheinBerg Galerie sind in wenigen Minuten erreichbar. Die Anbindung an den öffentlichen Nahverkehr sowie an die Autobahnen A4 und A3 ist sehr gut, wodurch Köln und das Umland schnell erreichbar sind. Die Nähe zum Bergischen Land bietet zudem einen hohen Freizeit- und Erholungswert.
Die zentrale, verkehrsgünstige Lage sorgt für eine dauerhaft hohe Wohnnachfrage und macht den Standort besonders attraktiv für Kapitalanleger.

Weitere Informationen

Energiepass Energieausweis wird bei Besichtigung vorgelegt. Stichworte Stellplatz vorhanden, Anzahl der Schlafzimmer: 7, Anzahl der Badezimmer: 3, Anzahl der separaten WCs: 3, 3 Etagen, modernisiert

Weitere Services

Lust auf eine Besichtigung?
Eine Frage zur Immobilie?
Nachricht hinzufügen
Mit der Nutzung der oben angegebenen Telefonnummer oder durch Klicken auf „Kontaktieren“ akzeptierst Du die Allgemeinen Nutzungsbedingungen, denen Du jederzeit widersprechen kannst. Weitere Informationen zum Datenschutz

Über den Anbieter

Evernest GmbH
Evernest GmbHMaklerbüro
Mönkedamm 9-11, 20457 Hamburg
partner badge
Partnerschaft
Patrick StarkDein Kontakt
Online-ID: 2npjq5e
Referenznummer: L-CEWFYCM
Evernest GmbH
Evernest GmbH
Bewertung: 4,5 von 5 Sternen
Nachricht hinzufügen
Mit der Nutzung der oben angegebenen Telefonnummer oder durch Klicken auf „Kontaktieren“ akzeptierst Du die Allgemeinen Nutzungsbedingungen, denen Du jederzeit widersprechen kannst. Weitere Informationen zum Datenschutz
Wie zufrieden bist du mit dieser Seite (nicht mit der Immobilie selbst)?