Version: 8.25.1Navigation überspringen
1.495.000 €
312 m² Lagerfläche
Immowelt logo

Produktionshalle zum Kauf
1495000 €
312 m² Lagerfläche

Ideale Gewerbeliegenschaft für Logistik & Produktion - mit Büro und Wohnung

OBJEKT
Zum Verkauf steht ein vielseitig nutzbares Gewerbeobjekt im Bauland-Betriebsgebiet (Bauklasse II, ohne Einschränkungen). Derzeit ist eine Baufirma eingemietet, jedoch eignet sich das Areal aufgrund seiner Struktur und Flächen ideal für Produktionsbetriebe, Logistikunternehmen oder Lagerstätten.
Die Liegenschaft bietet 4.647 m² Grundfläche, aufgeteilt auf großzügige Hallen- und Lagerbereiche. Zusätzlich stehen eine Wohnung mit 126 m² sowie ein neu saniertes Büro mit 70 m² zur Verfügung - optimale Ergänzungen für Betriebsleiter, Mitarbeiter oder Verwaltung.

FAST FACTS
- Grundstücksgröße 4.647 m²
- Bauland-Betriebsgebiet, Bauklasse II
- Wohnung -126 m² / Terasse - 63 m²
- Saniertes Büro - 70m²
- Autobahn in 3 Minuten, Wien in 15-20 Minuten erreichbar

LAGE & VERKEHRSANBINDUNG
Die Anbindung ist besonders attraktiv:
- 3 Minuten zur Autobahn
- ca. 15-20 Minuten ins Stadtzentrum Wien
Damit bietet die Liegenschaft die ideale Kombination aus ruhiger Betriebsumgebung und hervorragender Erreichbarkeit.

BESICHTIGUNG
Aus Sicherheitsgründen stehen aktuell keine Fotos von den Lagerflächen zur Verfügung. Selbstverständlich können diese bei einer persönlichen Besichtigung vor Ort umfassend besichtigt werden.
Der Energieausweis ist bereits bestellt, und wird nachgereicht.

RECHTLICHES
In Entsprechung des FAGG (Fern- und Auswärtsgeschäfte-Gesetz) und des VRUG (Verbraucherrechte-Richtlinie-Umsetzungsgesetz) ist es uns leider nur mehr möglich, Termine nach Erhalt einer schriftlichen Anfrage mit vollständigen Kontaktdaten zu vereinbaren. Dies gilt ebenso für die Nennung relevanter Informationen wie z.B. der Lage. Sehr gerne sind wir auf diesem Wege bereit, die gewünschten Informationen und Unterlagen samt Adresse an Sie zu senden.

Unbedingt erforderlich sind:
+ Vor- und Nachname
+ aktuelle Meldeadresse (Hauptwohnsitz)
+ Telefonnummer
+ E-Mail Adresse

Sämtliche Informationen wurden uns von den Eigentümern, sowie von externen Stellen zur Verfügung gestellt. Für die Richtigkeit der Daten, sowie für Irrtum, Satz- und Druckfehler kann unsererseits keine Haftung übernommen werden.

Infrastruktur / Entfernungen

Gesundheit
Arzt <1.000m
Apotheke <1.500m
Klinik <5.000m
Krankenhaus <7.000m

Kinder & Schulen
Kindergarten <1.500m
Schule <1.500m

Nahversorgung
Supermarkt <1.500m
Bäckerei <1.500m
Einkaufszentrum <6.500m

Sonstige
Bank <1.000m
Geldautomat <1.000m
Post <3.000m
Polizei <3.000m

Verkehr
Bus <1.000m
Bahnhof <1.000m
Autobahnanschluss <3.000m
Straßenbahn <7.000m
Flughafen <6.000m

Angaben Entfernung Luftlinie / Quelle: OpenStreetMap

Merkmale

  • 4.647 m² Grundstück

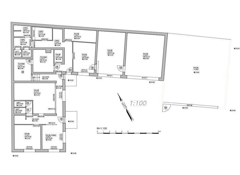
Grundrisse

Grundrisse
1 / 2

Realisiere Dein Projekt

Bausubstanz und Energie

Möchtest du Details zum Energieverbrauch?info_energy_calculation-icon
  • Baujahr1980
  • Zustand der ImmobilieNeubau
Immowelt logo

Preisdetails

Kaufpreis
1495000 €
Provision für Käufer
3% des Kaufpreises zzgl. 20% USt.

Lage

address-icon
Oberwaltersdorf (2522)

Weitere Informationen

Stichworte Nutzfläche: 312,00 m², Bundesland: Niederösterreich

Weitere Services

Lust auf eine Besichtigung?
Eine Frage zur Immobilie?
Nachricht hinzufügen
Mit der Nutzung der oben angegebenen Telefonnummer oder durch Klicken auf „Kontaktieren“ akzeptierst Du die Allgemeinen Nutzungsbedingungen, denen Du jederzeit widersprechen kannst. Weitere Informationen zum Datenschutz

Über den Anbieter

Pfarrgasse 2, 2500 BADEN
partner badge
Partnerschaft
Herr Eldin CankovicDein Kontakt
Online-ID: 26Y84K37PJ5N
Referenznummer: OBGC202603100935240794c53dc6d81
RE/MAX Welcome Hornyik Immobilienmakler GmbH
RE/MAX Welcome Hornyik Immobilienmakler GmbH
Nachricht hinzufügen
Mit der Nutzung der oben angegebenen Telefonnummer oder durch Klicken auf „Kontaktieren“ akzeptierst Du die Allgemeinen Nutzungsbedingungen, denen Du jederzeit widersprechen kannst. Weitere Informationen zum Datenschutz
Wie zufrieden bist du mit dieser Seite (nicht mit der Immobilie selbst)?