Version: 8.22.6Navigation überspringen
295.000 €
6 Zimmer  •  188 m²  •  437 m² Grundstück
Immowelt logo

Doppelhaushälfte zum Kauf
295000 €
1.569 €/m²
6 Zimmer  •  188 m²  •  437 m² Grundstück

Hamm - Herringen ! Geräumiges 1 Fam.-Haus mit vielen Möglichkeiten !

Auf der Jägerstraße steht auf einem incl. Wegeanteil ca. 437 qm großen Kaufgrundstück
diese ursprünglich ca. 1912 erbaute 1 Familiendoppelhaushälfte mit einer
Wohn-/Nutzfläche von ca. 188 qm.
Im Jahr 1992 wurde das Haus jedoch grundlegend umgebaut und erweitert. In diesem Zuge erfolgte eine weitgehende Erneuerung der Bausubstanz sowie eine Neugestaltung der Raumaufteilung, sodass das Haus heute weitgehend den Charakter des Hauses aus den 1990er Jahren aufweist.

Merkmale

  • Bezug: sofort
  • 437 m² Grundstück
  • Gäste-WC
  • Balkon
  • Badezimmer: Badewanne, Bad mit Dusche, Bad mit Fenster
  • Bodenbelag: Fliesen, Laminat, Teppich
Herzlich Willkommen !
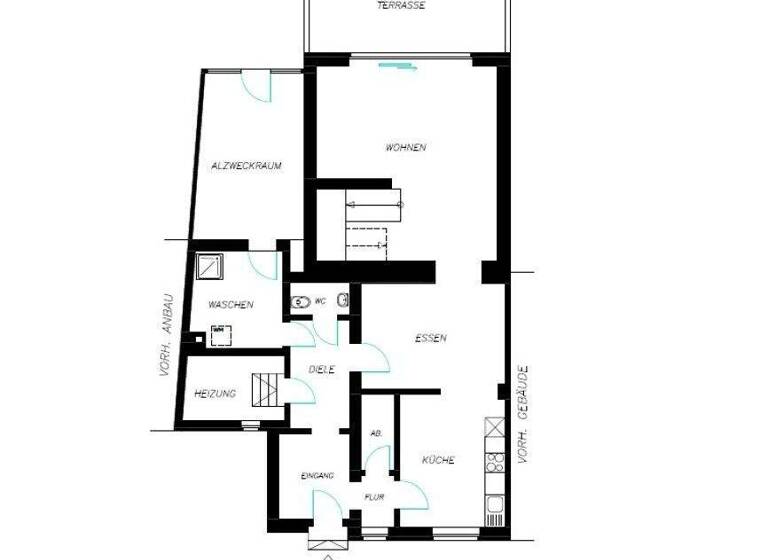
Zentraler Raum im Erdgeschoss ist das ca. 44 qm große Wohn-/Esszimmer mit Zugang zur Küche, die sich perfekt dem Grundriss des Hauses anpasst und viele Einbauvarianten zulässt.
Vom Wohnzimmer erreichen Sie über eine große Schiebetür die überdachte Terrasse
in den pflegeleichten zum Südwesten ausgerichteten Garten.
Der Garten begeistert mit kompakter Größe und bietet viele Möglichkeiten zur Freizeitgestaltung. Kinderspielzeug, Gartengeräte und andere Utensilien finden in der geräumigen Gartenhütte Platz.
Von der Diele im Eingangsbereich erreichen Sie den Heizungsraum, das Gäste WC und
einen Waschraum mit Dusche und Platz für Ihre Waschmaschine.
Der ca. 18 qm große Allzweckraum kann als Gästezimmer/Spielzimmer oder Büro genutzt werden.
Vom Wohnzimmer im Erdgeschoss erreichen Sie über eine Buchentreppe die Räume im Obergeschoss. Zwei Schlafzimmer, ein Tageslichtbad mit Badewanne und Dusche und
ein Abstellraum sind hier angeordnet.
Das Dachgeschoß bietet mit 2 Räumen und insgesamt ca. 27 qm vielseitig nutzbare Fläche.
Ob Wohnen, Arbeiten, Kinderzimmer oder Homeoffice- hier haben Sie die Freiheit, die Räume ganz nach Ihren individuellen Bedürfnissen zu gestalten.
Beheizt wird das Haus, das kurzfristig übergeben werden kann mit einer Gaszentralheizung mit Warmwasseraufbereitung aus dem Jahr 1993.
Hiermit erwerben Sie ein großzügiges Einfamilienhaus, ideal für die große Familie oder alle,
die das großzügige Wohnen mit Homeoffice oder Hobbyflächen verbinden möchten.

Haben wir Ihr Interesse geweckt? Schreiben Sie uns eine E-Mail mit Ihren Kontaktdaten.

Wir melden uns umgehend bei Ihnen.

Grundrisse

Grundrisse
1 / 3

Realisiere Dein Projekt

Bausubstanz und Energie

Energieausweis

Der Anbieter hat keine Daten zum Energieausweis hinterlegt.
  • Baujahr1912
  • Zustand der ImmobilieGepflegt
  • EnergieträgerGas
Immowelt logo

Preisdetails

Kaufpreis
295000 €
1.569,15 €/m²
Provision für Käufer
3,57 %
Nach Abschluss eines notariellen Kaufvertrages wird eine Käuferprovision in Höhe von 3,57 % inkl. ges. MwSt. vom notariell beurkundeten Kaufpreis fällig. Weitere Informationen siehe Provisionshinweis.
Geschätzte Gesamtkosten
330.606 €1
Kaufpreis
295.000 €
Notarkosten (1,5%)
4.425 €
Grunderwerbsteuer (6,5%)
19.175 €
Provision für Käufer (3,57%)
10.531 €
Grundbucheintrag (0,5%)
1.475 €
1Der angezeigte Wert ist eine automatisch berechnete Schätzung von immowelt.
2Bei den Angaben handelt es sich um ortsübliche Werte. Individuelle Kosten können abweichen.

Lage

address-icon
Jägerstraße 33HerringenHamm (59077)
Im westlichen Stadtgebiet von Hamm befindet sich der Stadtteil Herringen. Hier in zentrumsnaher Wohnlage, auf der Jägerstraße, steht diese zweigeschossige, ursprünglich ca. 1912 erbaute Einfamiliendoppelhaushälfte (Zechenhaus). Das Haus wurde im Jahr 1992 umgebaut und durch einen großflächigen Anbau erweitert. Schnell sind Sie im Grünen. Der Lippepark mit seinen unterschiedlichsten Freizeitangeboten liegt um die Ecke. Kindergärten, sämtliche Schulformen, vielseitige Einkaufsmöglichkeiten und alle Einrichtungen des täglichen Bedarfs sind auf kurzen Wegen zu erreichen.
Sie haben eine gute Verkehrsanbindung durch den öffentlichen Nahverkehr in die City und zum Bahnhof in Hamm und eine schnelle Anbindung zur A 1 in Richtung Münster und Dortmund.

Weitere Informationen

Provisionshinweis 3,57 %
Nach Abschluss eines notariellen Kaufvertrages wird eine Käuferprovision in Höhe von 3,57 % inkl. ges. MwSt. vom notariell beurkundeten Kaufpreis fällig. Der Immobilienmakler hat einen provisionspflichtigen Maklervertag mit dem Verkäufer in gleicher Höhe abgeschlossen. Stichworte Nutzfläche: 14,00 m², Anzahl der Schlafzimmer: 4, Anzahl der Badezimmer: 2, Anzahl Balkone: 1, Balkon-Terrassen-Fläche: 11,00 m², Bundesland: Nordrhein-Westfalen, modernisiert: 1992

Weitere Services

Lust auf eine Besichtigung?
Eine Frage zur Immobilie?
Nachricht hinzufügen
Mit der Nutzung der oben angegebenen Telefonnummer oder durch Klicken auf „Kontaktieren“ akzeptierst Du die Allgemeinen Nutzungsbedingungen, denen Du jederzeit widersprechen kannst. Weitere Informationen zum Datenschutz

Über den Anbieter

Stockumer Straße 30, 59368 Werne
partner badge
Partnerschaft
Herr Sven Markert
Herr Sven MarkertDein Kontakt

Weitere Unterlagen

Online-ID: 2nska5h
Referenznummer: 758
Josef Holtrup Immobilien e.K.
title
Josef Holtrup Immobilien e.K.
Bewertung: 5 von 5 Sternen
Nachricht hinzufügen
Mit der Nutzung der oben angegebenen Telefonnummer oder durch Klicken auf „Kontaktieren“ akzeptierst Du die Allgemeinen Nutzungsbedingungen, denen Du jederzeit widersprechen kannst. Weitere Informationen zum Datenschutz
Wie zufrieden bist du mit dieser Seite (nicht mit der Immobilie selbst)?