Version: 8.25.1Navigation überspringen
9 €
375 m² Bürofläche
Immowelt logo

Büro zur Miete • provisionsfrei
9 €
/m²
375 m² Bürofläche

Bürofläche Alsterkrugchaussee/Sportallee

Das Gebäude ist über die Eingänge in der Alsterkrugchausse sowie der Sportallee (Haupteingang) zu erreichen.
Die Teilfläche im 2. OG verfügt in einigen Räumen über Klimaeinzelgeräte, die kostenlos vom Vormieter übernommen werden können. Die Büroräume sind vorwiegend mit Teppichboden ausgestattet. Die vorhandene EDV-Verkabelung kann ohne Gewähr kostenlos vom Vormieter übernommen werden (Kabelkanäle). Es ist eine Teeküche sowie eine Sanitäreinheit, getrennt für Damen und Herren, vorhanden.
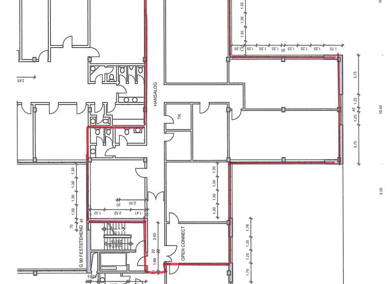
Die Raumaufteilung ergibt sich aus dem beigefügten Grundriss in dem die zu vermietende Fläche rot umrandet ist.

Merkmale

  • Bezug: sofort frei
  • 2. Geschoss
  • Teeküche
  • Personenaufzug
  • Bodenbelag: Kunststoff, Teppich
  • Beleuchtung: Deckenbeleuchtung
  • Wachdienst

Grundrisse

Grundrisse
1 / 1

Realisiere Dein Projekt

Bausubstanz und Energie

Energieausweis

Endenergieverbrauch (Wärme)

  • Baujahr1984
  • Zustand der ImmobilieGepflegt
  • HeizungsartZentralheizung
  • EnergieträgerGas
Immowelt logo

Mietkosten

Monatliche Miete
9 €/m²
Provision für Mieter
provisionsfrei
Kaution
15000 €

Lage

address-icon
Sportallee 6Groß BorstelHamburg (22335)

Weitere Informationen

Sonstiges monatliche Grundmiete 3.375 €
Betriebskostenvz. 560 €
Heizkostenvz. 375 €
Gesamt monatlich 4.310 €
jeweils zuzüglich Mehrwertsteuer

Es ist nur eine umsatzsteuerpflichtige Anmietung der Fläche möglich.
Die angestrebte Mindestvertragslaufzeit beträgt 3 Jahre.

Die Anmietung erfolgt direkt vom Vermieter. Eine Maklerprovision wird nicht fällig.

Die Heizungsanlage wurde erneuert. Ein neuer Energieausweis liegt noch nicht vor.

Optional können KfZ-Stellplätze in der Tiefgarage angemietet werden. Die monatlich Miete beträgt 45 €/Stellplatz zuzügl. Mwst Stichworte Serviceleistungen: Hausmeister Sonstiges: Getrennte Damen- und Herren-WCs

Weitere Services

Lust auf eine Besichtigung?
Eine Frage zur Immobilie?
Mit einer persönlichen Nachricht hast du bessere Chancen auf eine Antwort.
Mit der Nutzung der oben angegebenen Telefonnummer oder durch Klicken auf „Kontaktieren“ akzeptierst Du die Allgemeinen Nutzungsbedingungen, denen Du jederzeit widersprechen kannst. Weitere Informationen zum Datenschutz

Über den Anbieter

Große Elbstraße 145 f, 22767 Hamburg
partner badge
Partnerschaft

Weitere Unterlagen

Online-ID: 2318NRP76L8U
GETUMA GmbH
Bewertung: 4,5 von 5 Sternen
Mit einer persönlichen Nachricht hast du bessere Chancen auf eine Antwort.
Mit der Nutzung der oben angegebenen Telefonnummer oder durch Klicken auf „Kontaktieren“ akzeptierst Du die Allgemeinen Nutzungsbedingungen, denen Du jederzeit widersprechen kannst. Weitere Informationen zum Datenschutz
Wie zufrieden bist du mit dieser Seite (nicht mit der Immobilie selbst)?