Version: 8.24.0Navigation überspringen
950.000 €
4 Zimmer  •  765 m² Grundstück
Immowelt logo

Haus zum Kauf
950000 €
4 Zimmer  •  765 m² Grundstück

Turracher Höhe- Natur Pur genießen - Almhütte/Berghütte - Skifahren - Wandern in absoluter Traumlage

TURRACHER HÖHE, ALMHÜTTE/BERGHÜTTE, SKIFAHREN, WANDERN!

LAGE: RUHELAGE, DIREKT AN DER SCHIPISTE. SKI IN SKI OUT! AUF CA. 1.700 METERN LIEGT DIE TURRACHER HÖHE. SIE IST EINE ORTSCHAFT AM ALPENPASS DER GURKTALER ALPEN. DIE GLEICHNAMIGE SIEDLUNG, SOWIE DER TURRACHER SEE AUF DER PASSHÖHE, WERDEN DURCH DIE GRENZE ZWISCHEN STEIERMARK UND KÄRNTEN AUF ZWEI BUNDESLÄNDER AUFGETEILT.

NÄHE: SCHILIFT 300 M, GASTHOF BZW. SCHIHÜTTE CA. 500 M. SCHIGEBIET IN EINER HÖHENLAGE VON CA. 1.700 M BIS CA. 2.000 M.

WOHN-/NUTZFLÄCHE CA.: DAS GEBÄUDE, MIT EINER WFL. VON CA. 70 M², IST TEILWEISE IN GUT ERHALTENEM, RUSTIKALEN ORIGINALZUSTAND UND TEILWEISE IN GUTEM STANDARD SANIERT. PKW-ABSTELLPLATZ, HOLZ- BZW. PELLETLAGER UND EIGENEM SCHIRAUM NEBEN DER ALMHÜTTE.

GRUNDSTÜCK: 765 M², GEPFLEGTER BAUGRUND IN HANGLAGE.

BAUJAHR: CA. 1962, NACH UND NACH ERGÄNZT UND SANIERT.

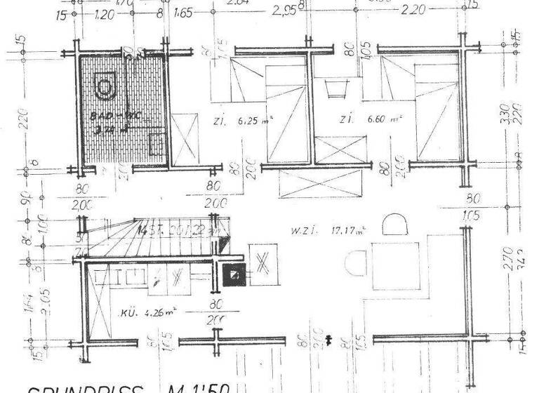
BESCHREIBUNG: EIN RUHIGER, ENERGETISCHER UND UNVERBAUBARER PLATZ. DAS ALMHAUS LIEGT IN DER BARBARASIEDLUNG, AUF DER STEIRISCHEN SEITE DER TURRACHER HÖHE, DIREKT AN DER SCHIPISTE, DEN SCHILIFTEN, DEN WANDERWEGEN UVM. DIE ALMHÜTTE VERFÜGT ÜBER EIN SEHR GROSSES WOHNZIMMER, 3 SCHLAFZIMMER, 1 KÜCHE, 1 VORRAUM, 1 BAD MIT DUSCHE UND WC UND EINE GROSSE TERRASSE. UNTERGESCHOSS: 1 SAUNA, 1 BAD MIT DUSCHE UND WC, 1 KLEINE TERRASSE. DIREKT AN DEM HAUS BEFINDET SICH EIN EIGENER SCHIRAUM, EIN PELLETRAUM, EIN HOLZLAGERRAUM. WENIGE SCHRITTE VON DER SAUNA ENTFERNT, BEFINDET SICH EIN BADEFASS.

STELLPLÄTZE: 2 PKW ABSTELLPLÄTZE.

ZIMMER: 4 ZIMMER

BÖDEN: SCHIFFBÖDEN, FLIESENBÖDEN.

FENSTER: ISOLIERGLASFENSTER HOLZFENSTER.

HEIZUNG: PELLETOFEN IM WOHNZIMMER, ERDGESCHOSS. ELEKTROHEIZKÖRPER IN JEDEM RAUM.

BAD: 2 BÄDER, 2 WC.

MÖBLIERUNG: VOLLMÖBLIERT

ZUSTAND: SEHR GEPFLEGTER ZUSTAND.

BEZIEHBAR: SOFORT.

BETRIEBSKOSTEN: STROM, PELLETS, MÜLL, KANAL, WASSER, STEUER CA. 400,-- MONATLICH JE NACH AUSLASTUNG ETWAS MEHR ODER WENIGER.

KAUFPREIS: 950.000,-

VERMITTLUNGSHONORAR: 3,0% VOM KAUFPREIS ZZGL. 20% UST.

KAUFNEBENKOSTEN:
3,5% GRUNDERWERBSSTEUER
1,1% GRUNDBUCHEINTRAGUNGSGEBÜHR (EIGENTUMSRECHT)
3,0% ZZGL. 20% UST. MAKLERHONORAR
2,0% KAUFVERTRAGSKOSTEN LAUT NOTARTARIF ZZGL. 20% UST.
0,1% BARAUSLAGEN FÜR BEGLAUBIGUNGEN
1,2% EINTRAGUNG DES DARLEHENS INS GRUNDBUCH

ANSPRECHPARTNER:

MICHAEL RUSCHNIG

T: +43 (0) 664.397 57 33

WIR FREUEN UNS AUF IHREN ANRUF!

---------------------------------

WEITERE ANGEBOTE UNTER:

WWW.NEUHAUSER-IMMOBILIEN.AT [http://www.neuhauser-immobilien.at/]

NEUHAUSER IMMOBILIEN KLAGENFURT

---------------------------------

SIE WOLLEN...
...IHRE IMMOBILIE VERKAUFEN ODER BEWERTEN LASSEN, DANN SIND SIE BEI UNS UM HÄUSER BESSER DRAN! EINFACH ANRUFEN!

WIDERRUFSRECHT/RÜCKTRITTSRECHT BEI FERN- UND AUSWÄRTSGESCHÄFTEN:
DER INTERESSENT/IN WÜNSCHT MIT DER KONTAKTAUFNAHME EIN VORZEITIGES TÄTIGWERDEN DES IMMOBILIENBÜROS NEUHAUSER IMMOBILIEN, SIEBENHÜGELSTRASSE 107, 9020 KLAGENFURT AM WÖRTHERSEE INNERHALB DER OFFENEN RÜCKTRITTSFRIST UND NIMMT ZUR KENNTNIS, DASS ER DAMIT BEI VOLLSTÄNDIGER VERTRAGSERFÜLLUNG (NAMHAFTMACHUNG) DAS RÜCKTRITTSRECHT VOM MAKLERVERTRAG GEM. § 11  FAGG VERLIERT. EINE PFLICHT ZUR ZAHLUNG DER PROVISION BESTEHT ABER ERST NACH ZUSTANDEKOMMEN DES VERMITTELTEN GESCHÄFTS (KAUFVERTRAG, MIETVERTRAG) AUFGRUND DER VERDIENSTLICHEN, KAUSALEN TÄTIGKEIT DES MAKLERS.

ALLGEMEINER HINWEIS:
DIE FIRMA NEUHAUSER IMMOBILIEN, SIEBENHÜGELSTRASSE 107, 9020 KLAGENFURT AM WÖRTHERSEE IST BEAUFTRAGT, DIE OBEN GENANNTE IMMOBILIE ZU VERMITTELN. ALLE ANGABEN, SPEZIELL WIE, FLÄCHEN, BAUJAHR, ZUSTAND, BESCHAFFENHEIT UND ERTRAG, ETC. SIND OHNE GEWÄHR UND BASIEREN AUSSCHLIESSLICH AUF INFORMATIONEN, DIE UNS VON UNSEREM AUFTRAGGEBER ÜBERMITTELT WURDEN. WIR ÜBERNEHMEN KEINE GEWÄHR FÜR DIE VOLLSTÄNDIGKEIT, RICHTIGKEIT UND AKTUALITÄT DIESER ANGABEN. ÄNDERUNGEN, IRRTÜMER UND ZWISCHENVERKAUF BLEIBEN VORBEHALTEN. DIE WEITERGABE UND VERVIELFÄLTIGUNG DIESES EXPOSEES AN DRITTE OHNE UNSERE ZUSTIMMUNG LÖST GEGEBENENFALLS VERMITTLUNGSHONORAR- BZW. SCHADENSERSATZANSPRÜCHE AUS. IM ÜBRIGEN GELTEN UNSERE ALLGEMEINEN GESCHÄFTSBEDINGUNGEN (AGB) LT. EXPOSÉ DER FIRMA NEUHAUSER IMMOBILIEN.

Infrastruktur / Entfernungen

Gesundheit
Arzt <10.000m

Kinder & Schulen
Schule <7.000m

Nahversorgung
Supermarkt <2.500m
Bäckerei <1.000m

Sonstige
Geldautomat <1.500m
Bank <7.000m
Post <7.000m

Verkehr
Bus <500m

Angaben Entfernung Luftlinie / Quelle: OpenStreetMap

Merkmale

  • 765 m² Grundstück
  • Einbauküche
  • 2 Stellplätze: 2 Außen-Stellplätze
  • Terrasse
  • Badezimmer: Bad mit Dusche, Bad mit Fenster

Grundrisse

Grundrisse
1 / 6

Realisiere Dein Projekt

Bausubstanz und Energie

Heizwärmebedarf (HWB)

E

Gesamtenergieeffizienz (fGEE)

Der Anbieter hat keine Daten zum Energieausweis hinterlegt.
  • Baujahr1962
  • Zustand der ImmobilieNeubau, Massivhaus, Gepflegt
  • HeizungsartOfen
  • EnergieträgerHolz, Pellets
Immowelt logo

Preisdetails

Kaufpreis
950000 €
Provision für Käufer
3% des Kaufpreises zzgl. 20% USt.
Weitere Preisinformationen
2 Stellplätze

Lage

address-icon
Turracherhöhe (9565)

Weitere Informationen

Stichworte Stellplatz vorhanden, Ost-Balkon/Terrasse, Anzahl der Badezimmer: 2, Anzahl der separaten WCs: 2, Anzahl Terrassen: 2, Balkon-Terrassen-Fläche: 30,00 m², Gartenfläche: 450,00 m², Kellerfläche: 35,00 m², Bundesland: Kärnten, modernisiert: 2020 Sonstiges: Kabelkanäle

Weitere Services

Lust auf eine Besichtigung?
Eine Frage zur Immobilie?
Nachricht hinzufügen
Mit der Nutzung der oben angegebenen Telefonnummer oder durch Klicken auf „Kontaktieren“ akzeptierst Du die Allgemeinen Nutzungsbedingungen, denen Du jederzeit widersprechen kannst. Weitere Informationen zum Datenschutz

Über den Anbieter

Siebenhügelstrasse 107, 9020 Klagenfurt am Wörthersee
partner badge
10 Jahre Partnerschaft
Herr Michael RUSCHNIGDein Kontakt
Online-ID: 2ng825p
Referenznummer: OBGC20260226125857814eb3dbec158
NEUHAUSER IMMOBILIEN
Bewertung: 5 von 5 Sternen
Nachricht hinzufügen
Mit der Nutzung der oben angegebenen Telefonnummer oder durch Klicken auf „Kontaktieren“ akzeptierst Du die Allgemeinen Nutzungsbedingungen, denen Du jederzeit widersprechen kannst. Weitere Informationen zum Datenschutz
Wie zufrieden bist du mit dieser Seite (nicht mit der Immobilie selbst)?