Version: 8.22.6Navigation überspringen
683 €
2 Zimmer  •  54,2 m²  •  frei ab 01.04.2026
Immowelt logo

Wohnung zur Miete
683 €
2 Zimmer  •  54,2 m²  •  frei ab 01.04.2026

Klassische 2-Zimmer-Wohnung - verfügbar ab April 2026

Es handelt sich hier um eine Wohnung, welche sich im denkmalgeschützten "Poschacher-Haus", direkt an der Linzer Landstraße gelegen, befindet.

Sämtliche Wohnungen im Haus wurden sehr hochwertig ausgestattet, die Parkettböden, die Kastenfenster und die Türen wurden erhalten und sehr aufwendig saniert. Im Dachgeschoß wurden zusätzlich noch 4 Penthäuser in einer einzigartigen Bauweise geschaffen.

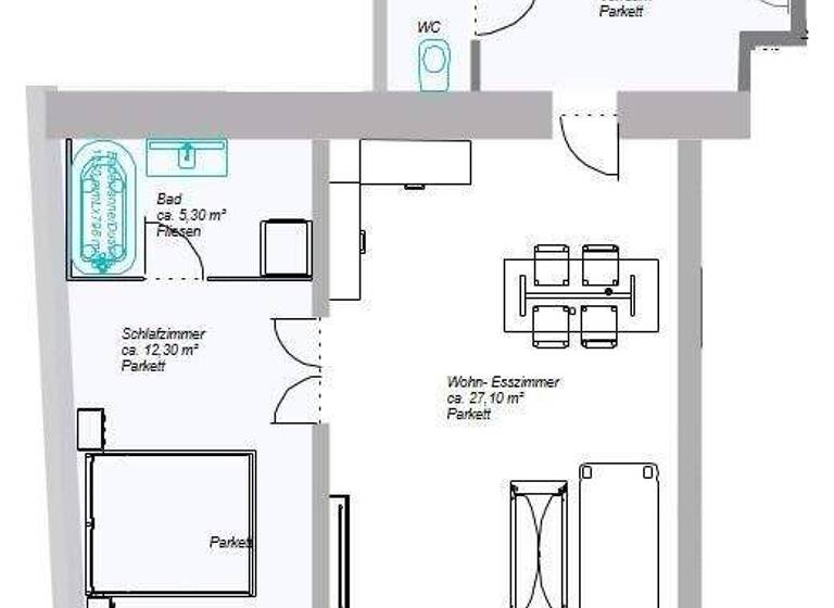
Die betreffende 2-Zimmer-Wohnung befindet sich im 1. OG (Lift erst ab dem Hochparterre!) und besteht aus einem Vorraum, einem Wohn- Esszimmer mit eingerichteter Küche (ablösefrei!), einem Schlafzimmer, einem Badezimmer und einer separaten Toilette (mit Handwaschbecken).

Ein kleines Kellerabteil ist ebenfalls Bestandteil dieser Mietimmobilie.

Bei Bedarf kann im Innenhof ein Parkplatz bzw. in der Nähe ein TG-Parkplatz angemietet werden.

Auf Wunsch kann die Wohnung auch voll möbliert angemeitet werden.

Die Anbindung an das öffentliche Verkehrsnetz ist hervorragend - direkt vor dem Haus befindet sich eine Straßenbahn-Haltestelle.

Eine Apotheke, diverse Nahversorger, Banken, mehrere Bäcker, verschiedene Restaurants, einige Kaffeehäuser, etc. befinden sich in direkter Umgebung.

Die Strom- und Heizkosten sind in den angegebenen Preisen nicht inkludiert - die Lieferverträge müssen mit dem jeweiligen Anbieter direkt abgeschlossen werden!

Die Kosten für die Erstellung des Mietvertrages werden vom Vermieter übernommen!

Für nähere Informationen sowie für die Terminvereinbarung einer gemeinsamen Besichtigung steht Ihnen Herr Norbert Riha unter 0664 - 21 605 12 gerne zur Verfügung.
Angaben gemäß gesetzlichem Erfordernis:
Miete 683 zzgl 10% USt.
Betriebskosten 119 zzgl 10% USt.
Umsatzsteuer 80,2
------------------------------------------------------------------
Gesamtbetrag 882,2
------------------------------------------------------------------
Heizwärmebedarf:71.7 kWh/(m²a)
Klasse Heizwärmebedarf:C

Merkmale

  • frei ab 01.04.2026
  • Personenaufzug
  • Kelleranteil
  • Denkmalschutz-Afa

Grundrisse

Grundrisse
1 / 1

Realisiere Dein Projekt

Bausubstanz und Energie

Heizwärmebedarf (HWB)

C

Gesamtenergieeffizienz (fGEE)

Der Anbieter hat keine Daten zum Energieausweis hinterlegt.
  • HeizungsartZentralheizung
  • EnergieträgerFernwärme
Immowelt logo

Mietkosten

Gesamtmiete
882,20 €
Nettokaltmiete
13,86 €/m²
683 €
Betriebskosten
130,90 €
Kaution
2700 €
Weitere Preisinformationen
Nettokaltmiete: 683,00 EUR

Lage

address-icon
Landstraße 71Linz (4020)

Weitere Informationen

Stichworte Anzahl der Schlafzimmer: 1, Anzahl der Badezimmer: 1, Anzahl der separaten WCs: 1, Bundesland: Oberösterreich, Stadtzentrumslage, Mindestmietdauer: 1 Jahr

Weitere Services

Lust auf eine Besichtigung?
Eine Frage zur Immobilie?
Nachricht hinzufügen
Mit der Nutzung der oben angegebenen Telefonnummer oder durch Klicken auf „Kontaktieren“ akzeptierst Du die Allgemeinen Nutzungsbedingungen, denen Du jederzeit widersprechen kannst. Weitere Informationen zum Datenschutz

Über den Anbieter

ARL Immo GmbH
ARL Immo GmbHMaklerbüro
Römerstraße 39, 4600 WELS
partner badge
Partnerschaft
Herr Norbert RihaDein Kontakt

Weitere Unterlagen

Online-ID: 2ndrr5j
Referenznummer: 2433/1675
ARL Immo GmbH
ARL Immo GmbH
Nachricht hinzufügen
Mit der Nutzung der oben angegebenen Telefonnummer oder durch Klicken auf „Kontaktieren“ akzeptierst Du die Allgemeinen Nutzungsbedingungen, denen Du jederzeit widersprechen kannst. Weitere Informationen zum Datenschutz
Wie zufrieden bist du mit dieser Seite (nicht mit der Immobilie selbst)?