Version: 8.24.0Navigation überspringen
680.000 €
8 Zimmer  •  250 m²  •  1.100 m² Grundstück
Immowelt logo

Mehrfamilienhaus zum Kauf
680000 €
2.720 €/m²
8 Zimmer  •  250 m²  •  1.100 m² Grundstück

Zweifamilienhaus in der Gemeinde Eichenzell

Das Zweifamilienhaus ist wie in dieser Variante realisiert der Inbegriff traditioneller Architektur. Die Kombination von Satteldach und einem weiteren Giebel mit Schleppdach bewährt sich schon seit Jahrhunderten und erlebt derzeit seine Renaissance. Auf jeder Etage hält dieses Haus eine vollwertige Wohneinheit bereit und ermöglicht auf diese Weise entweder das ungestörte Wohnen mehrerer Generationen oder eine komfortable Art der Vermietung. Sie entscheiden über die Art der Nutzung und sind für alle Situationen bestens vorbereitet.

Merkmale

  • 1.100 m² Grundstück
  • Kein Keller
  • Gäste-WC
Die vorgestellte Projektierung umfasst Leistungen entsprechend der Bau- und Leistungsbeschreibung CONCEPT als Grundlage für die weitere Planung und Kalkulation. In definierten Ausbaustufen werden hier umfangreiche Leistungen dargestellt - übersichtlich und transparent. Treffen Sie Ihre ganz persönliche Wahl: vom Ausbauhaus über technikfertige oder fast fertige Ausstattung bis zum schlüsselfertigen Haus. Alles in bewährter RENSCH-HAUS Qualität:

? Kostenfreie Bedarfsanalyse durch unsere qualifizierten Fachberater

? Planungs- und Ingenieurleistungen (u.a. Statik, Nachweise für die Beantragung von Fördermitteln)

? Ausstattungswelt mit großer Auswahl u.a. an Sanitärobjekten, Fliesen und Bodenbelägen von deutschen Markenherstellern

? Produktion ausschließlich in Deutschland

? Handwerkstradition aus Überzeugung - als Familienunternehmen seit über 145 Jahren in fünfter Generation

? Lieferung und Montage (u.a. Transport, Kran, Gerüst, Baustellen-WC)

? Effizienzhaus 40 - serienmäßig mit unserem Heiz- und Lüftungssystem (Frischluft-Wärmetechnik); eine Nachhaltigkeitszertifizierung nach QNG bieten wir Ihnen gerne an

? Sommerlicher Hitzeschutz durch hohe Speicherfähigkeit der Konstruktion

? Diffusionsoffene Außenwand, gefertigt aus natürlichen Rohstoffen

? Gemeinsame Hausabnahme und Schlüsselübergabe zusammen mit unseren Bauherren

? Alles aus einer Hand. Auf Wunsch mit Baunebengewerken (Keller, Fundamentplatte, Carport, Garage)

? 30 Jahre Garantie auf die Tragkonstruktion und fünf Jahre Gewährleistung mit kostenfreiem Kundendienst

Überzeugen Sie sich selbst. Sprechen Sie mit uns.

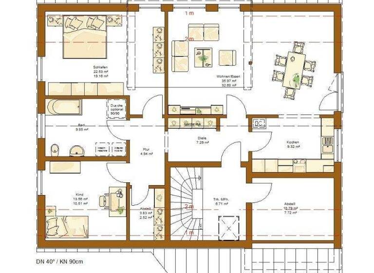
Grundrisse

Grundrisse
1 / 2

Realisiere Dein Projekt

Bausubstanz und Energie

Der Anbieter hat keine Informationen zum Energieverbrauch bereit gestellt.
  • Baujahr2027
Immowelt logo

Preisdetails

Kaufpreis
680000 €
2.720 €/m²
Provision für Käufer
Auf den Grundstücksanteil
Geschätzte Gesamtkosten
758.676 €1
Kaufpreis
680.000 €
Notarkosten (1,5%)
10.200 €
Grunderwerbsteuer (6%)
40.800 €
Provision für Käufer (3,57%)
24.276 €
Grundbucheintrag (0,5%)
3.400 €
1Der angezeigte Wert ist eine automatisch berechnete Schätzung von immowelt.
2Bei den Angaben handelt es sich um ortsübliche Werte. Individuelle Kosten können abweichen.

Lage

address-icon
LöschenrodEichenzell (36124)
Der Anbieter hat die genaue Adresse nicht freigegeben
- sehr ruhige Lage
- Südausrichtung
- Stadtbusbereich

Weitere Informationen

Sonstiges Dies ist nur eine mögliche Idee für Ihr Traumhaus. Gleich ob vorgedachtes Grundrisskonzept oder freie Planung: Sie entscheiden, was am besten zu Ihnen passt. Das gilt natürlich auch für den Ausbaugrad. Mit RENSCH-HAUS setzen Sie auf einen erfahrenen Baupartner für die sorgenfreie und unkomplizierte Realisierung. Hier erhalten Sie alles aus einer Hand, inklusive kurzer Bauzeit, Festpreisgarantie, Energiekompetenz Effizienzhaus 40 serienmäßig und auf Wunsch ein Upgrade zum förderfähigen Effizienzhaus 40 NH, oder auch die Sicherheit über die ausschließliche Verwendung geprüfter, gesundheitlich unbedenklicher Baustoffe. Darüber hinaus bieten wir Ihnen gerne auch Gewerke wie Keller, Fundamentplatte, Garage, Carport oder eine passende Küche an. Das Beste dabei - Sie haben nur einen Ansprechpartner und die Sicherheit von 30 Jahren Garantie auf die tragende Konstruktion sowie 5 Jahre Gewährleistung mit kostenfreiem Kundendienst.

Direkter Kontakt - https://www.rensch-haus.com/standorte/musterhaus-uttrichshausen Stichworte Anzahl der Schlafzimmer: 4, Anzahl der Badezimmer: 2, 2 Etagen

Weitere Services

Lust auf eine Besichtigung?
Eine Frage zur Immobilie?
Nachricht hinzufügen
Mit der Nutzung der oben angegebenen Telefonnummer oder durch Klicken auf „Kontaktieren“ akzeptierst Du die Allgemeinen Nutzungsbedingungen, denen Du jederzeit widersprechen kannst. Weitere Informationen zum Datenschutz

Über den Anbieter

RENSCH-HAUS GMBH
RENSCH-HAUS GMBHMaklerbüro
Mottener Straße 13, 36148 Kalbach-Uttrichshausen
Frau Sonja ThielDein Kontakt
Online-ID: 2nq985m
Referenznummer: 72643-560
RENSCH-HAUS GMBH
RENSCH-HAUS GMBH
Nachricht hinzufügen
Mit der Nutzung der oben angegebenen Telefonnummer oder durch Klicken auf „Kontaktieren“ akzeptierst Du die Allgemeinen Nutzungsbedingungen, denen Du jederzeit widersprechen kannst. Weitere Informationen zum Datenschutz
Wie zufrieden bist du mit dieser Seite (nicht mit der Immobilie selbst)?