Büro zum Kauf2000 Euro pro Quadratmeter6 Zimmer • 115 m² Bürofläche
2000 Euro pro Quadratmeter
6 Zimmer • 115 m² Bürofläche
***Schulungsräume + Büros ideal für Praxis und Management***
Merkmale
- frei ab sofort
- 1. Geschoss
- Personenaufzug
- DSL-Anschluss
- Barrierefrei, Rollstuhlgerecht
- Bodenbelag: Fliesen
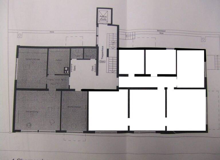
Grundrisse
Grundrisse
1 / 1
Bausubstanz und Energie
Energieausweis
E
- Baujahr1966
- Zustand der ImmobilieGepflegt
- HeizungsartZentralheizung
- EnergieträgerGas
Preisdetails
Kaufpreis
225000 €
2.000 €/m²
Hausgeld
220 €
Provision für Käufer
3,57%
Geschätzte Gesamtkosten
233.033 €1
Kaufpreis
225.000 €
Kaufnebenkosten
8.033 €
2Provision für Käufer (3,57%)
8.033 €
1Der angezeigte Wert ist eine automatisch berechnete Schätzung von immowelt.
2Bei den Angaben handelt es sich um ortsübliche Werte. Individuelle Kosten können abweichen.
Lage

Schillerstraße 23, Schramberg (78713)
Weitere Informationen
Weitere Services
Lust auf eine Besichtigung?
Eine Frage zur Immobilie?
Über den Anbieter
Burgweg 9, 78713 Schramberg
Partnerschaft

Joachim FinkDein Kontakt
Online-ID: 25ALNVKDU8IF
Wie zufrieden bist du mit dieser Seite (nicht mit der Immobilie selbst)?
