Version: 8.25.1Navigation überspringen
PlanetHome Group GmbH
325.000 €
5 Zimmer  •  165,8 m²  •  621 m² Grundstück

Doppelhaushälfte zum Kauf
325000 €
1.960 €/m²
5 Zimmer  •  165,8 m²  •  621 m² Grundstück

Familienfreundliches Einfamilienhaus in ruhiger Lage und großzugigem Garten in Nersingen

Willkommen in diesem charmanten Massivhaus, das im Jahr ca. 1986 erbaut wurde und durch seine solide Bauweise sowie eine weitreichende Modernisierung besticht. Das gepflegte Anwesen befindet sich in einer ruhigen, verkehrsberuhigten Lage in Nersingen/Unterfahlheim und bietet auf einem großzügigen Grundstück von ca. 621 m² viel Raum für Familie und Freizeit.

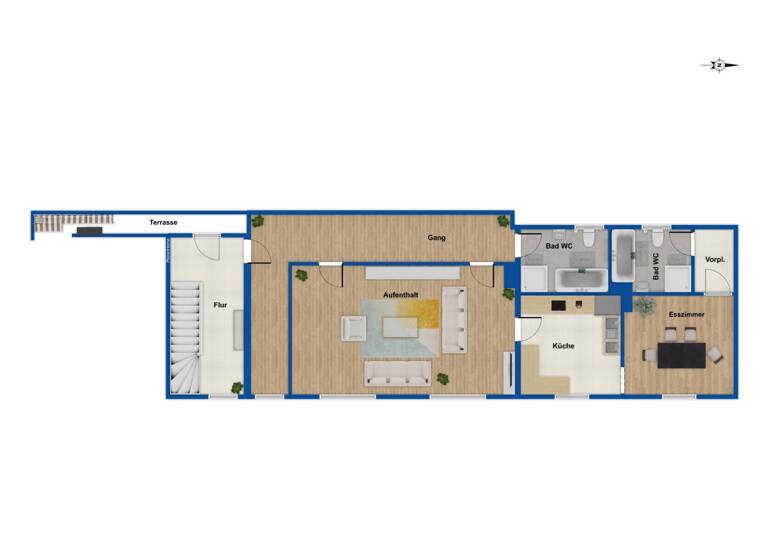
Das Haus verfügt über eine Wohnfläche von ca. 166 m², verteilt auf zwei Etagen. Im Dachgeschoss befinden sich drei gemütliche Schlafzimmer, die ausreichend Platz für Familienmitglieder oder Gäste bieten.Das Obergeschoss umfasst ein großzügiges Wohnzimmer, ein separates Esszimmer sowie eine gut ausgestattete Küche, ideal für gemeinsame Mahlzeiten und geselliges Beisammensein. Zwei charmante Bäder sorgen für Komfort und Flexibilität im Alltag.

Der große Garten lädt zum Entspannen, Spielen und Gärtnern ein - perfekt für Familienaktivitäten im Freien. Die Immobilie ist mit einer großen Garage ausgestattet, die ausreichend Platz für Fahrzeuge und Stauraum bietet.

Komfortabel wohnen durch Fußbodenheizung im gesamten Haus sowie eine im Jahr ca. 2015 umfassend modernisierte Öl-Heizung garantieren angenehmes Raumklima und niedrige Energiekosten. Das Dach wurde teilweise mit neuen Dachfenstern ausgestattet, was für viel Tageslicht sorgt und das Wohngefühl zusätzlich aufwertet.

Das Objekt ist sofort bezugsfrei und somit ideal für Käufer, die ohne lange Wartezeiten einziehen möchten. Die ruhige Lage in einem verkehrsberuhigten Bereich macht dieses Haus zu einem perfekten Ort für Familien, die Wert auf Ruhe und Lebensqualität legen.

Merkmale

  • 621 m² Grundstück
  • Einbauküche
  • Kein Keller
  • 2 Stellplätze
  • Gäste-WC
  • Terrasse

Grundrisse

Grundrisse
1 / 2

Realisiere Dein Projekt

Bausubstanz und Energie

Energieausweis

H
  • Baujahr1986
  • Zustand der ImmobilieMassivhaus
  • EnergieträgerÖl
MediumRectangleTop

Preisdetails

Kaufpreis
325000 €
1.960,19 €/m²
Provision für Käufer
3,57 % inkl. MwSt.
Geschätzte Gesamtkosten
354.477 €1
Kaufpreis
325.000 €
Notarkosten (1,5%)
4.875 €
Grunderwerbsteuer (3,5%)
11.375 €
Provision für Käufer (3,57%)
11.602 €
Grundbucheintrag (0,5%)
1.625 €
1Der angezeigte Wert ist eine automatisch berechnete Schätzung von immowelt.
2Bei den Angaben handelt es sich um ortsübliche Werte. Individuelle Kosten können abweichen.

Lage

address-icon
UnterfahlheimNersingen (89278)
Der Anbieter hat die genaue Adresse nicht freigegeben
Das attraktive Einfamilienhaus befindet sich in der idyllischen Gemeinde Nersingen, im Ortsteil Unterfahlheim. Die Lage zeichnet sich durch ihre ruhige und familienfreundliche Atmosphäre aus, ideal für alle, die eine entspannte Wohnumgebung suchen.

Nersingen liegt im Landkreis Neu-Ulm in Bayern und bietet eine hervorragende Infrastruktur. Einkaufsmöglichkeiten, Schulen, Kindergärten sowie medizinische Versorgung sind bequem erreichbar und machen das tägliche Leben komfortabel. Die Anbindung an den öffentlichen Nahverkehr sowie die Nähe zu Autobahnen ermöglichen eine schnelle Verbindung nach Ulm, Neu-Ulm und in die umliegenden Städte.

Der Ortsteil Unterfahlheim besticht durch seine ländliche Idylle mit viel Grünflächen, Wiesen und Wäldern - perfekt für Spaziergänge, Radfahren und Freizeitaktivitäten im Freien. Die verkehrsberuhigten Straßen sorgen für ein sicheres Umfeld für Familien mit Kindern.

Diese Kombination aus ländlicher Ruhe und urbaner Infrastruktur macht Nersingen/Unterfahlheim zu einem begehrten Wohnort für Familien, Paare und alle, die naturnah wohnen möchten, ohne auf Komfort verzichten zu wollen.

Weitere Informationen

Stichworte Stellplatz vorhanden, Garage vorhanden, Süd-West-Balkon/Terrasse, Nutzfläche: 75,77 m², Anzahl der Badezimmer: 2, Anzahl der separaten WCs: 1, Anzahl Terrassen: 1, 1 Etagen

Weitere Services

Lust auf eine Besichtigung?
Eine Frage zur Immobilie?
Nachricht hinzufügen
Mit der Nutzung der oben angegebenen Telefonnummer oder durch Klicken auf „Kontaktieren“ akzeptierst Du die Allgemeinen Nutzungsbedingungen, denen Du jederzeit widersprechen kannst. Weitere Informationen zum Datenschutz

Über den Anbieter

Feringastraße 11, 85774 Unterföhring
partner badge
10 Jahre Partnerschaft
Aleksandar FeherDein Kontakt
Online-ID: 255LGHNTEE34
Referenznummer: 183857
PlanetHome Group GmbH
PlanetHome Group GmbH
Nachricht hinzufügen
Mit der Nutzung der oben angegebenen Telefonnummer oder durch Klicken auf „Kontaktieren“ akzeptierst Du die Allgemeinen Nutzungsbedingungen, denen Du jederzeit widersprechen kannst. Weitere Informationen zum Datenschutz
MediumRectangleTop
MediumRectangleTop
Wie zufrieden bist du mit dieser Seite (nicht mit der Immobilie selbst)?