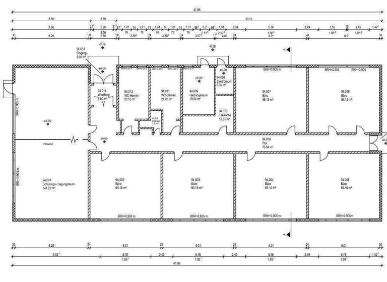
Die hier angebotene Mietfläche besticht durch ihre großzügige und durchdachte Raumaufteilung, die ein produktives und komfortables Arbeitsumfeld garantiert. Der aktuelle Grundriss umfasst sechs geräumige Büros, die vielseitige Nutzungsmöglichkeiten bieten. Ein besonders hervorzuhebendes Merkmal ist der äußerst großzügige, teilbare Schulungs- und Tagungsraum, der ideale Voraussetzungen für kreative Meetings, Präsentationen oder Seminare schafft.
Darüber hinaus sorgen zwei separate Toiletten und eine funktionale Teeküche dafür, dass Sie und Ihr Team Ihren Arbeitsalltag bequem und effizient gestalten können. Diese Fläche vereint Funktionalität mit Komfort und bietet eine optimale Grundlage für moderne Arbeitsweisen.
Merkmale
Erdgeschoss
TeekĂĽche
AuĂźen-Stellplatz
Barrierefrei
LKW-Zufahrt
Beleuchtung: Deckenbeleuchtung
Empfang
Wachdienst
Grundrisse
Grundrisse
1 / 1
Virtueller Rundgang
Video
Realisiere Dein Projekt
Bausubstanz und Energie
Energieausweis
Endenergieverbrauch (Wärme)
Endenergieverbrauch (Strom)
Baujahr1984
HeizungsartZentralheizung
EnergieträgerGas
Mietkosten
Nettomiete
5,91 €/m²
3.918,33 €
Nebenkosten
1.069,78 €
Provision fĂĽr Mieter
provisionsfrei
Kaution
2 NKM
Lage
Steigweg 24, Kitzingen (97318)
Die Büro-/Praxisflächen befinden sich im gesicherten Bereich nicht weit vom öffentlichen Campus-Bereich. Hier erwartet Sie ein inspirierendes Ambiente mit einem großzügigen Park-Charakter, der zum Verweilen und Netzwerken einlädt.
Ein besonderes Highlight ist die hauseigene Betriebskantine “Larsons Kitchen”, die täglich leckere Tagesangebote sowie einen umfassenden Catering-Service bietet – perfekt für eine entspannte Mittagspause oder Besprechungen.
Die hervorragende Erreichbarkeit wird durch zahlreiche Parkplätze direkt vor der Tür gewährleistet, sowohl für Kunden als auch für Mitarbeiter. Zusätzlich stehen E-Charger für Elektrofahrzeuge und sichere Fahrradstellplätze zur Verfügung, sodass umweltfreundliche Mobilität problemlos möglich ist.
Der Innopark Kitzingen www.innopark-kitzingen.de ist der Gewerbepark in Nordbayern und die erste Adresse innovativer Unternehmen. Das Bürogebäude wurde in den 30er Jahren errichtet und die Gebäudekernsanierung wird voraussichtlich Anfang 2025 abgeschlossen sein.
Als Referenzkunde der Deutschen Telekom bietet der Innopark Kitzingen ein Full-Service-Paket (Glasfasernetz) an IT-Dienstleistungen an. Neben dem 24h-Sicherheitsdienst steht ein eigener und kostenpflichtiger Reinigungs- und Hausmeisterdienst für jeden Mieter zur Verfügung. Der Anteil der Solarenergie mit der der Innopark Kitzingen versorgt wird, erhöht sich in den kommenden Jahren.